Property Description
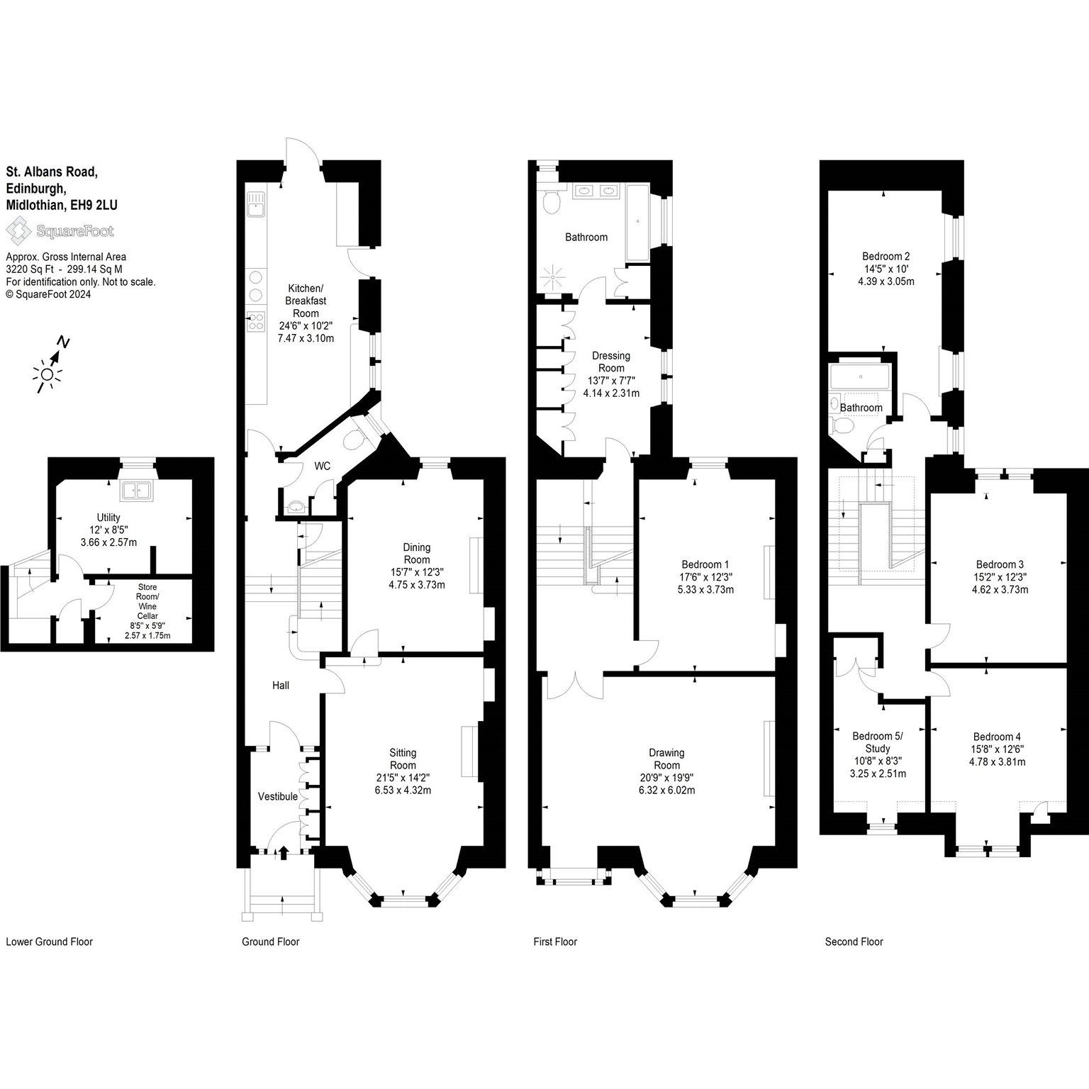
18 St. Alban’s Road is an impressive five-bedroom terraced family house which has been comprehensively refurbished throughout by the current owners. The property is situated in the heart of the Grange Conservation Area, an affluent and sought after residential area to the south side of the city. Presented in true turnkey condition the property retains many original period features including ornate cornicing/plasterwork, stained glass, fireplaces, working shutters and sash and case windows and varnished wooden floors - melding seamlessly with contemporary luxury bathrooms and kitchen. The entrance vestibule has mosaic tiled floor and bespoke cloaks floor to ceiling cupboards for coats and shoes etc. The generous and versatile family accommodation includes custom made dining kitchen with floor and wall mounted units, larder cupboard, granite and wooden worktops, Gas Aga and ceramic hob, integrated appliances and with direct access to the rear deck and garden for relaxation and al fresco dining. The property benefits from three public rooms including a beautiful family sitting room on the ground floor, formal dining room accessed off the sitting room and a grand drawing room on the first floor. There is an extremely useful utility room and wine cellar located in the basement.
The principal bedroom is located on the first floor with lovely peaceful outlook to the rear garden, working gas fireplace, and access to a luxurious fully fitted dressing room and ensuite bathroom with custom made floor tiles, separate bath and shower, double wash hand basins and WC. Three further double bedrooms, stunning family bathroom and a home office/fifth bedroom completes the accommodation.
Summary Of Accommodation
Ground Floor
Entrance Vestibule, Hall, Sitting Room, Dining Room, Dining Kitchen, WC
Utility Room & Wine Cellar on lower ground floor.
First Floor
Drawing Room, Principal Bedroom, Bespoke Dressing Room and Ensuite Bathroom
Second Floor
Four Double Bedrooms, Family Bathroom
Special Note
Fully networked Wifi system with a discrete wireless router in most rooms including lower ground floor and garden - ideal for work from home setup.
Security alarm system with camera to the rear of the house.
Working gas fires in the sitting room, dining room, drawing room and principal bedroom.
Please note that some of the pendant lights are not included in the sale.
Outside Space
Beautiful, landscaped front garden with mature shrubs and plants.
Large rear enclosed garden mainly laid to grass with mature shrubs and planting, decked and patio areas providing excellent relaxation, play and al fresco dining space.
Resident’s priority parking available subject to a modest annual fee.
More Details
EPC: D
Council Tax Band: G
Tenure: Freehold
Viewing by appointment.
Your home may be repossessed if you do not keep up repayments on your mortgage. There may be a fee for mortgage advice. The actual amount you pay will depend upon your circumstances.
Similar Properties
Looking To Sell Or Let?
Rettie is one of the most trusted and well-respected names in property. Our unrivalled market knowledge helps people from around the world buy, sell, let and develop property in Scotland and the North East of England - from city apartments and rural cottages to large townhouses and prime country homes, farms and estates. We deal with some of the most prestigious properties on the market, but provide the same exceptional standards of service and value for money to all our clients.
