Offers Over £845,000
Semi Detached House
4 Bedrooms
1 Bathroom
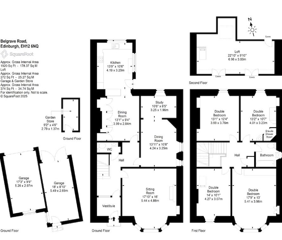
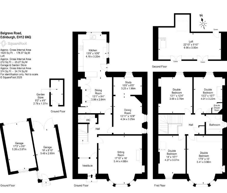
1,920 sq.ft
Private Garden
Double Garage
Off Street Parking
Property Description
Set on one of Corstorphine's most sought-after residential streets, 68 Belgrave Road is a beautifully proportioned four-bedroom semi-detached Edwardian villa offering generous family accommodation, together with a private garden, two single garages and a garden store.
The property seamlessly blends period charm with modern comfort, retaining elegant original features such as high ceilings, decorative cornicing, bay windows and an impressive entrance vestibule.
The ground floor comprises a welcoming hallway, a bright and spacious sitting room with bay window to the front, and two versatile dining rooms ideal for formal and family entertaining. To the rear, the contemporary kitchen enjoys direct access to the garden and is complemented by a study and cloakroom/WC.
Upstairs, the first floor features four well-proportioned double bedrooms, including one with a shower, and a stylish family bathroom. In addition, there is a generous floored loft space, perfect for extra storage. This area previously had planning consent to be converted into an additional level, offering excellent potential for a further bedroom, playroom, or home office.
Externally, the property benefits from a delightful enclosed rear garden, two single garages and a garden store.
Perfectly positioned directly opposite Corstorphine Tennis Club, the house enjoys a lovely outlook and a strong sense of community, while also being within easy reach of the city centre, excellent local schooling, and the superb amenities of Corstorphine and Murrayfield. There are excellent transport links, including convenient access to the tram network, Edinburgh Airport and major road routes.
A truly exceptional family home in one of Edinburgh’s most desirable areas.
More Details
EPC: D
Council Tax Band: G
Tenure: Freehold
Viewing strictly by appointment.
Your home may be repossessed if you do not keep up repayments on your mortgage. There may be a fee for mortgage advice. The actual amount you pay will depend upon your circumstances.
Similar Properties
Looking To Sell Or Let?
Rettie is one of the most trusted and well-respected names in property. Our unrivalled market knowledge helps people from around the world buy, sell, let and develop property in Scotland and the North East of England - from city apartments and rural cottages to large townhouses and prime country homes, farms and estates. We deal with some of the most prestigious properties on the market, but provide the same exceptional standards of service and value for money to all our clients.
