Offers Over £285,000
Ground Floor Apartment
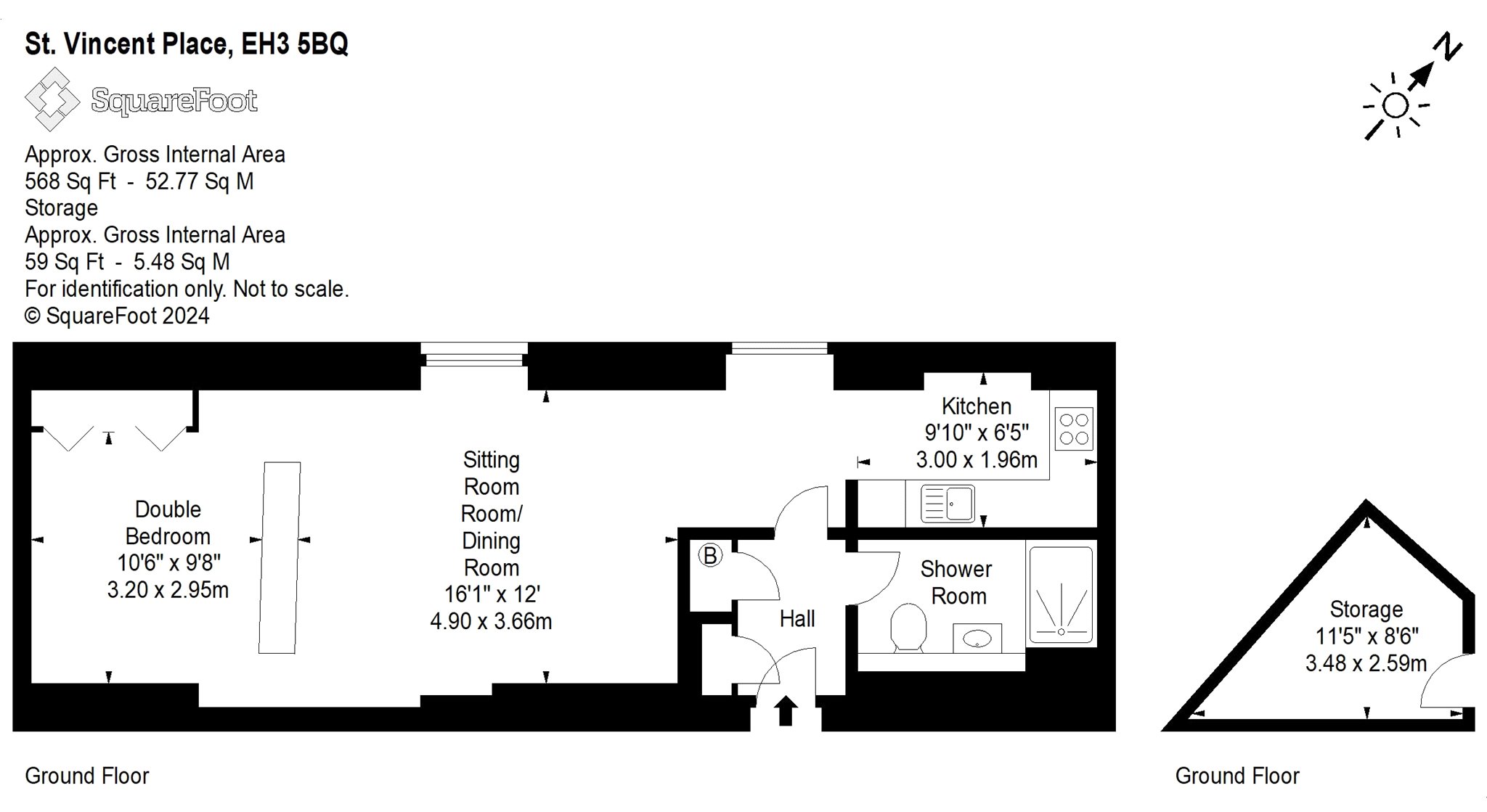
1 Bedroom
1 Bathroom
1 Reception Room
565 sq.ft
Property Description
An immaculate and spacious ground floor one bedroom studio apartment forming part of the exclusive St Vincent Place development by AMA. Entered from a well maintained secure communal hallway the property offers cleverly designed spacious and contemporary living with a large living/dining/kitchen, bedroom space with build in wardrobes and a tiled bathroom with shower. The property would make a fantastic pied a terre or investment in a peaceful New Town location. The property also benefits from a spacious secure external storage unit.
The property is ideally placed to take full advantage of the cultural highlights of the city-centre and the much sought after Stockbridge which is a hub of independent shops, coffee spots, restaurants and bars.
Accommodation Comprises
Entrance hallway, living/kitchen/dining room with bedroom, bathroom.
More Details
EPC: B
Council Tax Band: D
Tenure: Freehold
Your home may be repossessed if you do not keep up repayments on your mortgage.
There may be a fee for mortgage advice. The actual amount you pay will depend upon your circumstances. The fee is up to 1% but a typical fee is 0.3% of the amount borrowed.
Similar Properties
Looking To Sell Or Let?
Rettie is one of the most trusted and well-respected names in property. Our unrivalled market knowledge helps people from around the world buy, sell, let and develop property in Scotland and the North East of England - from city apartments and rural cottages to large townhouses and prime country homes, farms and estates. We deal with some of the most prestigious properties on the market, but provide the same exceptional standards of service and value for money to all our clients.
