Flat 3, 15 South Learmonth Gardens, Comely Bank, Edinburgh, EH4 1EZ
Property Description
This stunning three-bedroom apartment is situated on the third floor of a beautifully converted traditional townhouse designed by multiple award-winning architects, Morgan McDonnell, and one of Edinburgh’s most revered luxury developers, Square and Crescent. The property enjoys a prime location with the thriving amenities of Stockbridge and the West End on your doorstep.
Residents also enjoy access to exclusive, landscaped two-acre gardens for a modest annual fee.
Summary of Accommodation
Shared Entrance and Well-Maintained Communal Stair with Secure Phone Entry System
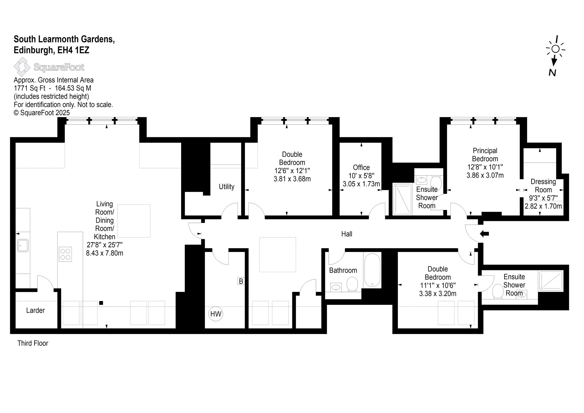
Third Floor Level
Entrance Hall, Two Storage Cupboards, Open Plan Sitting Room/Dining Kitchen, Utility,
Three Double Bedrooms, Two with En-suites and one with Dressing Room, Study, Bathroom.
Outdoor Space
Residents Gardens Subject to a Modest Annual Fee
Resident Permit & Metred Parking.
More Details
EPC - B
Council Tax Band - F
Tenure - Freehold
Your home may be repossessed if you do not keep up repayments on your mortgage. There may be a fee for mortgage advice. The actual amount you pay will depend upon your circumstances.
Similar Properties
Looking To Sell Or Let?
Rettie is one of the most trusted and well-respected names in property. Our unrivalled market knowledge helps people from around the world buy, sell, let and develop property in Scotland and the North East of England - from city apartments and rural cottages to large townhouses and prime country homes, farms and estates. We deal with some of the most prestigious properties on the market, but provide the same exceptional standards of service and value for money to all our clients.
