Property Description
Located on a charming cobbled street in the heart of Stockbridge, this immaculately presented upper colony flat offers stylish, modern living within a classic Edinburgh setting. Fully renovated and beautifully decorated throughout, Kemp Place offers a fabulous, two bedroom apartment with a private garden.
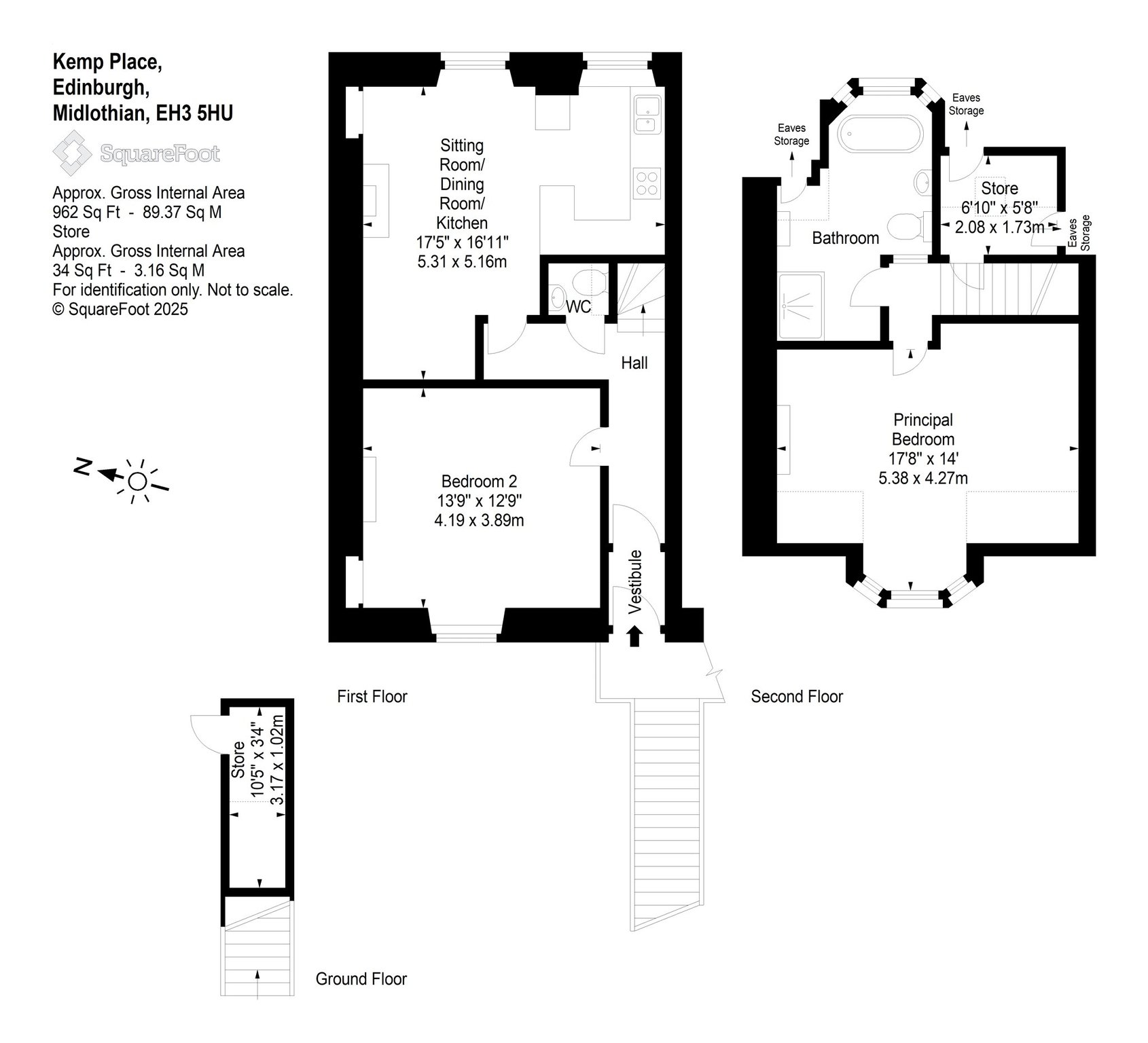
This upper colony flat is over first and second floors with the first floor being home to a beautifully renovated sitting room/ kitchen/ dining room, large bedroom and handy WC. Upstairs, a spacious principal bedroom, large bathroom with separate bath and shower and useful storage, complete this beautiful home.
Location
Located just moments from Inverleith Park, the Water of Leith walkway, and the vibrant village atmosphere of Stockbridge, this property combines tranquil living with outstanding convenience.
Viewing is highly recommended.
More Details
EPC: C
Council Tax Band: E
Tenure: Freehold
Your home may be repossessed if you do not keep up repayments on your mortgage. There may be a fee for mortgage advice. The actual amount you pay will depend upon your circumstances.
Similar Properties
Looking To Sell Or Let?
Rettie is one of the most trusted and well-respected names in property. Our unrivalled market knowledge helps people from around the world buy, sell, let and develop property in Scotland and the North East of England - from city apartments and rural cottages to large townhouses and prime country homes, farms and estates. We deal with some of the most prestigious properties on the market, but provide the same exceptional standards of service and value for money to all our clients.
