Property Description
Nestled in the heart of vibrant Leith, this three-bedroom split-level property at 10 Elm Place presents a rare opportunity for buyers. Offering an exciting prospect for refurbishment and modernisation, this spacious home spans approx. 85.3 sqm / 917.7 sqft and benefits from a private front garden, making it a standout option in one of Edinburgh’s most dynamic neighbourhoods.
With an abundance of original charm, generously sized rooms, and flexible living space, this home is ideal for those looking to put their own stamp on a property.
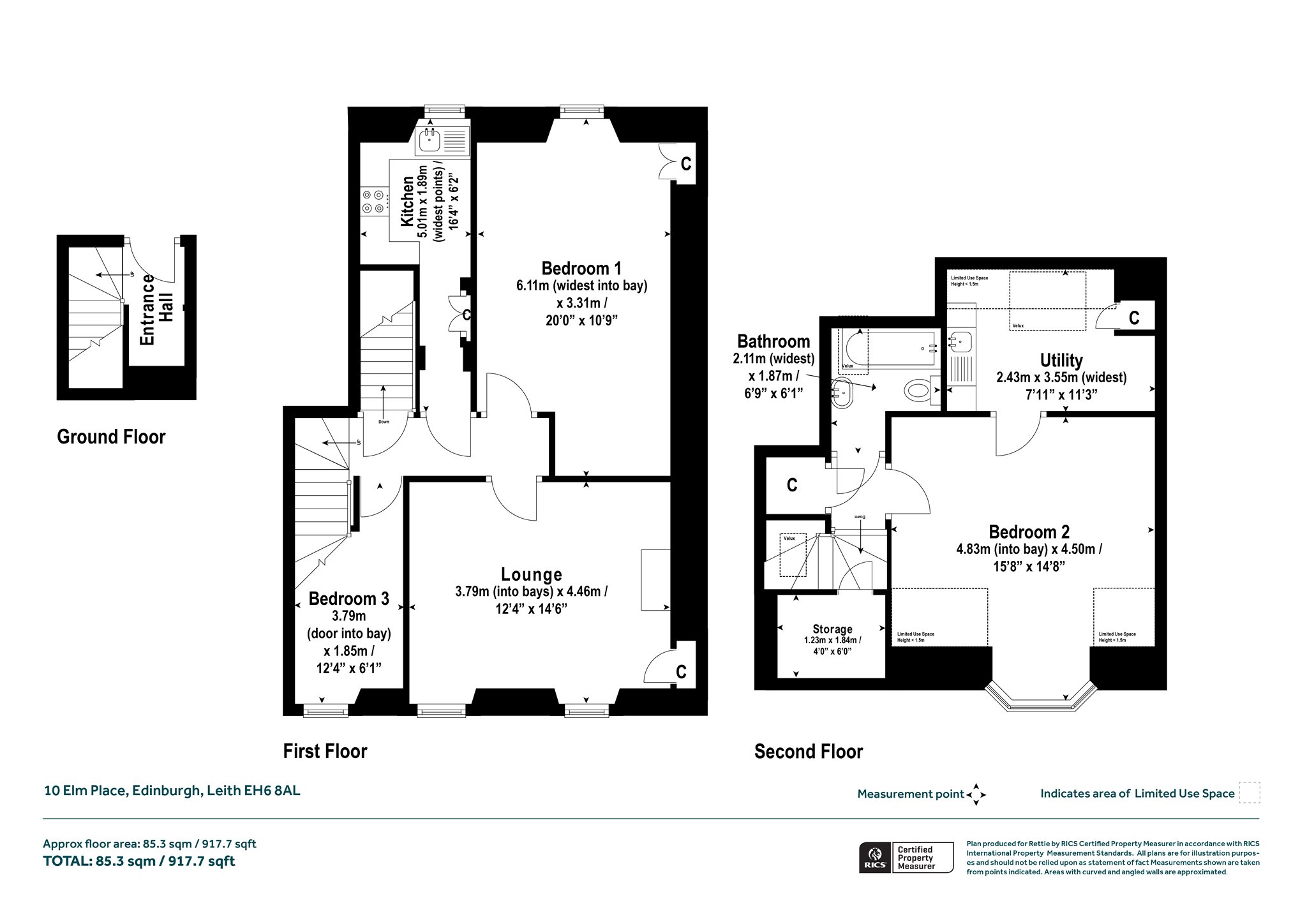
This unique home is spread across two levels and includes a private front garden, a rare find in the Leith area. The property boasts three well-proportioned bedrooms, a generously sized lounge with a bay window, and a separate kitchen. The inclusion of a utility room adds to the practicality of the layout, while additional storage spaces throughout the home offer excellent functionality. Though currently unmodernised, the property provides the perfect canvas for renovation, making it ideal for those seeking to create a personalised living space. Located just minutes from local amenities, public transport links, and the vibrant cultural life of Leith, this property combines potential, space, and location.
Entry is via a private front door and entrance hall at ground level, with stairs leading to the main living areas. On the first floor, you’ll find a bright and spacious lounge featuring a large bay window, alongside Bedroom one, an expansive double room also benefiting from a bay window and generous proportions. Bedroom three, located on the same floor, offers flexibility as a single bedroom, home office, or nursery. The kitchen, positioned off the central hallway, is a galley-style space with scope for reconfiguration or extension.
Upstairs on the second floor, Bedroom two impresses with its size and natural light, thanks to another wide bay window. A dedicated utility room adds convenience and could be adapted to suit different lifestyle needs. The family bathroom is functional, with potential for upgrading. This floor also includes valuable storage areas, including a walk-in cupboard and under-eaves space, maximising the home’s practicality.
Summary Of Accommodation
Ground Floor
Entrance Hallway with stairs leading to first floor.
First Floor
Lounge, Kitchen, Bedroom One, Bedroom Three.
Second Floor
Bedroom Two, Family Bathroom, Utility Room, Two Large Storage Cupboards.
More Details
EPC - D
Council Tax - D
Tenure - Freehold
Your home may be repossessed if you do not keep up repayments on your mortgage. There may be a fee for mortgage advice. The actual amount you pay will depend upon your circumstances.
Similar Properties
Looking To Sell Or Let?
Rettie is one of the most trusted and well-respected names in property. Our unrivalled market knowledge helps people from around the world buy, sell, let and develop property in Scotland and the North East of England - from city apartments and rural cottages to large townhouses and prime country homes, farms and estates. We deal with some of the most prestigious properties on the market, but provide the same exceptional standards of service and value for money to all our clients.
