Offers Over £425,000
Apartment
2 Bedrooms
1 Bathroom
1 Reception Room
768 sq.ft
Communal Garden
Secure Parking
Property Description
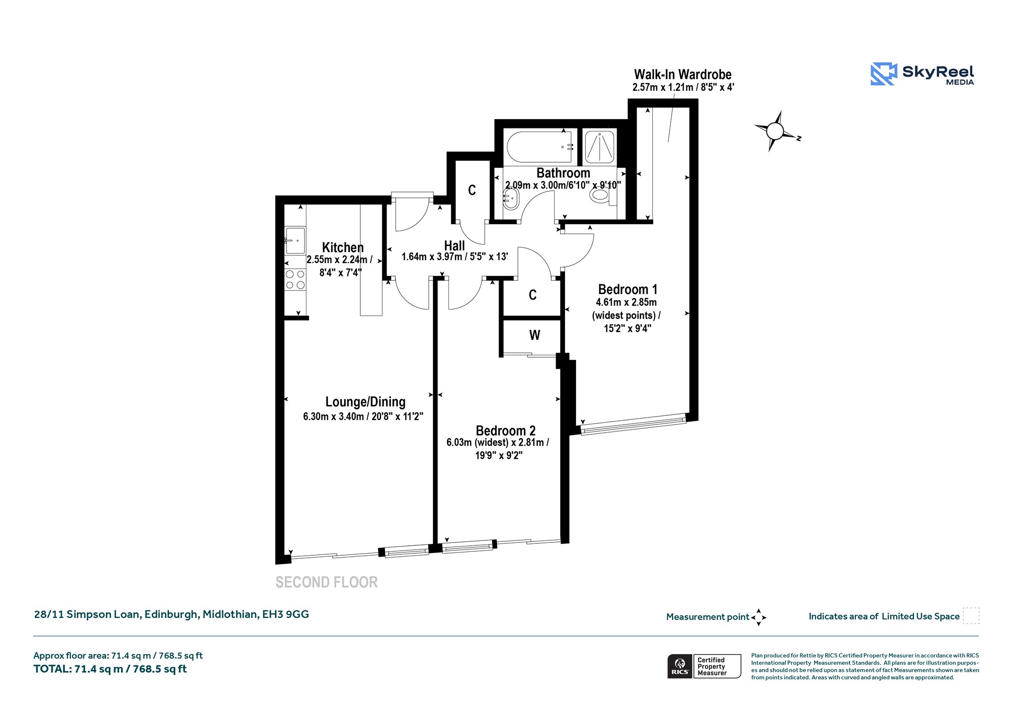
Situated within the highly sought-after and award-winning Quartermile development, this beautifully presented two-bedroom apartment with secure allocated parking place offers contemporary urban living in one of Edinburgh’s most desirable locations. With an approximate internal area of 786 sq ft (71.3 sq m) and access to the development’s exclusive private gardens, the property spacious accommodation and perfectly suited for professionals, investors, or anyone seeking stylish city centre living.
The stylish accommodation comprises hall with two good sized storage cupboards, open plan living, dining, kitchen - the kitchen is ergonomically designed with fully fitted sleek wall and floor mounted cabinetry accented by granite worksurfaces with a range of integrated applicances, two good sized double bedrooms, the principal bedroom with walk-in, fitted dressing room, and a sleek modern fully fitted bathroom including separate shower and bath completes the accommodation.
The property benefits from double glazing and central heating throughout, ensuring year-round comfort and energy efficiency. Situated on the second floor of the building, there is a lift access to all floors including garage level and a light-filled, well-maintained communal lobby, stairwell, and internal hall. A secure video entry phone system provides peace of mind.
The communal estate grounds at the Quartermile development are maintained to an exceedingly high standard and include sweeping, gated lawn gardens. Enclosed beyond sandstone walls and traditional wrought iron railings, the private south-facing grounds have an iconic outlook over Edinburgh’s much-beloved park, The Meadows.
More Details
EPC: B
CT Band: F
Tenure: Freehold
Viewing by appointment.
Your home may be repossessed if you do not keep up repayments on your mortgage. There may be a fee for mortgage advice. The actual amount you pay will depend upon your circumstances.
Similar Properties
Looking To Sell Or Let?
Rettie is one of the most trusted and well-respected names in property. Our unrivalled market knowledge helps people from around the world buy, sell, let and develop property in Scotland and the North East of England - from city apartments and rural cottages to large townhouses and prime country homes, farms and estates. We deal with some of the most prestigious properties on the market, but provide the same exceptional standards of service and value for money to all our clients.
