Property Description
48 Northumberland Street is a meticulously presented, fully restored and refurbished four storey townhouse, arguably one of the finest examples in the New Town, enviably located within a picture perfect cobbled street. This exquisite family home is second to none, offering the epitome of modern Edinburgh living. Renovated by the current owners to an exacting standard, the property exudes elegance with exceptional proportions and bespoke cabinetry throughout. Replete in some of the finest period features, the property effortlessly blends extensive and delicate plaster work, magnificent marble fireplace, original flagstone flooring, cast iron balustrade, and cupola, all set against contemporary interior finished to the highest standard.
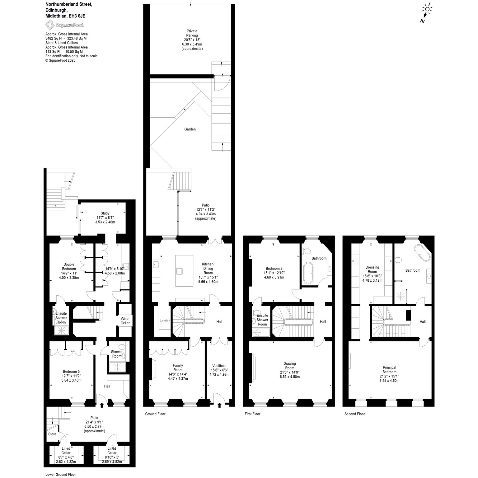
Spanning 3,482 square feet and arranged over four levels, the property offers capacious and versatile family accommodation. Accessed through its grand entrance vestibule and hall, the ground floor is host to the family room with log burner, and fully equipped dining kitchen (with larder room) benefitting from high specification integrated appliances with direct access to the rear garden patio area through French doors. On the first floor, and of particular mention, is the breathtaking triple windowed drawing room affording views over the intact Georgian façade of Northumberland Street. A second double bedroom with ensuite shower room, and family bathroom complete the first-floor accommodation. The second floor is home to the principal bedroom suite with walk in dressing room and four-piece suite bathroom. On the lower ground floor, there are two further double bedrooms, one with ensuite shower room, utility area with pulley dryer, wine cellar, shower room and useful boot room to the front with fitted hanging space. Completing the accommodation is the brand-new study, bathed in natural light due to its southerly aspect and expanse of glass through its floor to ceiling glass doors.
Externally, the property benefits from a private front courtyard with two lined under pavement cellars and under stair store. To the rear is the south facing professionally designed and landscaped tiered garden with patio ideal for al fresco dining and entertaining. Residents can also apply for access to the private residential Queen Street Central Gardens, an oasis of green space within the city centre, subject to a modest annual fee.
More Details
EPC: C
Council Tax Band: H
Tenure: Freehold
Viewing by appointment only.
Your home may be repossessed if you do not keep up repayments on your mortgage. There may be a fee for mortgage advice. The actual amount you pay will depend upon your circumstances.
Similar Properties
Looking To Sell Or Let?
Rettie is one of the most trusted and well-respected names in property. Our unrivalled market knowledge helps people from around the world buy, sell, let and develop property in Scotland and the North East of England - from city apartments and rural cottages to large townhouses and prime country homes, farms and estates. We deal with some of the most prestigious properties on the market, but provide the same exceptional standards of service and value for money to all our clients.
