Property Description
This stunning first-floor apartment is set within a traditional Georgian building on one of the New Town’s most desirable residential streets. Combining elegant period proportions with modern upgrades, the property offers a rare opportunity to acquire a spacious and beautifully finished home in the very heart of Edinburgh. Having recently undergone refurbishment, the apartment features a stylish new kitchen and bathroom, enhancing both functionality and comfort while complementing the property’s classic character. With its generous rooms, refined details, and sought-after location, this is an exceptional city home perfectly suited to professionals, couples, or those seeking a pied-à-terre in the capital.
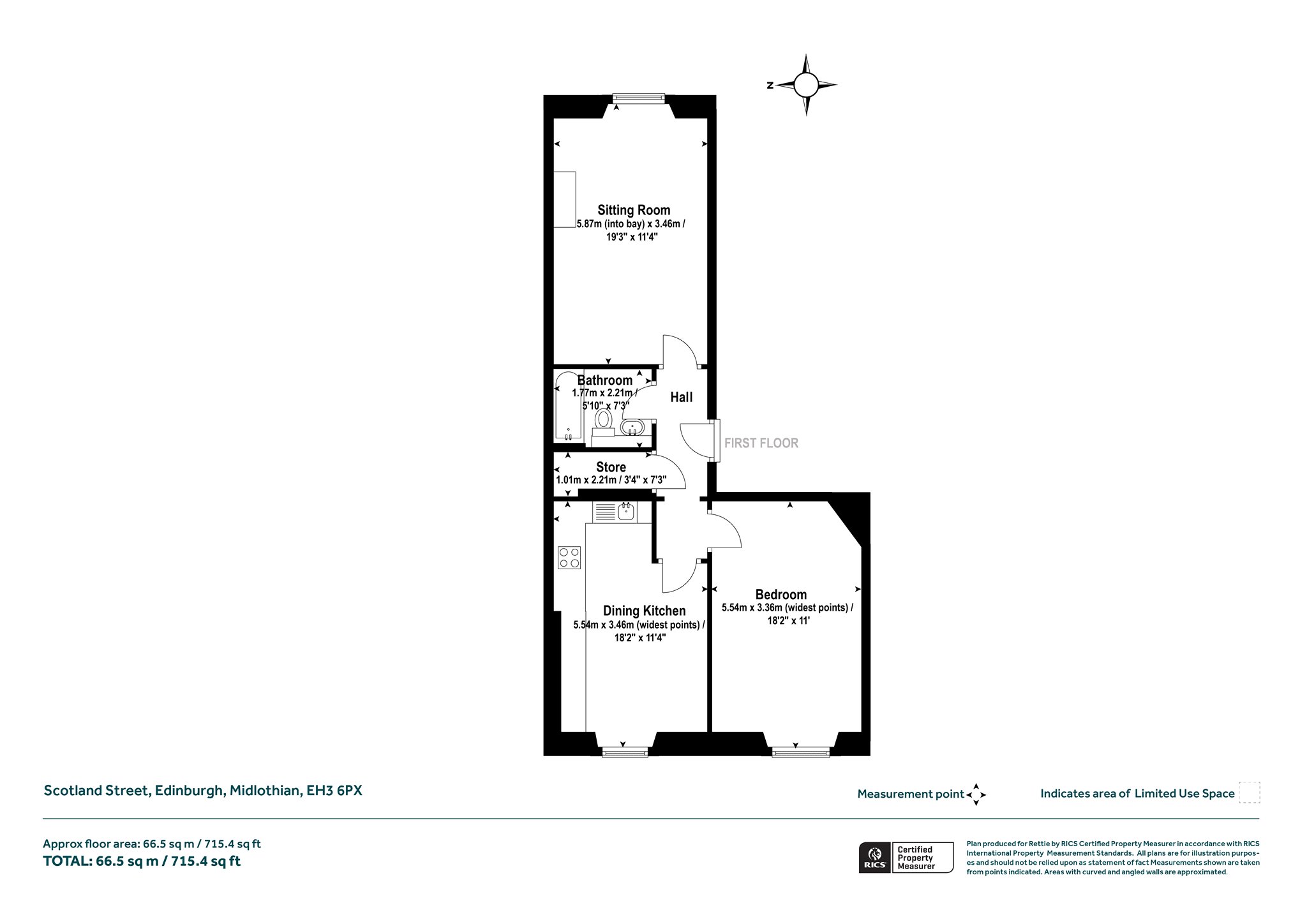
The accommodation extends to approximately 715 sq. ft (66.5 sq. m) and has been thoughtfully arranged to maximise both space and light. The sitting room is a highlight of the property, with its impressive proportions, tall ceilings, and large window that floods the room with natural light. This elegant space provides an ideal setting for entertaining guests or enjoying quiet evenings at home. The dining kitchen has been newly refurbished to a high standard and offers a well-planned blend of modern appliances, ample storage, and workspace, alongside plenty of room for dining. It forms the heart of the home and is perfect for both everyday living and social occasions. The large double bedroom mirrors the sitting room’s scale and grandeur that creates a bright and welcoming atmosphere. A newly fitted bathroom with contemporary finishes provides style and convenience, while a practical store room offers valuable additional storage space.
Summary Of Accommodation
Entrance Hallway, Sitting Room, Dining/Kitchen, Bedroom, Bathroom, Store Room.
More Details
Tenure - Freehold
Council Tax - D
EPC - C
Your home may be repossessed if you do not keep up repayments on your mortgage. There may be a fee for mortgage advice. The actual amount you pay will depend upon your circumstances.
Similar Properties
Looking To Sell Or Let?
Rettie is one of the most trusted and well-respected names in property. Our unrivalled market knowledge helps people from around the world buy, sell, let and develop property in Scotland and the North East of England - from city apartments and rural cottages to large townhouses and prime country homes, farms and estates. We deal with some of the most prestigious properties on the market, but provide the same exceptional standards of service and value for money to all our clients.
