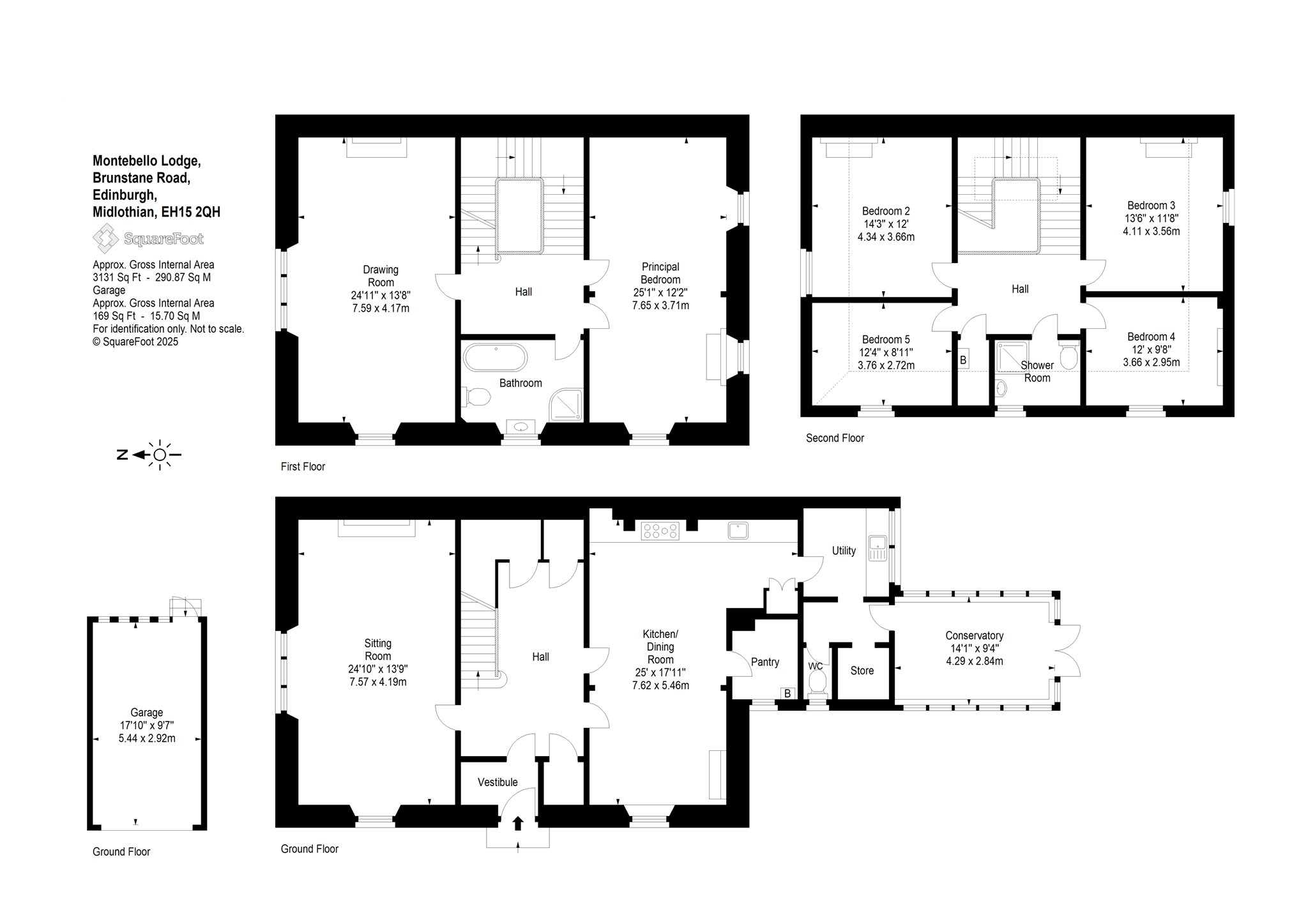
Montebello Lodge, 23 Brunstane Road, Portobello, Edinburgh, EH15 2QH
Property Description
Montebello Lodge is a truly stunning and immaculately presented five-bedroom semi-detached, period house, situated on one of Portobello’s most desirable residential streets, a few minutes walk from Portobello Beach. This handsome stone-built villa has been meticulously maintained and thoughtfully upgraded to offer exceptional accommodation over three levels, while retaining a wealth of fine original features including ornate fireplaces, working shutters, exquisite cornicing and ceiling roses, and polished timber floors. The beautifully proportioned first floor drawing room boasts an original working fireplace, while the sitting room on the ground floor enjoys a wood-burning stove - ideal for relaxed evenings. A spectacular bespoke kitchen and dining space forms the heart of the home, complete with pantry and utility room, and flows through to a Mozolowski & Murray-designed conservatory that bathes the rear of the house in natural light throughout the day and gives access to the extensive garden.
Upstairs, the accommodation continues to impress with a generous dual-aspect principal bedroom, and top floor front-facing rooms offering stunning panoramic views across the Firth of Forth to Fife. Four further double bedrooms provide flexible family living, complemented by a stylish bathroom and separate shower room. Externally, the property enjoys a substantial private driveway with EV charger and ample space for multiple vehicles, a detached single garage, and a beautifully landscaped, low-maintenance rear garden with zoned patio areas and lawn that benefits from all-day sun. This much loved family home is a rare opportunity to acquire a home of scale, charm and distinction, in true walk-in condition.
Summary Of Accommodation
Ground Floor
Entrance Vestibule & Hall, Hall Storage Cupboards, Sitting Room, Kitchen/Dining Room, Pantry, Utility Room, Further Storage, WC, Conservatory
First Floor
Drawing Room, Principal Bedroom, Bathroom
Second Floor
Four Double Bedrooms, Deep Hall Storage Cupboard, Shower Room
Outside Space
Front Garden with Gated Driveway, and off-Street Parking with EV Charger
Garage
Multi-Zoned Garden with Patio and Lawn
More Details
EPC: D
Council Tax Band: G
Tenure: Freehold
Viewing by appointment.
Your home may be repossessed if you do not keep up repayments on your mortgage. There may be a fee for mortgage advice. The actual amount you pay will depend upon your circumstances.
Similar Properties
Looking To Sell Or Let?
Rettie is one of the most trusted and well-respected names in property. Our unrivalled market knowledge helps people from around the world buy, sell, let and develop property in Scotland and the North East of England - from city apartments and rural cottages to large townhouses and prime country homes, farms and estates. We deal with some of the most prestigious properties on the market, but provide the same exceptional standards of service and value for money to all our clients.
