Offers Over £190,000
First Floor Apartment
1 Bedroom
1 Bathroom
1 Reception Room
499 sq.ft
On Street/Permit
Property Description
Set on the first floor of a traditional tenement, this well-proportioned one-bedroom flat is ideally located in the highly sought-after Leith Links area, close to excellent local amenities and transport links.
The accommodation is thoughtfully laid out and comprises a welcoming hall with useful storage, a bright and spacious lounge/dining room offering ample space for both relaxing and entertaining, and a well-appointed kitchen fitted with a range of base and wall-mounted units. The generous double bedroom benefits from good natural light and comfortable proportions, while the modern shower room is neatly finished with contemporary fittings.
The property further benefits from gas central heating and double glazing, ensuring year-round comfort. Externally, residents have access to a well-maintained communal stair and shared garden grounds, typical of the area.
Iona Street is perfectly positioned for enjoying all that Leith has to offer, including the open green spaces of Leith Links, a wide selection of cafés, bars and restaurants, and convenient access to the city centre, Shore and beyond.
This attractive flat will appeal to first-time buyers, professionals and investors alike.
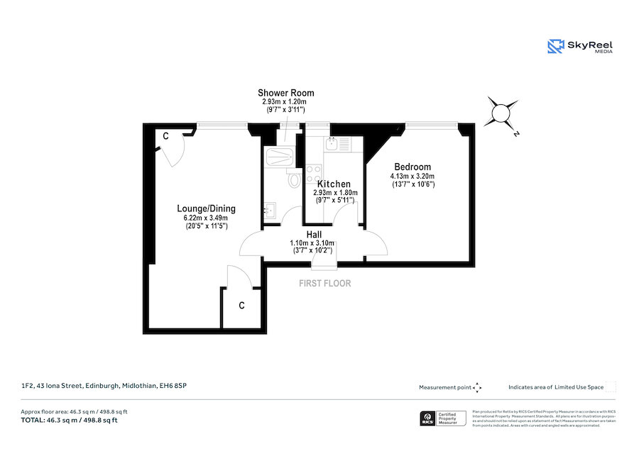
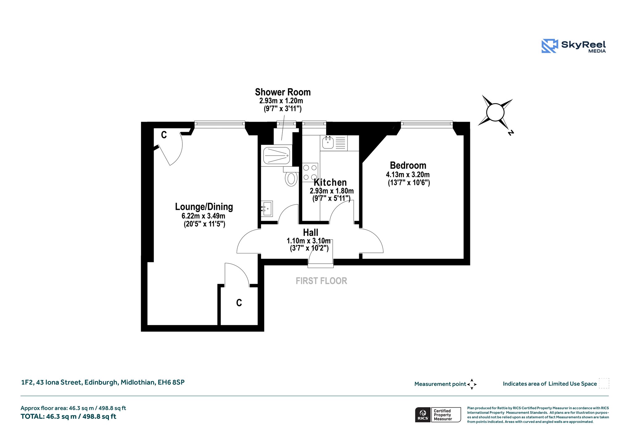
Summary Of Accommodation
First Floor
Entrance hallway with storage, bright lounge/dining room, fitted kitchen, double bedroom, modern shower room.
External
Access to well-maintained communal rear garden via communal stair.
Leith is one of Edinburgh’s most dynamic and sought-after districts, renowned for its vibrant atmosphere, rich history, and thriving local community. Located just north of the city centre, it blends a unique mix of heritage architecture, contemporary developments, and a bustling waterfront scene.
At the heart of Leith is The Shore, a lively area lined with award-winning restaurants, trendy cafés, traditional pubs, and artisan shops. The district also offers excellent cultural attractions, including the Royal Yacht Britannia at nearby Ocean Terminal and various galleries and creative spaces that showcase Leith’s artistic spirit.
Leith is exceptionally well-connected, with regular bus services and the Edinburgh Tram extension now providing direct links to the city centre and airport. The area is also popular with professionals due to its proximity to tech hubs, creative industries, and financial districts.
Green spaces such as Leith Links and the Water of Leith Walkway provide peaceful outdoor escapes, while a growing number of independent retailers, delis, and local markets contribute to Leith’s strong sense of community and charm.
With its distinctive character, excellent amenities, and ongoing regeneration, Leith continues to be one of the most desirable places to live in Edinburgh.
More Details
EPC: C
Council Tax Band: B
Tenure: Freehold.
Viewing by appointment via Rettie & Co.
Your home may be repossessed if you do not keep up repayments on your mortgage. There may be a fee for mortgage advice. The actual amount you pay will depend upon your circumstances.
Similar Properties
Looking To Sell Or Let?
Rettie is one of the most trusted and well-respected names in property. Our unrivalled market knowledge helps people from around the world buy, sell, let and develop property in Scotland and the North East of England - from city apartments and rural cottages to large townhouses and prime country homes, farms and estates. We deal with some of the most prestigious properties on the market, but provide the same exceptional standards of service and value for money to all our clients.
