Offers Over £535,000
First Floor Apartment
4 Bedrooms
2 Bathrooms
1 Reception Room
1,579 sq.ft
Communal Garden
On Street/Permit
Property Description
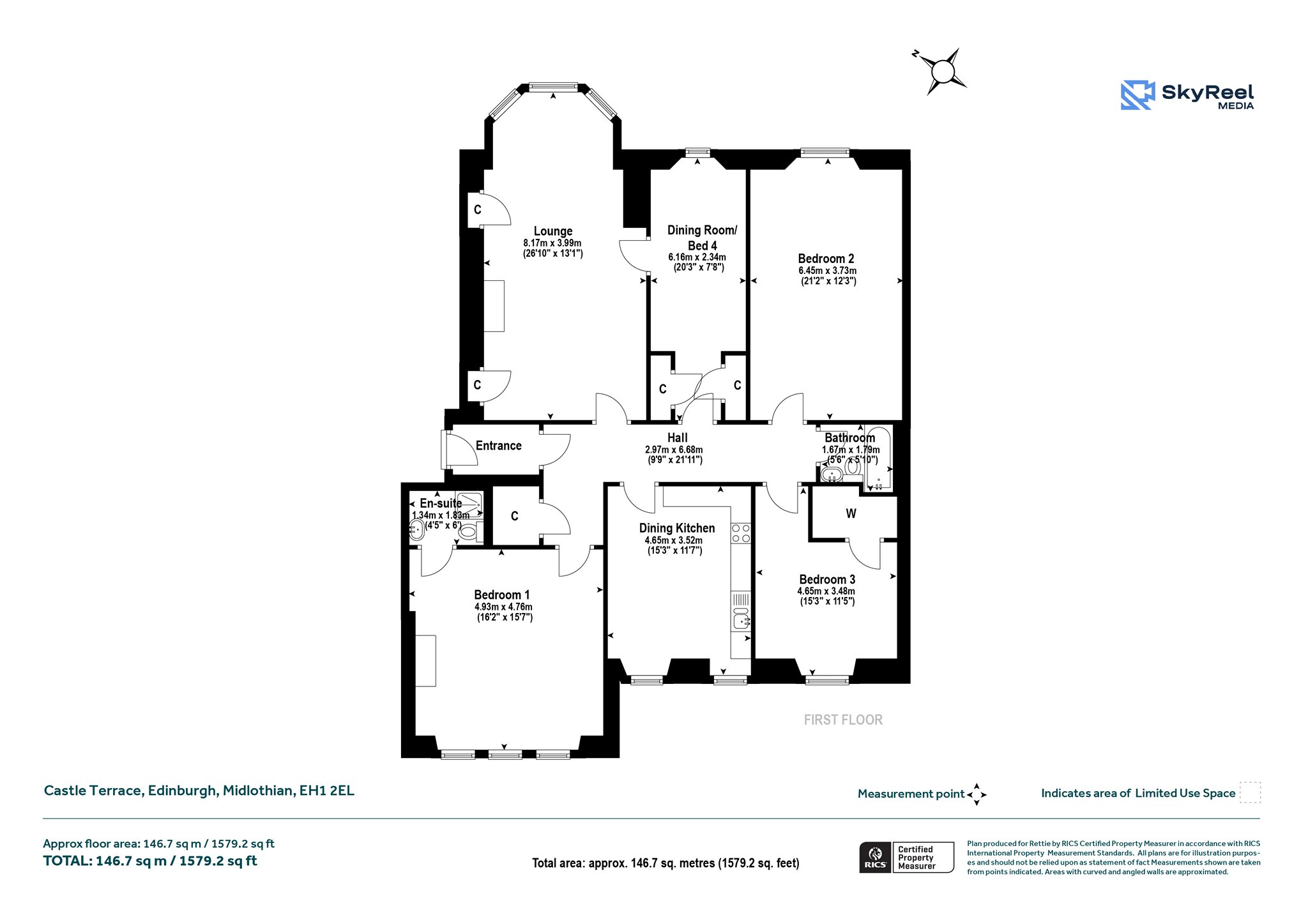
Set in one of Edinburgh’s most iconic addresses, this magnificent four-bedroom first-floor flat on Castle Terrace offers an exceptional opportunity to acquire a spacious city-centre home brimming with period character and potential for modernisation. Occupying approximately 1,579.2 sq.ft, the property forms part of a distinguished traditional tenement and is perfectly positioned to enjoy uninterrupted views of Edinburgh Castle and the historic skyline.
The accommodation is accessed via a well-maintained shared stair and comprises a welcoming entrance hall leading to all principal rooms. The impressive bay-windowed lounge enjoys breathtaking views of the Castle, complemented by high ceilings, ornate cornicing, and an original fireplace. The flexible dining room, which could also serve as a fourth bedroom, provides excellent space for entertaining or relaxation. The generous dining kitchen is light-filled with ample space for modern dining and offers superb scope for upgrading to a contemporary layout. The grand principal bedroom features large windows and a private en-suite shower room, while two further double bedrooms provide comfortable and versatile accommodation. A traditional family bathroom and ample built-in storage complete the internal layout.
Externally, residents benefit from access to a beautifully maintained communal garden, providing a peaceful green retreat in the heart of the city.
This exceptional home retains many period features and generous proportions throughout, offering a wonderful balance of heritage charm and renovation potential. With four double bedrooms (one en-suite), a spacious lounge and dining kitchen, and access to shared gardens, this is a rare opportunity to create a truly remarkable home in an enviable location.
Summary Of Accommodation
Entrance Vestibule, Entrance Hallway, Lounge, Dining Kitchen, Principal Bedroom with En-Suite Shower Room, Bedroom Two, Bedroom Three, Bedroom Four/Dining Room, Family Bathroom
Externally
Communal Garden, On-Street Permit Parking.
More Details
Tenure: Freehold
Council Tax: F
EPC: D
Your home may be repossessed if you do not keep up repayments on your mortgage. There may be a fee for mortgage advice. The actual amount you pay will depend upon your circumstances.
Similar Properties
Looking To Sell Or Let?
Rettie is one of the most trusted and well-respected names in property. Our unrivalled market knowledge helps people from around the world buy, sell, let and develop property in Scotland and the North East of England - from city apartments and rural cottages to large townhouses and prime country homes, farms and estates. We deal with some of the most prestigious properties on the market, but provide the same exceptional standards of service and value for money to all our clients.
