Flat 93, 1 Donaldson Drive, Edinburgh, Midlothian, EH12 5FA
Offers Over £850,000
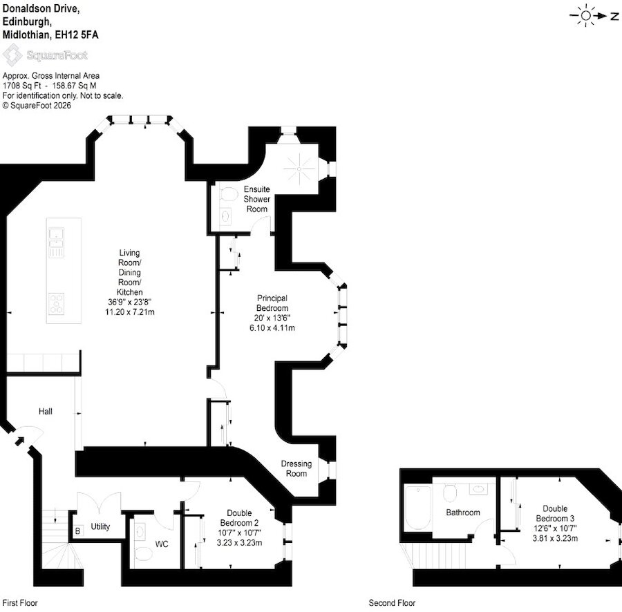
First Floor Apartment
3 Bedrooms
3 Bathrooms
1,708 sq.ft
Communal Garden
Off Street Parking
Property Description
Set within the iconic and prestigious Donaldson’s development, Flat 93 at Donaldson’s offers an outstanding opportunity to acquire a beautifully appointed apartment within one of Edinburgh’s most architecturally significant buildings.
Seamlessly blending historic grandeur with contemporary luxury, this impressive three-bedroom residence extends to approximately 1,708 sq ft and enjoys an enviable position in the heart of Edinburgh.
From the moment you arrive, the scale and elegance of this landmark building are unmistakable. Residents benefit from a dedicated concierge service, immaculately maintained communal areas, lift access and the reassurance of secure underground parking – with two private parking spaces included with the property.
The apartment itself is generously proportioned and thoughtfully designed, offering flexible accommodation ideal for both modern family living and entertaining.
The heart of the home is the spectacular open-plan living/dining/kitchen space, spanning over 36 feet. This expansive room is bathed in natural light and provides ample space for relaxing, dining and hosting, with a contemporary fitted kitchen featuring integrated appliances and sleek cabinetry.
The principal bedroom suite is particularly impressive, complete with a dressing room and stylish en suite shower room. Two further well-proportioned double bedrooms are served by a modern family bathroom, while a separate WC and utility room add further practicality. A welcoming entrance hall provides excellent storage.
Situated in Edinburgh’s desirable West End, the property enjoys superb connectivity and convenience. Haymarket Station is within easy reach, providing mainline rail services across Scotland and the UK, as well as the tram link connecting directly to Edinburgh Airport.
The area is exceptionally well placed for access to the city centre’s financial district, Princes Street and George Street, as well as the cosmopolitan amenities of the West End and nearby Stockbridge.
More Details
EPC: D
Council Tax Band: H
Tenure: Freehold
Viewing strictly by appointment.
Your home may be repossessed if you do not keep up repayments on your mortgage.
There may be a fee for mortgage advice. The actual amount you pay will depend upon your circumstances. The fee is up to 1% but a typical fee is 0.3% of the amount borrowed.
Similar Properties
Looking To Sell Or Let?
Rettie is one of the most trusted and well-respected names in property. Our unrivalled market knowledge helps people from around the world buy, sell, let and develop property in Scotland and the North East of England - from city apartments and rural cottages to large townhouses and prime country homes, farms and estates. We deal with some of the most prestigious properties on the market, but provide the same exceptional standards of service and value for money to all our clients.
