Offers Over £425,000
Lower Ground Apartment
2 Bedrooms
1 Bathroom
1 Reception Room
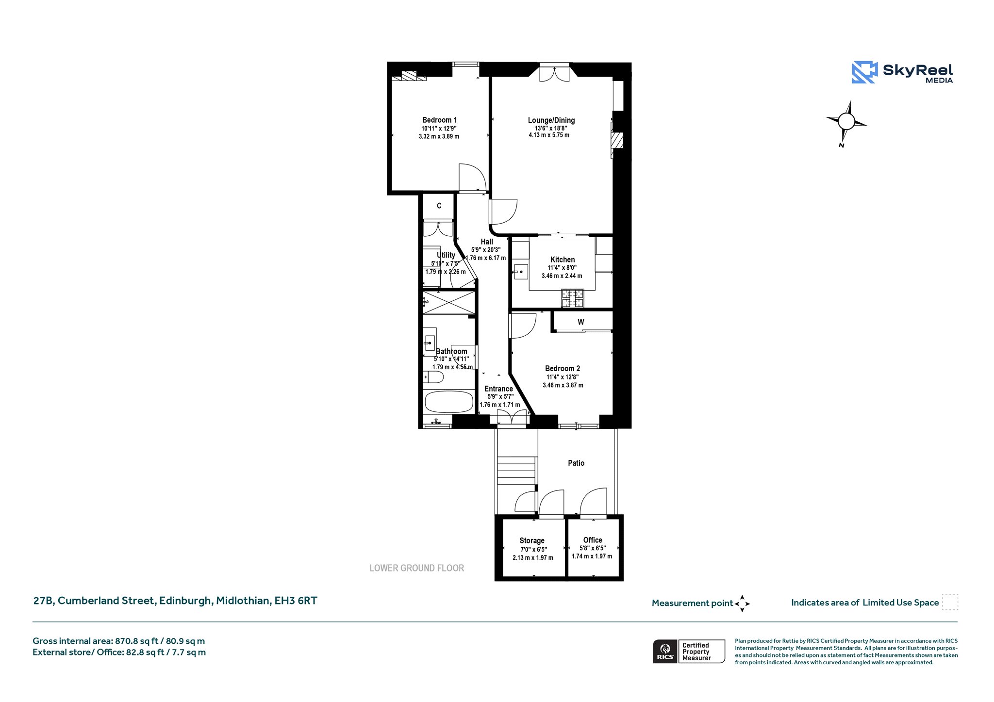
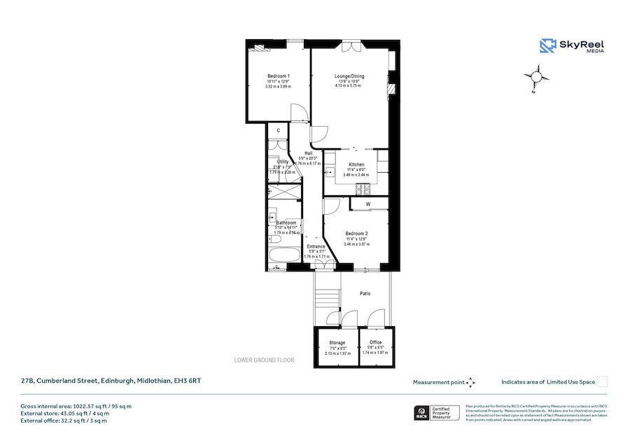
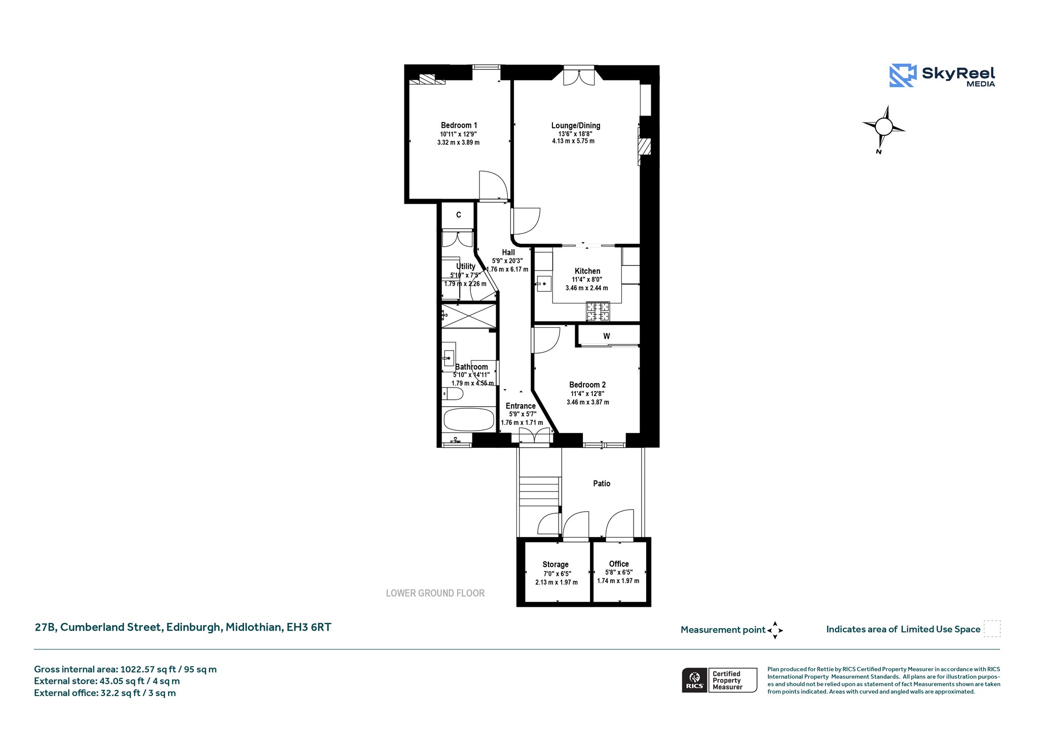
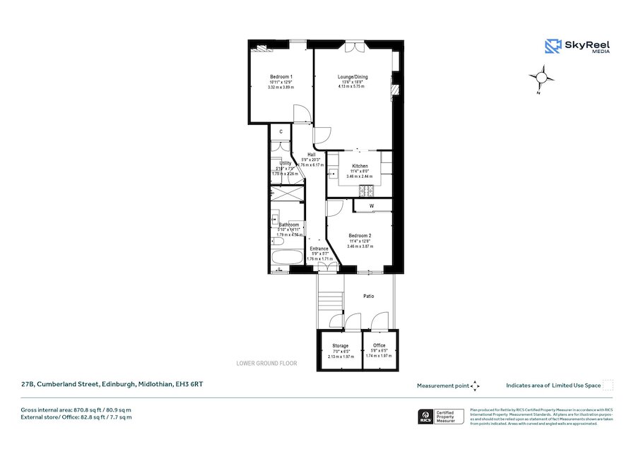
1,023 sq.ft
Private Garden
On Street/Permit
Property Description
Perfectly positioned in the heart of Edinburgh’s prestigious New Town, this beautifully presented lower ground two bedroom apartment offers an appealing blend of period charm, modern comfort and flexible living space. Set within a handsome Georgian building, the property benefits from a private rear garden and two drylined cellars, one of which is currently arranged as a fully functional home office, an ideal setup for hybrid working or creative pursuits.
A welcoming hallway leads into an impressive lounge and dining room, a generous and versatile space with excellent natural light and ample room for both relaxing and entertaining. The adjoining kitchen provides plentiful worktop and storage space, creating a practical and efficient layout for everyday cooking. Both bedrooms are well proportioned doubles, with Bedroom one quietly positioned toward the front of the property and Bedroom two offering a peaceful outlook onto the garden. A contemporary large bathoom completes the internal accommodation.
One of the standout features of this property is the private rear garden, a rare luxury in this highly sought after area. Offering a tranquil outdoor retreat, it is perfectly suited to relaxing and dining. The two drylined cellars below the property significantly enhance its appeal, providing valuable additional space. One cellar functions as a dedicated office, while the other offers excellent storage or workshop potential, giving the home a level of versatility not often found in New Town apartments.
Summary Of Accommodation
Entrance Hallway, Lounge/Dining Room, Kitchen, Bedroom One, Bedroom Two, Bathroom, Utility Room.
Outside Space
Back Garden, Front Terrace, Two Dry Lined Cellars, Under Steps Cellar.
More Details
Tenure - Freehold
Council Tax - D
EPC - C
Your home may be repossessed if you do not keep up repayments on your mortgage.
There may be a fee for mortgage advice. The actual amount you pay will depend upon your circumstances. The fee is up to 1% but a typical fee is 0.3% of the amount borrowed.
Similar Properties
Looking To Sell Or Let?
Rettie is one of the most trusted and well-respected names in property. Our unrivalled market knowledge helps people from around the world buy, sell, let and develop property in Scotland and the North East of England - from city apartments and rural cottages to large townhouses and prime country homes, farms and estates. We deal with some of the most prestigious properties on the market, but provide the same exceptional standards of service and value for money to all our clients.
