Offers Over £260,000
Apartment
1 Bedroom
1 Bathroom
1 Reception Room
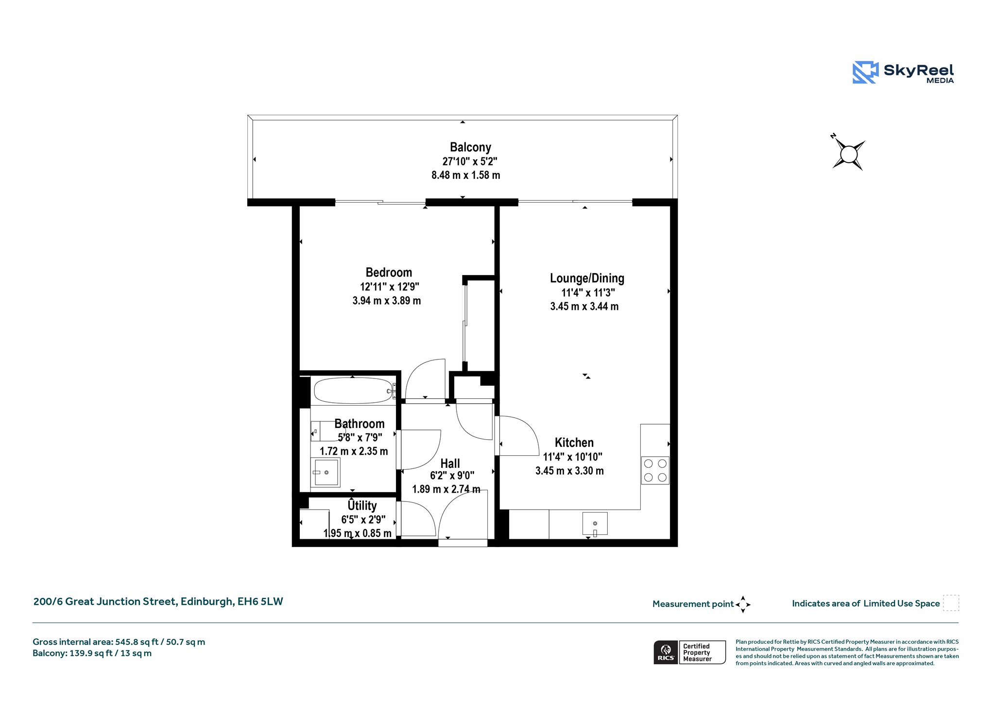
545 sq.ft
On Street/Permit
Property Description
A luxurious, one-bedroom apartment forming part of an award-winning development located in a converted B-listed Art Deco Cinema by the Water of Leith, minutes from Leith's iconic Shore.
The development is entered under a stunning picture house canopy into a sensitively restored entrance foyer which leads through to the apartments and to the attractive south-facing Residents’ Courtyard. There is a shared resident’s roof terrace which offers stunning panoramic views over the city to Edinburgh Castle. The apartments are serviced by a video entry phone system, lift service and solar panels power the communal areas.
This stunning apartment is presented in turn-key condition and benefits from large windows, flooding the property with natural light. Located on the first floor, a particular feature is the generous open plan sitting room/dining/kitchen which has a door leading to the balcony which runs the full length of the apartment and has stunning views over the Water of Leith. The designer German kitchen has a four-zone induction hob with extractor, a single electric fan oven, integrated fridge freezer and dishwasher. The spacious double bedroom features double fitted wardrobes and access to the balcony, a modern bathroom and utility/storeroom completes the accommodation.
Summary Of Accommodation
First Floor
Hall, Open Plan Living / Dining / Kitchen, Double Bedroom, Bathroom, Utility
Triple glazing and gas central heating
Video Entry Phone, Lift
Outside
Balcony, Shared Residents’ Courtyard & Roof Terrace, Bicycle Storage
Residents’ Permit Parking and Pay & Display Parking provided nearby.
More Details
EPC: B
Council Tax Band: D
Tenure: Freehold
Viewing by appointment.
Your home may be repossessed if you do not keep up repayments on your mortgage.
There may be a fee for mortgage advice. The actual amount you pay will depend upon your circumstances. The fee is up to 1% but a typical fee is 0.3% of the amount borrowed.
Similar Properties
Looking To Sell Or Let?
Rettie is one of the most trusted and well-respected names in property. Our unrivalled market knowledge helps people from around the world buy, sell, let and develop property in Scotland and the North East of England - from city apartments and rural cottages to large townhouses and prime country homes, farms and estates. We deal with some of the most prestigious properties on the market, but provide the same exceptional standards of service and value for money to all our clients.
