Property Description
A fabulous B-Listed 4-bedroom family home, with a stunning open-plan extension to the rear, generous garden and off-street parking, within close proximity of Gullane’s amenities and commuting distance of Edinburgh.
Summary Of Accommodation
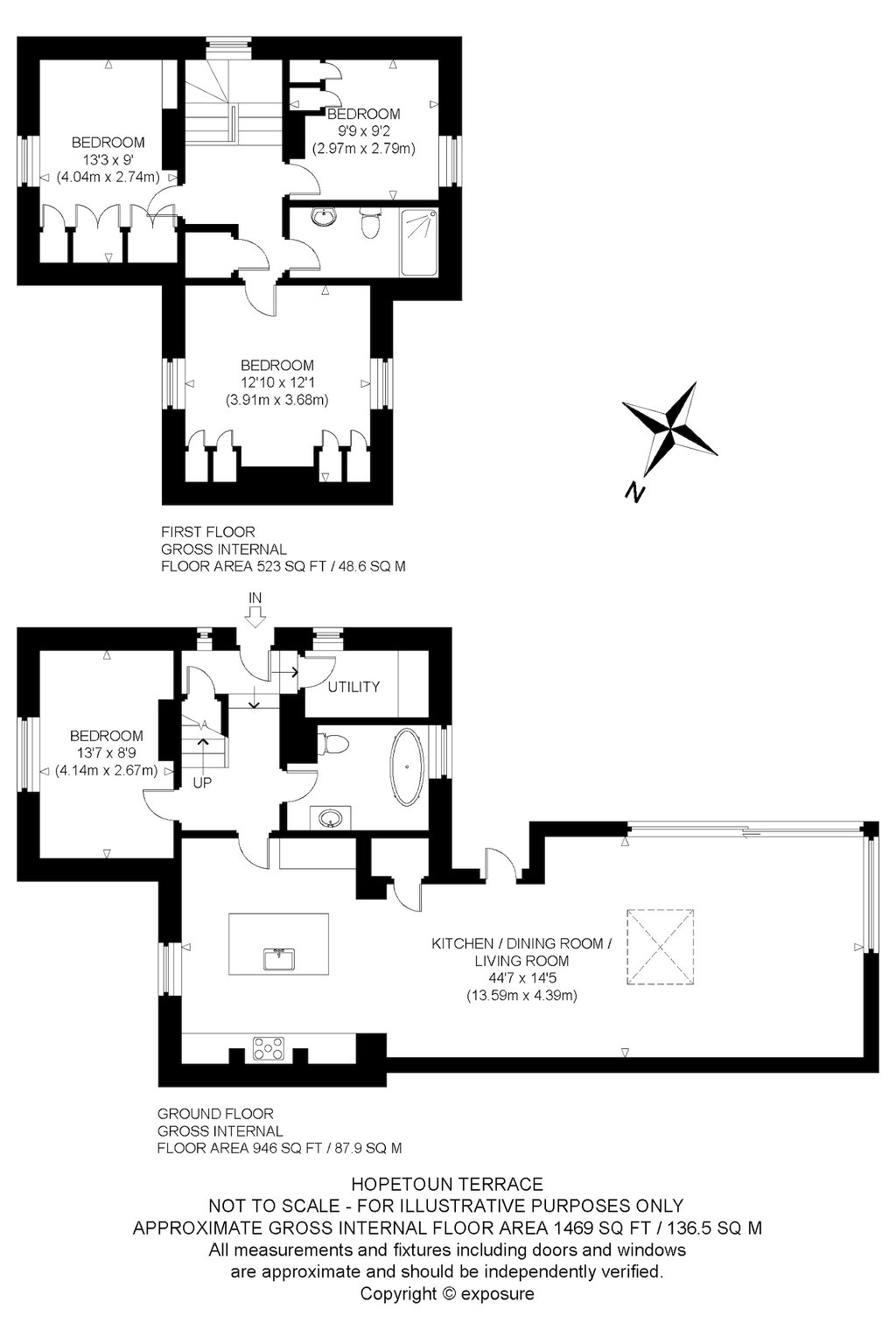
Ground Floor: Entrance Hall, Open Plan Kitchen-Sitting-Dining Room, Snug/Bedroom, Family Bathroom and Utility.
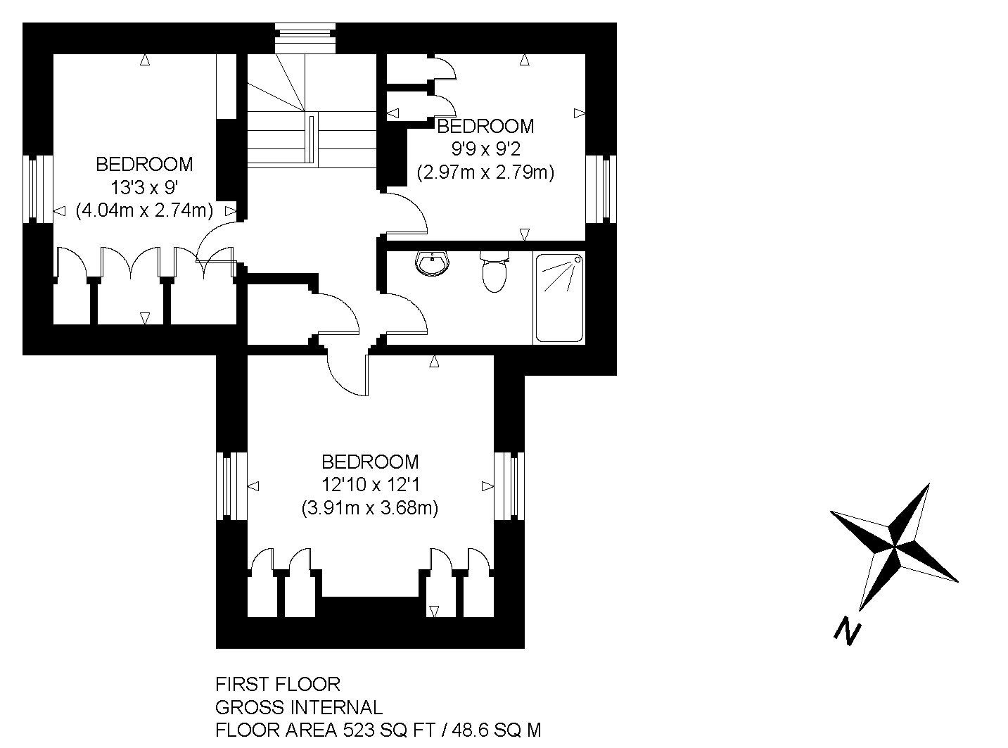
First Floor: Landing, Principal Bedroom, Two Further Double Bedrooms and a Shower Room.
Garden: Front and Rear Garden, both predominantly laid to lawn, with a herbaceous border. The rear garden has a stunning patio, with outdoor kitchen area and open fire.
More Details
EPC Band - D
Council Tax Band - D
Tenure - Freehold
Your home may be repossessed if you do not keep up repayments on your mortgage. There may be a fee for mortgage advice. The actual amount you pay will depend upon your circumstances.
Similar Properties
Looking To Sell Or Let?
Rettie is one of the most trusted and well-respected names in property. Our unrivalled market knowledge helps people from around the world buy, sell, let and develop property in Scotland and the North East of England - from city apartments and rural cottages to large townhouses and prime country homes, farms and estates. We deal with some of the most prestigious properties on the market, but provide the same exceptional standards of service and value for money to all our clients.
