7 Craigengall Farm Crofts, Westfield, Bathgate, West Lothian, EH48 3DZ

Westfield, Bathgate, West Lothian, EH48 3DZ
Pin View on map

Offers Over £1,450,000

House

Detached House

Bed

6 Bedrooms

Bathroom

6 Bathrooms

Reception

6 Reception Rooms

Size

5,763 sq.ft

Plot

About 3 Acres

Tree

Private Garden

Garage

Garage

Telephone

Property Description

A statement home with a spectacular and far-reaching rural outlook, wherein quality interior finishes have been paired with luxury fixtures to afford sumptuous contemporary living accommodation.

Situated amidst undulating West Lothian countryside, 7 Craigengall Farm Crofts forms part of an exclusive development of individual homes which share in an idyllic setting and an enviably accessible position in Central Scotland, within commuting distance of both Edinburgh and Glasgow, and Stirling.

Linlithgow 8 miles (13 km); Stirling 22 miles (35 km); Edinburgh City Centre 28 miles (46 km) and Glasgow City Centre 31 miles (49 km). (All distances are approximate).

Summary Of Accommodation

Ground Floor: Hall, Drawing Room, Sitting Room, Dining Room, Kitchen/Dining/Living Room, Games Room, Home Cinema/Office, Shower Room, and Utility Room with Pantry.

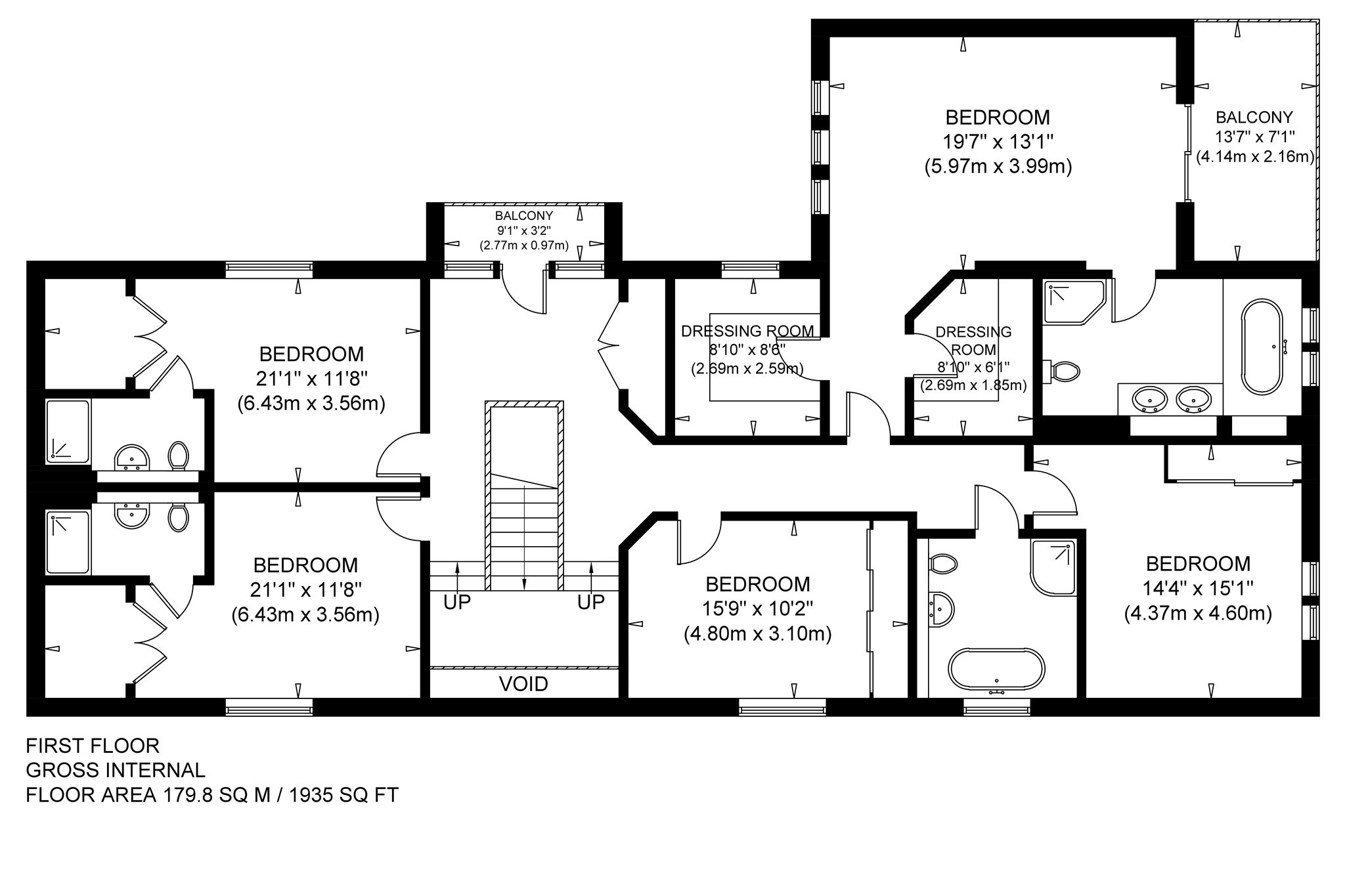
First Floor: Landing with Lounge area and Balcony, Principal Bedroom Suite with two Dressing Rooms, an ensuite Bathroom, and a Roof Terrace, two further Double Bedrooms with en-suite Shower Rooms, Double Bedroom 4 and 5, and Family Bathroom.

Exterior:

Superb, landscaped garden grounds extending to approximately 3 acres, which provide a wonderful setting for the house and are governed by the far-reaching outlook to the South and East across the neighbouring countryside.

Triple Garage with two electric up-and-over doors.

Self-contained, first floor Annex/Apartment providing flexible ancillary living accommodation and lending the property to multigenerational living, complete with: Living Room and open-plan Kitchen, Double Bedroom, and Shower Room.

Garden Features:

Spacious lawn garden ideal for all manner of garden sports.

Stylish composite decking margining southerly elevation of the house, providing a series of terraces, allowing for
indulgence in the sun at different times of the day.

Logspan 17 m. sq. BBQ Hut with decked terrrace and contemporary fire pit.

Semi-circular stone finished seating area with westerly aspect.

Children’s play area which is finished with astroturf and has a substantial playframe set and a sunken trampoline.

More Details

EPC - C
Council Tax Band - H
Tenure - Freehold

Request More Details

Alastair Houlden MRICS

Alastair Houlden MRICS

Director of Country House Sales
Joanna Tinson

Joanna Tinson

Senior Sales Negotiator
Paul Banyard Cert CII (MP)

Paul Banyard Cert CII (MP)

Mortgage & Protection Advisor
Mortgage Calculator
Monthly payments
Please set an interest rate.

Your home may be repossessed if you do not keep up repayments on your mortgage. There may be a fee for mortgage advice. The actual amount you pay will depend upon your circumstances.

Tax Calculator
LBTT calculator for properties purchased in Scotland. Stamp Duty calculator for properties purchased in England.
Land & buildings transaction tax (LBTT)
= £0
New build house with stone and timber cladding

Looking To Sell Or Let?

Rettie is one of the most trusted and well-respected names in property. Our unrivalled market knowledge helps people from around the world buy, sell, let and develop property in Scotland and the North East of England - from city apartments and rural cottages to large townhouses and prime country homes, farms and estates. We deal with some of the most prestigious properties on the market, but provide the same exceptional standards of service and value for money to all our clients.