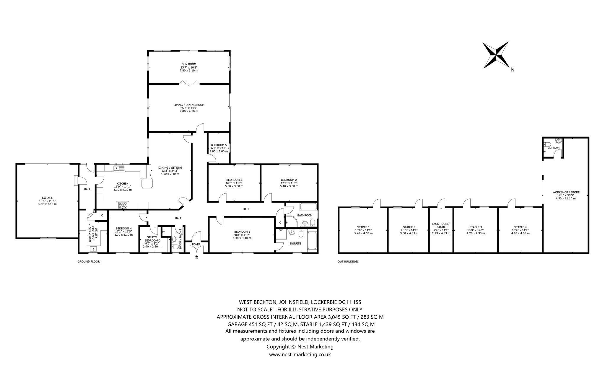
West Beckton, Lockerbie, Dumfries and Galloway, DG11 1SS
Property Description
A delightful and spacious 6 Bedroom Bungalow with equestrian facilities and approved planning permissions in the picturesque rural setting of Johnsfield near Lockerbie with convenient access to the M74 motorway.
Summary Of Lotting
Available for sale as a whole or in Lots.
AS A WHOLE: LOTS 1, 2 & 3 – West Beckton – About 1.52 Acres (0.62 Hectares).
6 Bedroom Bungalow with Equestrian Facilities and Approved Planning Permissions
LOT 1 – West Beckton House – About 0.52 Acres.
Ground Floor: Entrance Hall, Kitchen/Dining/Sitting Room, Dining/Living Room, Sun Room, Principal Bedroom with En-Suite Bathroom, 4 further Double Bedrooms, Bedroom 6/Study, Family Bathroom, Shower Room and Utility Room.
Large Double Garage, Private Driveway Parking and Garden.
LOT 2 – West Beckton Stables with mains water and electricity – About 0.46 Acres.
Currently used as Stables with a Large Workshop and Store with Paddock. Planning permission for a 3 bedroom house.
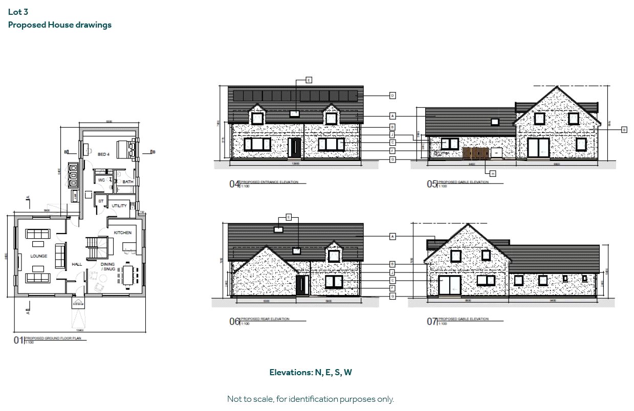
LOT 3 – West Beckton Plot – About 0.54 Acres.
Currently used as a Paddock. Planning permission for a 4 bedroom house.
More Details
EPC - Band D
Council Tax - Band G
Tenure - Freehold
Your home may be repossessed if you do not keep up repayments on your mortgage. There may be a fee for mortgage advice. The actual amount you pay will depend upon your circumstances.
Similar Properties
Looking To Sell Or Let?
Rettie is one of the most trusted and well-respected names in property. Our unrivalled market knowledge helps people from around the world buy, sell, let and develop property in Scotland and the North East of England - from city apartments and rural cottages to large townhouses and prime country homes, farms and estates. We deal with some of the most prestigious properties on the market, but provide the same exceptional standards of service and value for money to all our clients.
