2 Medwyn Court, West Linton, Scottish Borders, EH46 7JQ

West Linton, Scottish Borders, EH46 7JQ
Pin View on map

Offers Over £975,000

House

Detached House

Bed

5 Bedrooms

Bathroom

4 Bathrooms

Reception

3 Reception Rooms

Size

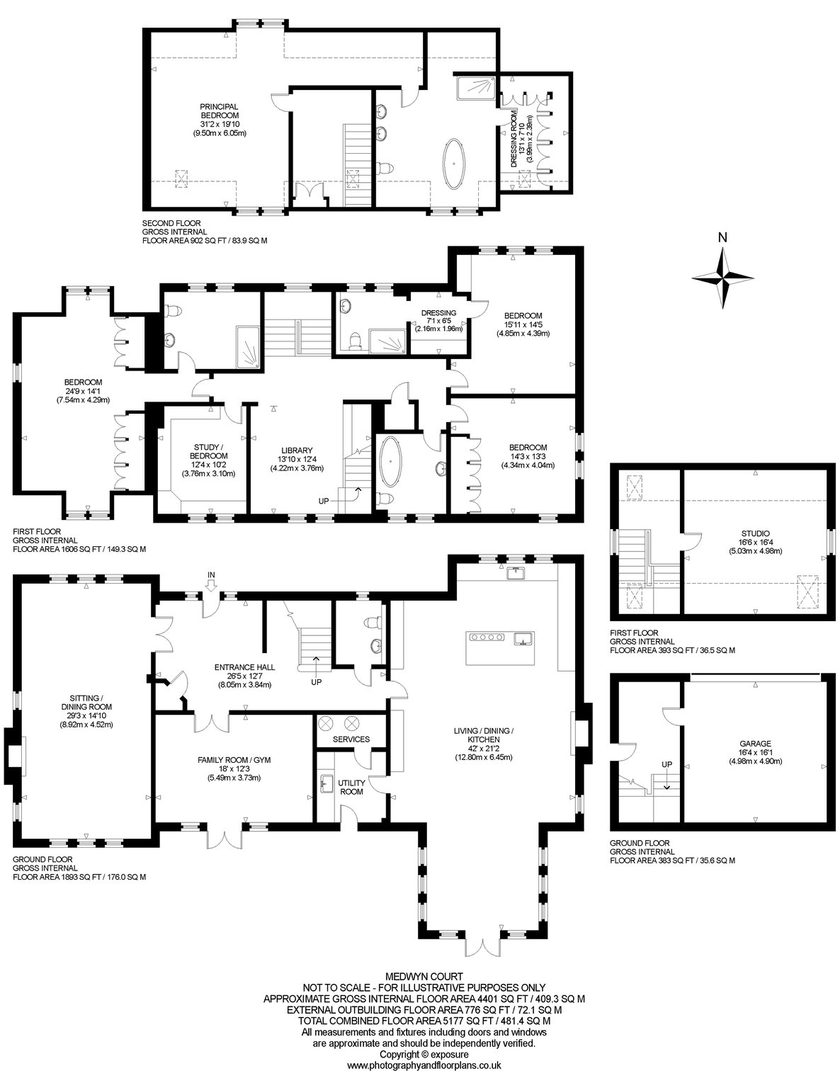
4,401 sq.ft

Plot

About 0.30 Acres

Tree

Private Garden

Garage

Garage

Telephone

Property Description

An impressive, contemporary 5 bedroom country house, measuring 4,401 sq ft, situated in the delightful and highly sought-after rural conservation village of West Linton and within easy access to Edinburgh and the city bypass.

Summary of Accommodation

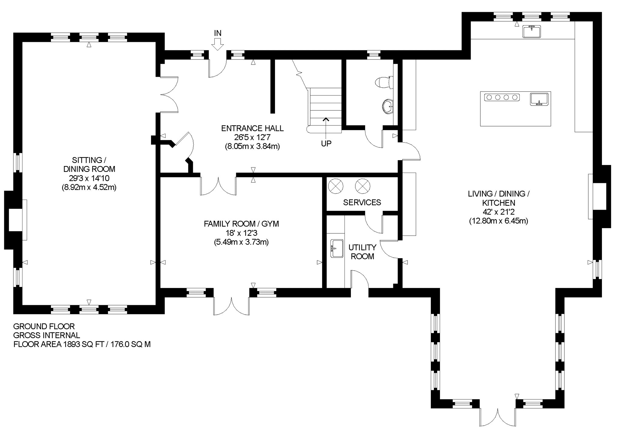
Ground Floor: Entrance Hall, Living Dining Kitchen Room, Utility and Services Room, Sitting Dining Room, Family Room/Gym and WC.

First Floor: Landing/Library, Two Double Bedrooms with En-Suite Shower Rooms, Dressing room, Double Bedroom/Study and Family Bathroom.

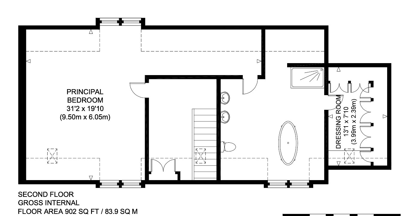
Second Floor: Principal Bedroom, En-Suite Bathroom, Dressing Room and Storage Cupboard.

Outbuilding: Garage with Studio Loft space.

Garden: Garden mainly laid to lawn with private, mature woodland to the rear, a large rear patio and timber hexagonal BBQ hut.

4,401 Sq Ft of internal floorspace (excluding garage).

About 0.3 Acres.

More Details

Council Tax Band: H
EPC Band: D
Tenure: Freehold

Request More Details

Paul Banyard Cert CII (MP)

Paul Banyard Cert CII (MP)

Mortgage & Protection Advisor
Mortgage Calculator
Monthly payments
Please set an interest rate.

Your home may be repossessed if you do not keep up repayments on your mortgage. There may be a fee for mortgage advice. The actual amount you pay will depend upon your circumstances.

Tax Calculator
LBTT calculator for properties purchased in Scotland. Stamp Duty calculator for properties purchased in England.
Land & buildings transaction tax (LBTT)
= £0
New build house with stone and timber cladding

Looking To Sell Or Let?

Rettie is one of the most trusted and well-respected names in property. Our unrivalled market knowledge helps people from around the world buy, sell, let and develop property in Scotland and the North East of England - from city apartments and rural cottages to large townhouses and prime country homes, farms and estates. We deal with some of the most prestigious properties on the market, but provide the same exceptional standards of service and value for money to all our clients.