20 Craigielaw Park, Aberlady, Longniddry, East Lothian, EH32 0PR

Aberlady, Longniddry, East Lothian, EH32 0PR
Sold
Pin View on map

Offers Over £1,250,000

House

Detached House

Bed

5 Bedrooms

Bathroom

3 Bathrooms

Reception

5 Reception Rooms

Size

3,223 sq.ft

Tree

Private Garden

Garage

Double Garage

Telephone

Property Description

A superb 5-bedroom family home within an exclusive gated community near to the picturesque village of Aberlady, occupying an enviable position overlooking Craigielaw Golf Course, with incredible sea views across the Firth of Forth and within commuting distance to the City of Edinburgh.

Accommodation

Ground Floor: Entrance Hall, Drawing Room, Sitting Room/Dining Room, Kitchen-Breakfast Room, Family Room, Study, Utility Room and a Cloakroom.

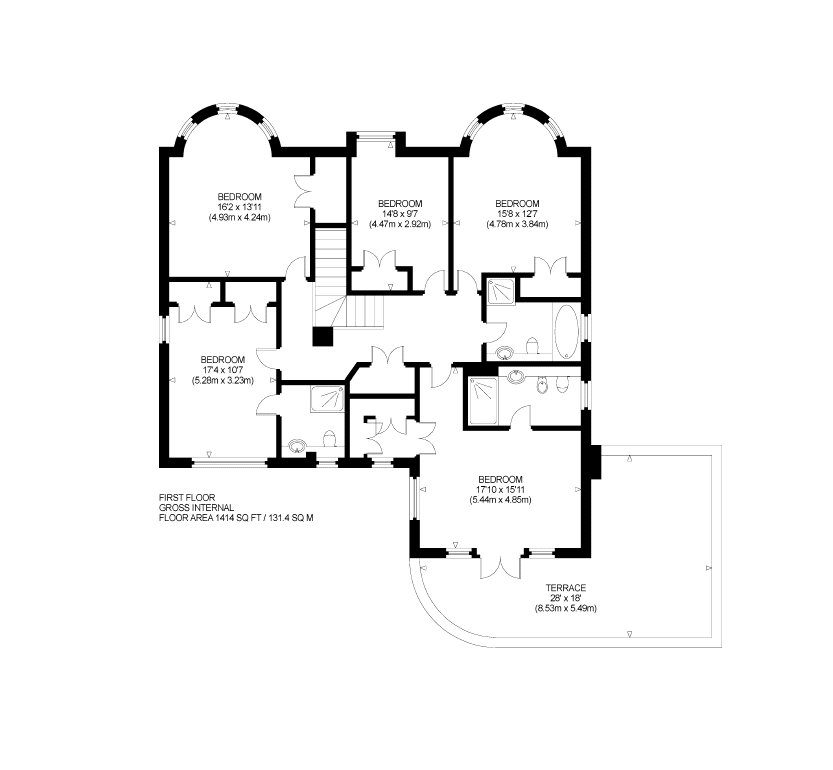
First Floor: Landing, Principal Bedroom with En-Suite Shower Room, Dressing Room and Wrap-Around Balcony, Double Bedroom with En-Suite Shower Room, Three further Double Bedrooms and a Family Bathroom.

Outbuildings: Detached Triple Garage with Studio above.

Garden: Well-manicured lawns surround the property, with mature trees and hedgerows alongside various terraces, a hot tub, an outdoor ‘gardener’s WC and a private driveway with parking area.

More Details

Council Tax: Band H
EPC: Band C
Tenure: Freehold

Contact Us

Charlotte Canby

Charlotte Canby

Senior Sales Negotiator
Andrew Smith MRICS

Andrew Smith MRICS

Director of Country House Sales
Paul Banyard Cert CII (MP)

Paul Banyard Cert CII (MP)

Mortgage & Protection Advisor
Mortgage Calculator
Monthly payments
Please set an interest rate.

Your home may be repossessed if you do not keep up repayments on your mortgage. There may be a fee for mortgage advice. The actual amount you pay will depend upon your circumstances.

Tax Calculator
LBTT calculator for properties purchased in Scotland. Stamp Duty calculator for properties purchased in England.
Land & buildings transaction tax (LBTT)
= £0
New build house with stone and timber cladding

Looking To Sell Or Let?

Rettie is one of the most trusted and well-respected names in property. Our unrivalled market knowledge helps people from around the world buy, sell, let and develop property in Scotland and the North East of England - from city apartments and rural cottages to large townhouses and prime country homes, farms and estates. We deal with some of the most prestigious properties on the market, but provide the same exceptional standards of service and value for money to all our clients.