Property Description
A recently renovated semi-detached 3-bedroom house, with a generous rear garden, within close proximity of Loanhead’s amenities and within commuting distance of Edinburgh.
Summary Of Accommodation
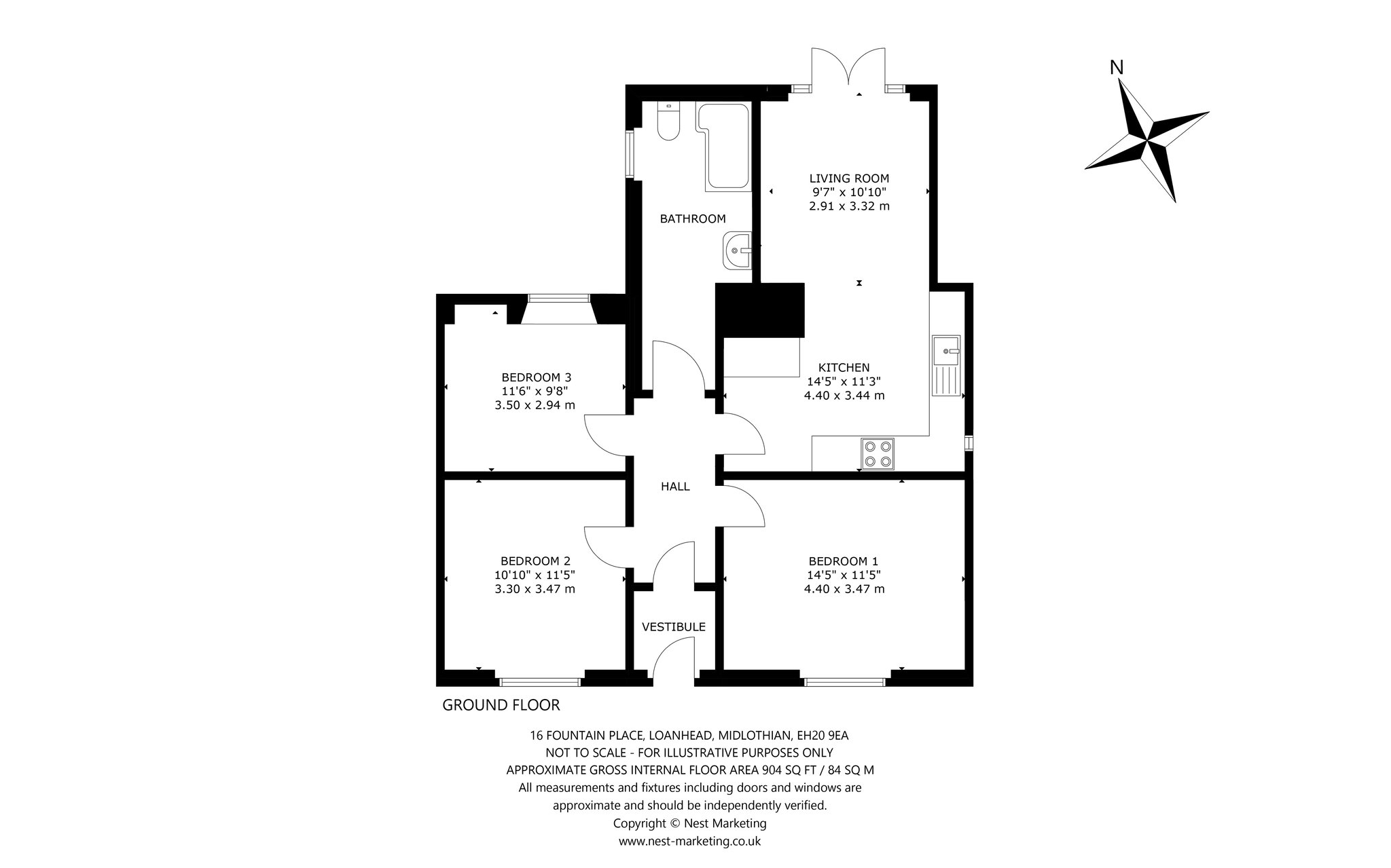
Ground Floor: Entrance Hall, Open Plan Kitchen-Dining-Sitting Room, Three Double Bedrooms and a Bathroom.
Garden: A generous rear garden with extensive patio, which is predominantly laid to lawn and planted with mature specimen trees.
About: 0.12 Acres
More Details
EPC Band - Band C
Council Tax Band - Band B
Tenure - Freehold
Your home may be repossessed if you do not keep up repayments on your mortgage.
There may be a fee for mortgage advice. The actual amount you pay will depend upon your circumstances. The fee is up to 1% but a typical fee is 0.3% of the amount borrowed.
Similar Properties
Looking To Sell Or Let?
Rettie is one of the most trusted and well-respected names in property. Our unrivalled market knowledge helps people from around the world buy, sell, let and develop property in Scotland and the North East of England - from city apartments and rural cottages to large townhouses and prime country homes, farms and estates. We deal with some of the most prestigious properties on the market, but provide the same exceptional standards of service and value for money to all our clients.
