Glen Maree, Main Street, Gullane, East Lothian, EH31 2DA

Gullane, East Lothian, EH31 2DA
Sold
Pin View on map

Offers Over £845,000

House

Semi Detached House

Bed

4 Bedrooms

Bathroom

3 Bathrooms

Reception

2 Reception Rooms

Size

2,426 sq.ft

Tree

Private Garden

Parking

Off Street Parking

Telephone

Property Description

A fabulous newly built 4-bedroom contemporary home designed for modern living, with off-street parking, a short walk to the centre of the village

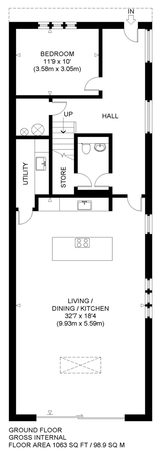
Ground Floor:
Entrance Hall, Open Plan Kitchen-Living-Dining Room, Office/Snug/Bedroom, WC and Utility Room.

First Floor

Landing, Principal Bedroom with terrace and ensuite Shower Room, Sitting Room/Double Bedrooms and a Bathroom.

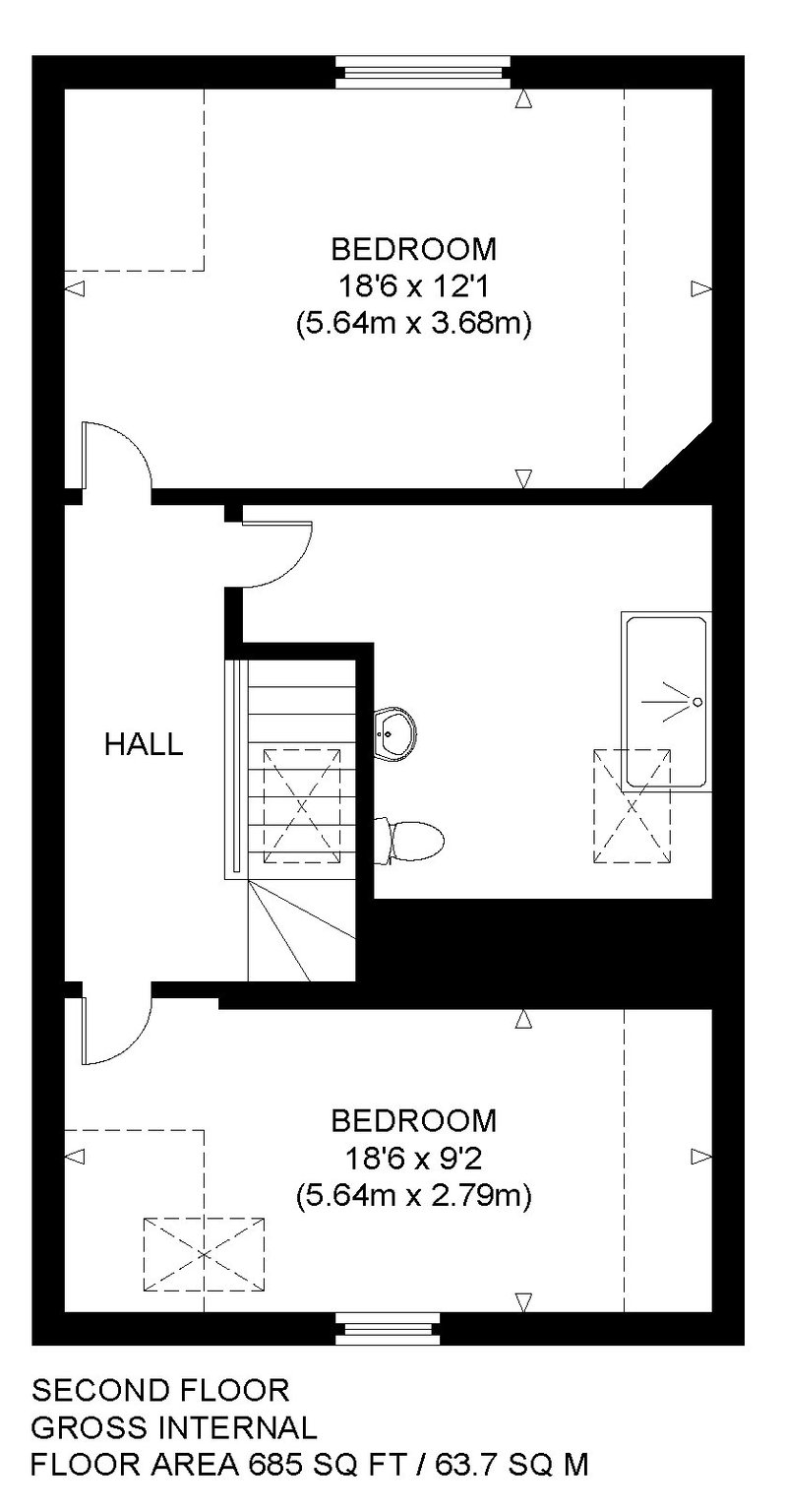
Second Floor: Landing, Two Bedrooms and a luxury Bathroom

Garden: Front and Rear Gardens.

Parking: Private offroad parking.

More Details

EPC - B
Counci Tax - Yet to be assessed.
Tenure - Freehold

Contact Us

Andrew Smith MRICS

Andrew Smith MRICS

Director of Country House Sales
Paul Banyard Cert CII (MP)

Paul Banyard Cert CII (MP)

Mortgage & Protection Advisor
Mortgage Calculator
Monthly payments
Please set an interest rate.

Your home may be repossessed if you do not keep up repayments on your mortgage. There may be a fee for mortgage advice. The actual amount you pay will depend upon your circumstances.

Tax Calculator
LBTT calculator for properties purchased in Scotland. Stamp Duty calculator for properties purchased in England.
Land & buildings transaction tax (LBTT)
= £0
New build house with stone and timber cladding

Looking To Sell Or Let?

Rettie is one of the most trusted and well-respected names in property. Our unrivalled market knowledge helps people from around the world buy, sell, let and develop property in Scotland and the North East of England - from city apartments and rural cottages to large townhouses and prime country homes, farms and estates. We deal with some of the most prestigious properties on the market, but provide the same exceptional standards of service and value for money to all our clients.