The Coach House & Garden, 19 Inveresk Village, Musselburgh, East Lothian, EH21 7TD

19 Inveresk Village, Musselburgh, East Lothian, EH21 7TD
Pin View on map

Offers Over £400,000

House

Detached House

Plot

About 0.39 Acres

Tree

Private Garden

Parking

Off Street Parking

Telephone

Property Description

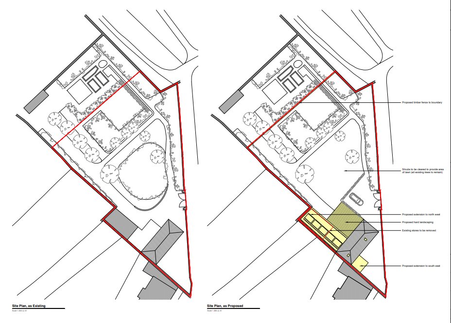
The Coach House & Garden – About 0.39 Acres.

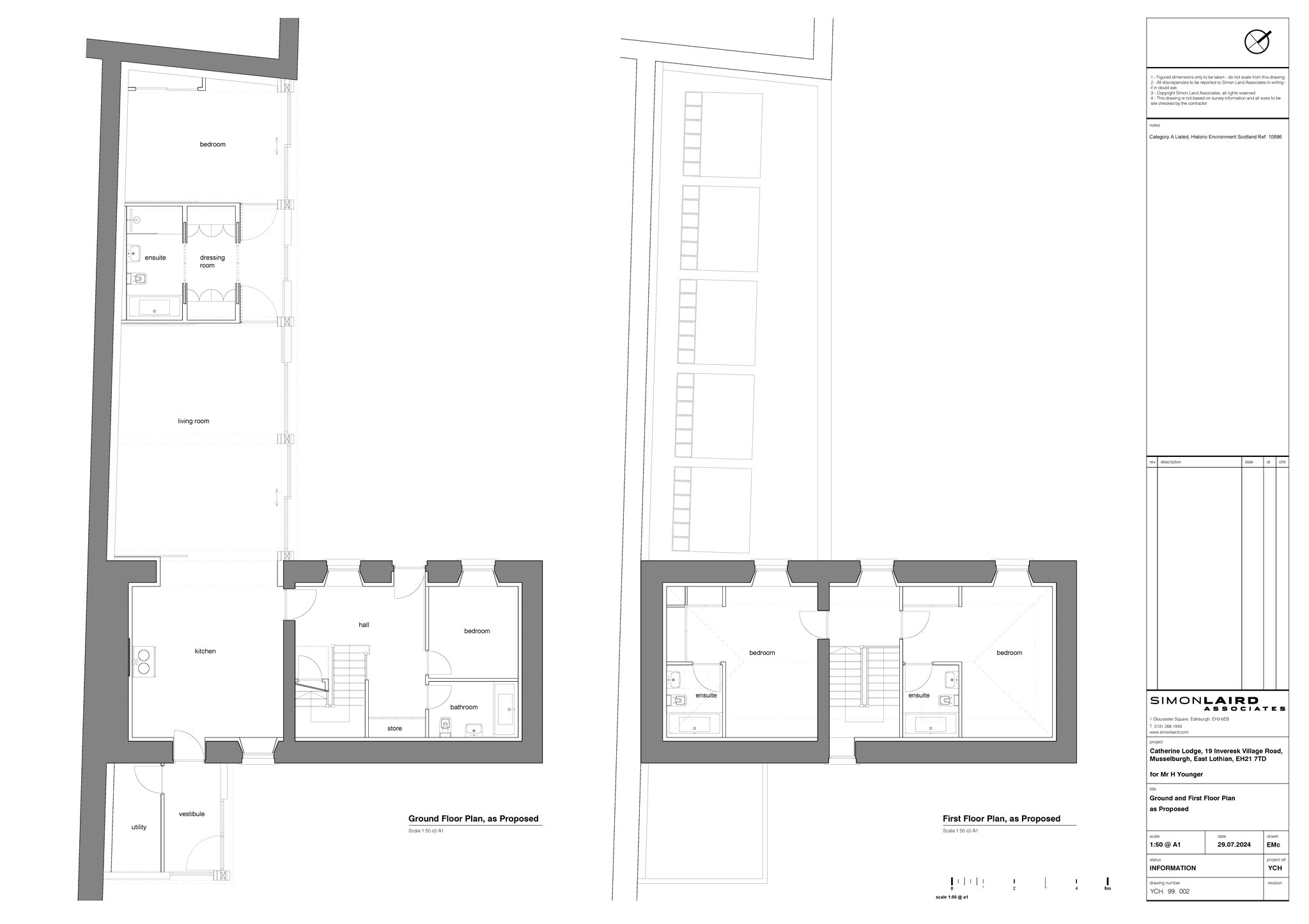
A traditional A-listed stone Coach House and former stables. Planning permission (24/01040/P) has been granted to convert and extend the property to create a fantastic spacious contemporary home set within 0.39 acres of mature gardens.

Plans have been drawn up by Simon Laird Associates to convert the existing stone and slate building into a spacious 4 Bedroom, 4 Bathroom home by adding a flat roofed timber clad and glass extension overlooking the garden.

About: 0.39 Acres

Tenure - Freehold

More Details

Situation: Private Garden
Council Tax Band: Contact branch
Tenure: Freehold

Request More Details

Andrew Smith MRICS

Andrew Smith MRICS

Director of Country House Sales
Paul Banyard Cert CII (MP)

Paul Banyard Cert CII (MP)

Mortgage & Protection Advisor
Mortgage Calculator
Monthly payments
Please set an interest rate.

Your home may be repossessed if you do not keep up repayments on your mortgage. There may be a fee for mortgage advice. The actual amount you pay will depend upon your circumstances.

Tax Calculator
LBTT calculator for properties purchased in Scotland. Stamp Duty calculator for properties purchased in England.
Land & buildings transaction tax (LBTT)
= £0
New build house with stone and timber cladding

Looking To Sell Or Let?

Rettie is one of the most trusted and well-respected names in property. Our unrivalled market knowledge helps people from around the world buy, sell, let and develop property in Scotland and the North East of England - from city apartments and rural cottages to large townhouses and prime country homes, farms and estates. We deal with some of the most prestigious properties on the market, but provide the same exceptional standards of service and value for money to all our clients.