7 Villa Road, South Queensferry, EH30 9RF

South Queensferry, EH30 9RF
Sold
Pin View on map

Offers Over £525,000

House

Duplex Apartment

Bed

4 Bedrooms

Bathroom

2 Bathrooms

Reception

2 Reception Rooms

Tree

Private Garden

Parking

Off Street Parking

Telephone

Property Description

A meticulously presented upper villa, occupying a sought-after position within the popular town of South Queensferry, which offers stylish and sophisticated contemporary living accommodation, set apart by wonderful views over the Firth of Forth and its three iconic bridges.

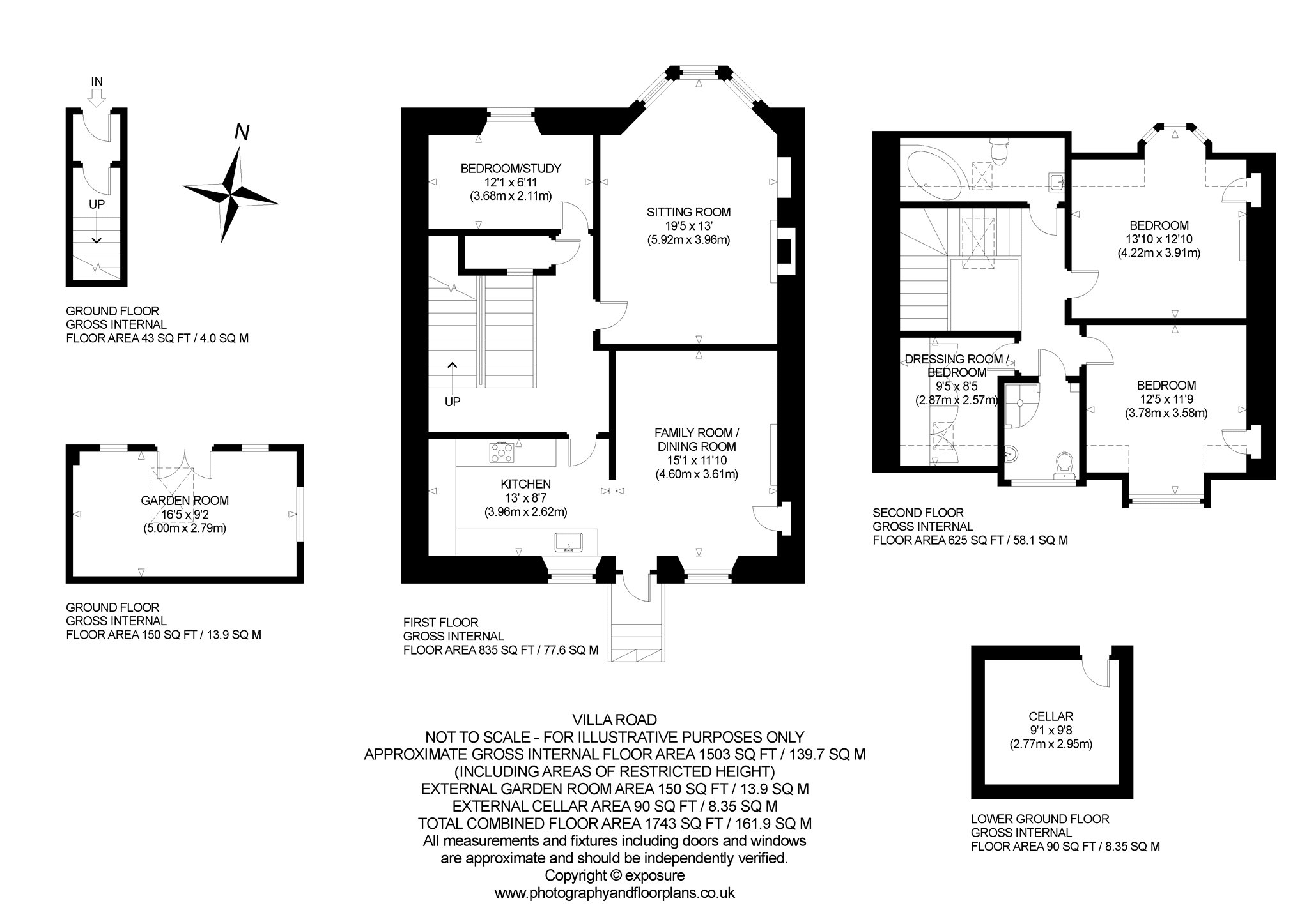
Ground Floor
Private main door access.
Entrance vestibule leading to staircase to first floor.

First Floor
Hall, Sitting Room, open-plan Dining/Living Room and Kitchen (with garden access via external stairs),
and Bedroom 3/Home Office.

Second Floor
Landing, Principal Bedroom, Double Bedroom, Dressing Room/Single Bedroom 4, Shower Room, and Bathroom.

Exterior
Private rear garden thoughtfully designed for alfresco living, with sandstone patio, an elevated decked terrace, vibrant borders and raised beds, and a drying courtyard with a cellar/outhouse.

Detached Music Room/Studio.

Attractive front garden featuring neat flower beds, well-stocked for variety and colour. Wall-mounted Ohme EV Charger.

More Details

Tenure: Freehold
Council Tax Band: E
EPC Rating: D

Contact Us

Joanna Tinson

Joanna Tinson

Senior Sales Negotiator
Paul Banyard Cert CII (MP)

Paul Banyard Cert CII (MP)

Mortgage & Protection Advisor
Mortgage Calculator
Monthly payments
Please set an interest rate.

Your home may be repossessed if you do not keep up repayments on your mortgage. There may be a fee for mortgage advice. The actual amount you pay will depend upon your circumstances.

Tax Calculator
LBTT calculator for properties purchased in Scotland. Stamp Duty calculator for properties purchased in England.
Land & buildings transaction tax (LBTT)
= £0
New build house with stone and timber cladding

Looking To Sell Or Let?

Rettie is one of the most trusted and well-respected names in property. Our unrivalled market knowledge helps people from around the world buy, sell, let and develop property in Scotland and the North East of England - from city apartments and rural cottages to large townhouses and prime country homes, farms and estates. We deal with some of the most prestigious properties on the market, but provide the same exceptional standards of service and value for money to all our clients.