Dove Cottage, 3 Garvald Grange Cottages, Garvald, East Lothian, EH41 4LL

3 Garvald Grange Cottages, Garvald, East Lothian, EH41 4LL
Sold
Pin View on map

Offers Over £210,000

House

Semi Detached House

Bed

3 Bedrooms

Bathroom

1 Bathroom

Reception

1 Reception Room

Size

1,064 sq.ft

Tree

Private Garden

Garage

Garage

Telephone

Property Description

*closing Date Set For Friday 5th September At 12pm*

A charming semi-detached 3-bedroom cottage, with beautiful garden, situated in tranquil East Lothian countryside, within close proximity to Garvald conservation village and commuting distance to Edinburgh.

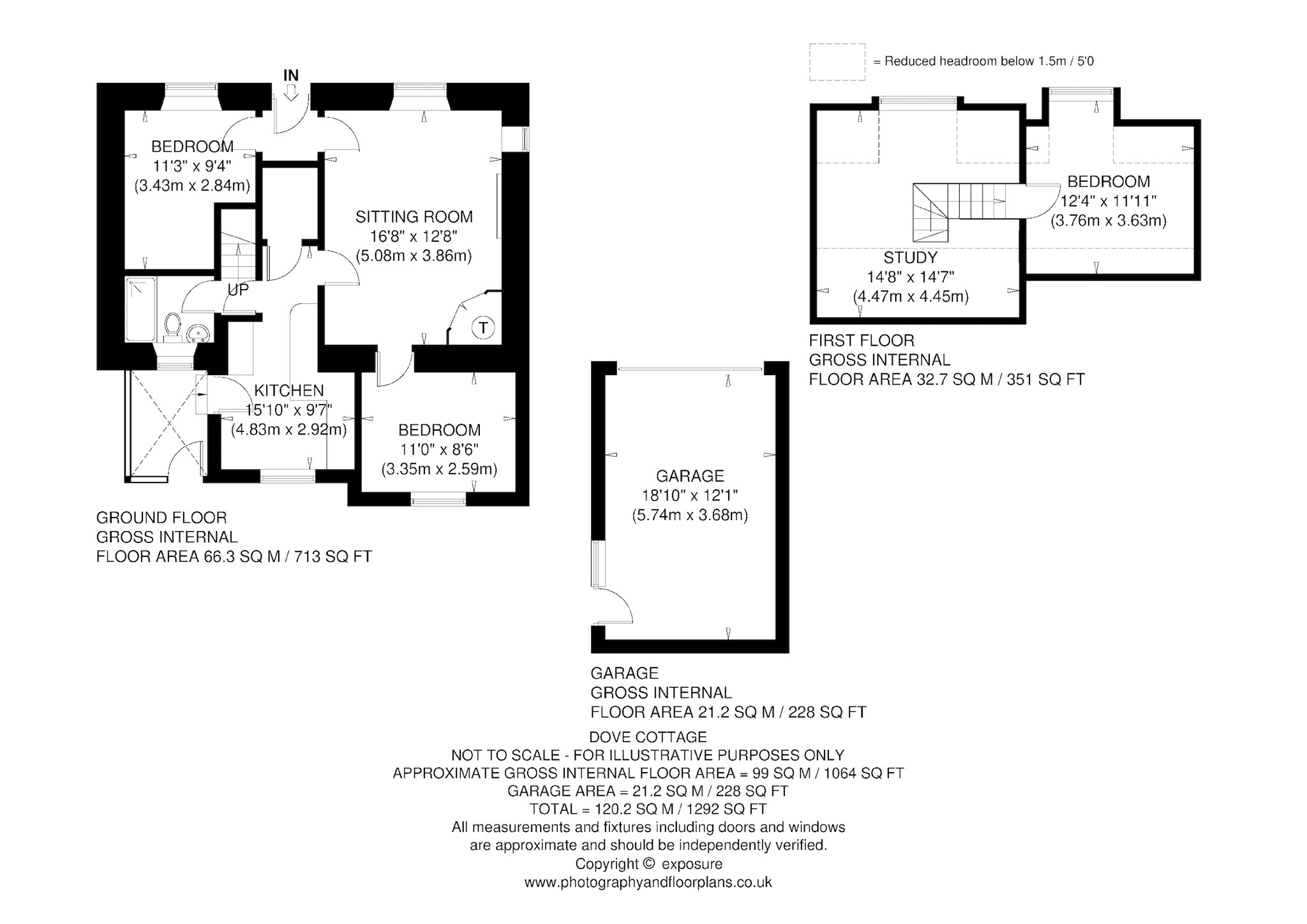
Summary Of Accommodation

Ground Floor: Entrance Hall, Sitting Room, Kitchen, Two Double Bedrooms, Porch/Boot Room and Shower Room.

First Floor: Galleried Room and Double Bedroom.

Garage: Single Garage, with electricity.

Garden: There is a beautiful front garden, which is predominantly laid to lawn with a colourful herbaceous border, boxed hedging and a paved patio area perfect for alfresco dining. To the rear of the property there is a gravelled area.

About: 0.13 Acres

More Details

EPC Band - Band F
Council Tax Band - D
Tenure - Freehold

Contact Us

Paul Banyard Cert CII (MP)

Paul Banyard Cert CII (MP)

Mortgage & Protection Advisor
Mortgage Calculator
Monthly payments
Please set an interest rate.

Your home may be repossessed if you do not keep up repayments on your mortgage. There may be a fee for mortgage advice. The actual amount you pay will depend upon your circumstances.

Tax Calculator
LBTT calculator for properties purchased in Scotland. Stamp Duty calculator for properties purchased in England.
Land & buildings transaction tax (LBTT)
= £0
New build house with stone and timber cladding

Looking To Sell Or Let?

Rettie is one of the most trusted and well-respected names in property. Our unrivalled market knowledge helps people from around the world buy, sell, let and develop property in Scotland and the North East of England - from city apartments and rural cottages to large townhouses and prime country homes, farms and estates. We deal with some of the most prestigious properties on the market, but provide the same exceptional standards of service and value for money to all our clients.