Gospatric House, Dalmeny, South Queensferry, Midlothian, EH30 9TT

South Queensferry, Midlothian, EH30 9TT
New
Pin View on map

Offers Over £2,150,000

House

Detached House

Bed

8 Bedrooms

Bathroom

3 Bathrooms

Reception

5 Reception Rooms

Plot

About 1.20 Acres

Tree

Private Garden

Garage

Garage

Telephone

Property Description

A beautiful 8-bedroom country house only a short distance to Edinburgh city centre, with landscaped gardens, spacious interiors and a stunning contemporary kitchen extension.

Gospatric House is a fantastic family home in the pretty conservation village of Dalmeny and was originally the Manse to the adjacent St Cuthbert’s Church. More commonly referred to as ‘Dalmeny Kirk’, the church was built in the 12th century and is one of the oldest and most complete examples of a Norman church in Scotland. The original house however, dates from the early to mid-19th century and was substantially extended in 1870 by the prominent Edinburgh architect James Maitland Wardrop. Further extensions and upgrades have taken place in more recent years that have now created the ultimate family home - boasting character, charm, space and light, and all within close proximity to Edinburgh – a property that does not come to market very often!

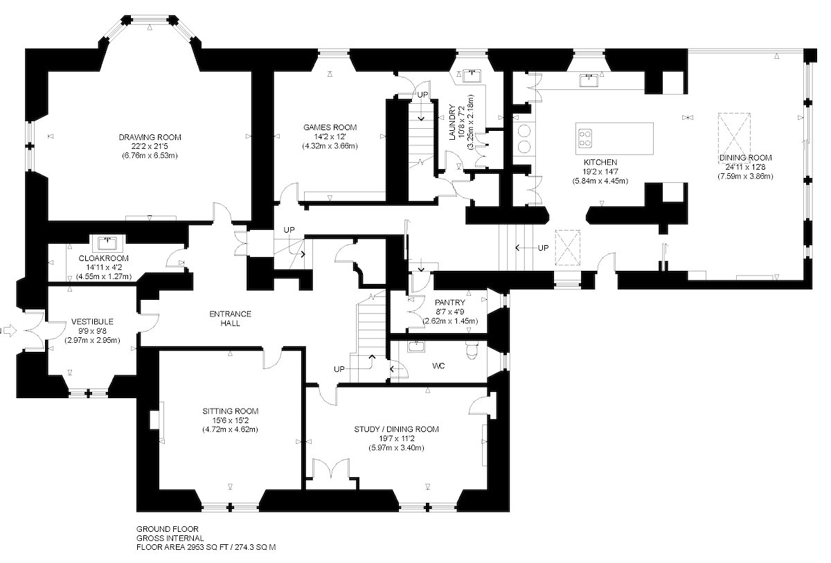
Internally, the spacious accommodation is set over three floors and has been beautifully decorated. The well-appointed rooms showcase a wealth of period features to include fantastic sash and case bay windows with working shutters, intricate cornicing, ceiling roses and open fireplaces with traditional fire surrounds. The stylish contemporary kitchen extension created in 2019, has been sympathetically designed to blend seamlessly with the existing building – now creating a wonderful family space that undoubtedly formulates the heart of the home.

The lush, manicured gardens at Gospatric provide an established setting in keeping with the grandeur offered by the house itself. Principally enclosed by stone walls that are lined by tall, mature trees and shrubs, the garden feels incredibly secluded and private.

A garage lies adjacent to the drive benefitting from an electric door as well as an electric car charging port.

Accommodation:

Ground Floor: Entrance Vestibule, Reception Hall, Drawing Room, Sitting Room, Study/Dining Room, Cloakroom, WC, Inner Hall, Games Room/Snug, Open Plan Kitchen/Dining/Living Room, Pantry and Utility Room

First Floor: Landing, Principal Bedroom with Luxurious Ensuite Bathroom, Four Further Double Bedrooms, Family Bathroom and a Shower Room

Second Floor: Landing, Three Double Bedrooms and a Raised Attic Playroom

Outbuildings: Garage with electric door, timber woodshed and an outhouse with the oil tank

Garden: Mature, landscaped gardens surround the property, including a former grass tennis court and three patio terraces with views overlooking neighbouring farmland

About: 1.2 acres

More Details

Tenure: Freehold
Council Tax: Band H
EPC: Band F

Request More Details

Charlotte Canby

Charlotte Canby

Senior Sales Negotiator
Paul Banyard Cert CII (MP)

Paul Banyard Cert CII (MP)

Mortgage & Protection Advisor
Mortgage Calculator
Monthly payments
Please set an interest rate.

Your home may be repossessed if you do not keep up repayments on your mortgage.

There may be a fee for mortgage advice. The actual amount you pay will depend upon your circumstances. The fee is up to 1% but a typical fee is 0.3% of the amount borrowed.

Tax Calculator
LBTT calculator for properties purchased in Scotland. Stamp Duty calculator for properties purchased in England.
Land & buildings transaction tax (LBTT)
= £0
New build house with stone and timber cladding

Looking To Sell Or Let?

Rettie is one of the most trusted and well-respected names in property. Our unrivalled market knowledge helps people from around the world buy, sell, let and develop property in Scotland and the North East of England - from city apartments and rural cottages to large townhouses and prime country homes, farms and estates. We deal with some of the most prestigious properties on the market, but provide the same exceptional standards of service and value for money to all our clients.