Property Description
A stunning blonde sandstone, mid-terraced home situated in this incredibly convenient pocket of Newlands.
Having undergone extensive improvements under the current owner, this gorgeous family home is a must for viewing in order to be appreciated. The house is approached via pathway, flanked by pristine front garden, leading to the front double storm doors and entrance vestibule.
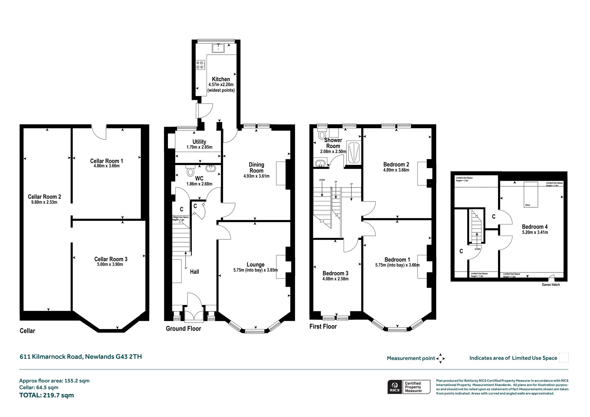
The accommodation of the house itself comprises welcoming reception hallway with refurbished floorboards, gorgeous lounge with feature fireplace, refurbished floorboards and cornicing, delightful dining room with refurbished floorboards that could be utilised flexibly, stunning kitchen with a range of integrated appliances, base mounted units and shelving, tiled splashback and quality stone worktop and matching utility room off. The ground floor accommodation is completed by a W.C. with two piece suite and vanity unit with understairs cupboard off. The first-floor accommodation comprises a grand bay-windowed principal bedroom featuring a charming fireplace and detailed cornicing, a second generous double bedroom with its own feature fireplace, and a well-proportioned third bedroom to the front offering additional flexible living space. This floor is served by a stunning tiled shower room with a contemporary two-piece suite, stylish vanity unit, matching towel rail, and a separate walk-in shower with a glass enclosure. The top level has a spacious attic room that is currently being utilised as a bedroom with generous additional storage off.
The property also benefits from gas central heating, high quality floor coverings and an attractive, traditionally empathetic decor throughout. There is also a fantastic cellar storage area. Externally there is the aforementioned front garden, along with a lovely rear garden with separate patio, lawn and private parking space that is currently utilised as a sitting area.
Newlands is a beautiful suburb situated in the south of Glasgow. It is one of the most popular suburban areas to be found anywhere in Scotland. This is down to its quiet ambience, popular park, and range of nearby amenities in Giffnock, Shawlands and Pollokshields. There are also excellent transport links nearby via bus road and rail to the centre of Glasgow and elsewhere. Langside, Muirend and Pollokshaws East Train Stations which provides regular services to and from Glasgow Central is a short walk away.
More Details
Situation: Private Garden
Council Tax Band: F
Tenure: Freehold
Your home may be repossessed if you do not keep up repayments on your mortgage. There may be a fee for mortgage advice. The actual amount you pay will depend upon your circumstances.
Similar Properties
Looking To Sell Or Let?
Rettie is one of the most trusted and well-respected names in property. Our unrivalled market knowledge helps people from around the world buy, sell, let and develop property in Scotland and the North East of England - from city apartments and rural cottages to large townhouses and prime country homes, farms and estates. We deal with some of the most prestigious properties on the market, but provide the same exceptional standards of service and value for money to all our clients.
