1/2, 31 Nursery Street, Strathbungo, Glasgow, G41 2PL
Property Description
A fabulous refurbished first floor, two bedroom flat forming part of this attractive modern development.
The building is accessed via secure door entry system into a well-kept communal hallway and stairwell.
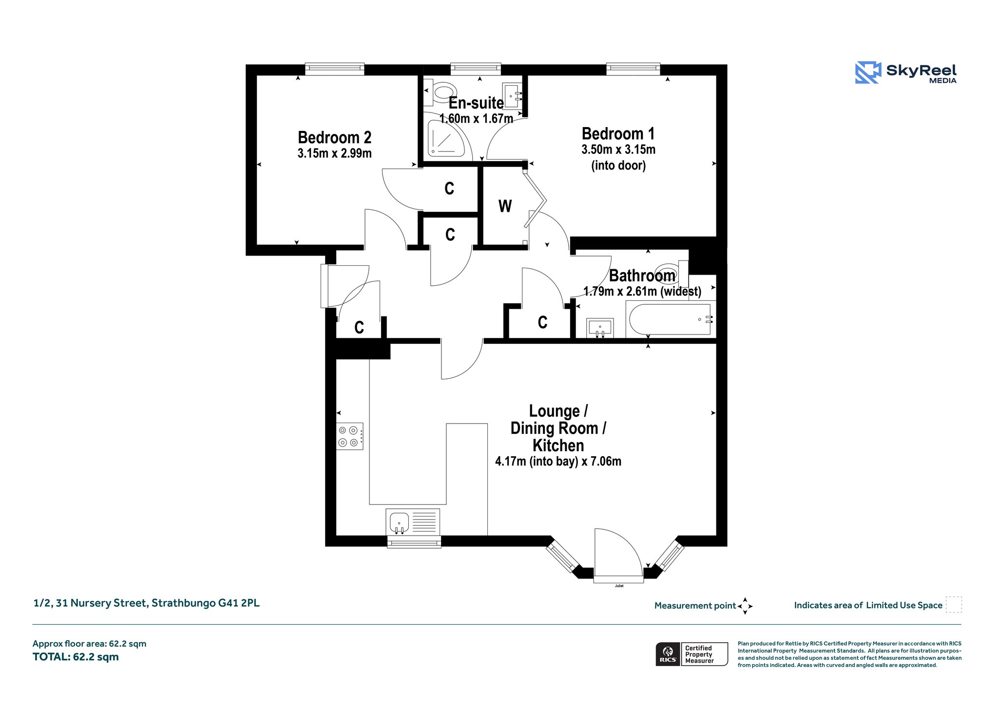
The accommodation of the flat itself comprises welcoming reception hallway with three cupboards off, bay windowed lounge with delightful open aspect, open plan onto a modern fitted kitchen with a range of integrated appliances, base and wall mounted units and breakfast bar, double sized bedroom one with integrated wardrobes and beautiful tiled en-suite shower room off with white two piece suite, vanity unit and separate walk-in shower, second double sized bedroom that could also be utilised as a home office or study and a gorgeous tiled bathroom with white three piece suite, vanity unit and over bath shower.
The property also benefits from double glazing, gas central heating, high quality floor coverings and a modern contemporary decor throughout. Externally there is ample, unallocated residents parking.
The property is phenomenally well positioned to take advantage of all the southside has to offer, Shawlands, Strathbungo, Queens Park and Pollokshields are all within a short walk and provide excellent brunch, lunch and dinner spots as well as excellent high street shopping facilities.
For commuters, speedy access to the M8 Motorway network via the A77 and Pollokshields East train station is only just around the corner.
More Details
Situation: Communal Garden
Council Tax Band: E
Tenure: Freehold
Your home may be repossessed if you do not keep up repayments on your mortgage. There may be a fee for mortgage advice. The actual amount you pay will depend upon your circumstances.
Similar Properties
Looking To Sell Or Let?
Rettie is one of the most trusted and well-respected names in property. Our unrivalled market knowledge helps people from around the world buy, sell, let and develop property in Scotland and the North East of England - from city apartments and rural cottages to large townhouses and prime country homes, farms and estates. We deal with some of the most prestigious properties on the market, but provide the same exceptional standards of service and value for money to all our clients.

