396A Albert Drive, Pollokshields, Glasgow, G41 4JP
Property Description
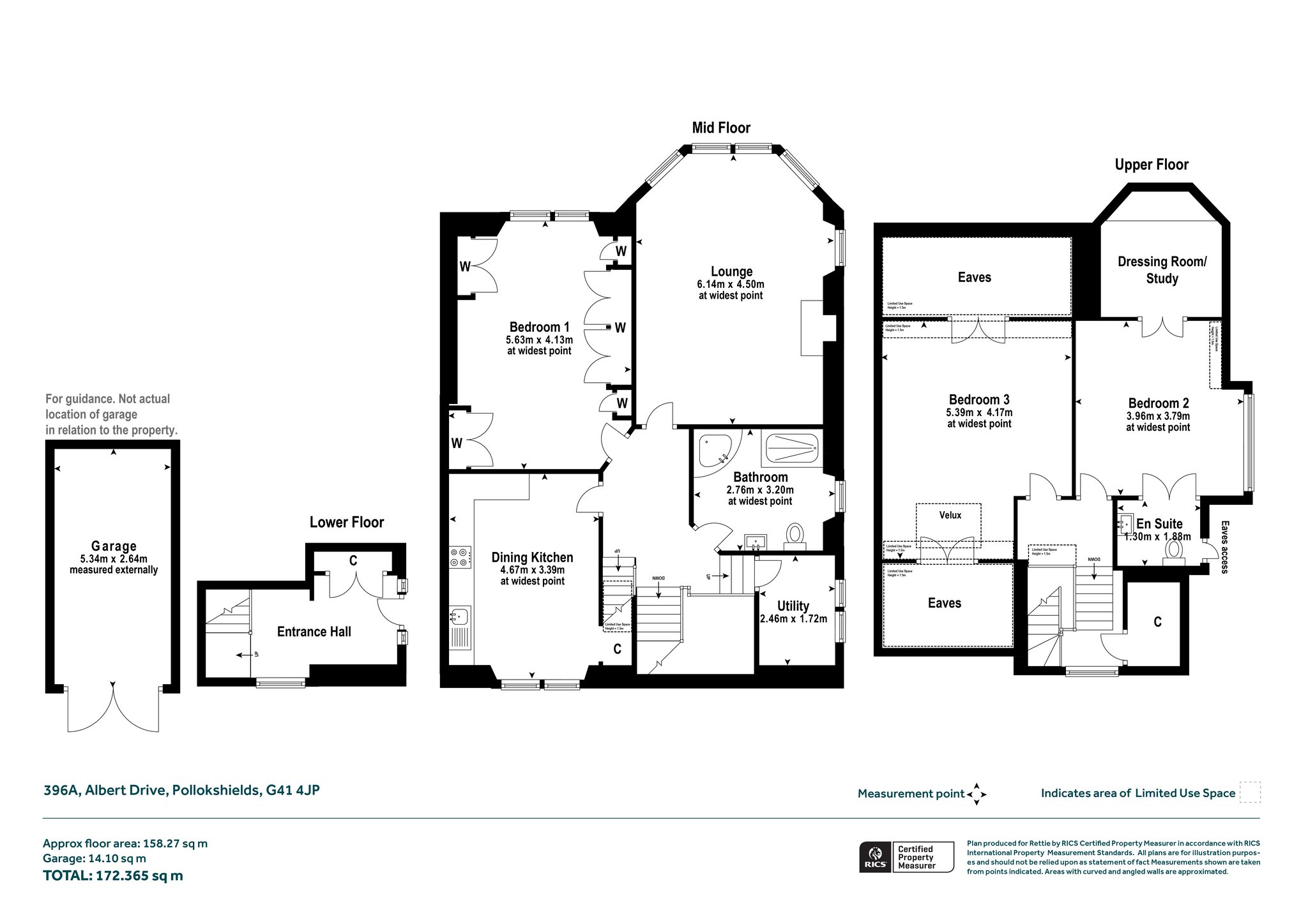
Albert Drive is a superb duplex upper conversion (accessed via side entrance). This fabulous 3 bedroom apartment retains a wealth of period features, fireplaces, cornicing, stained glass windows and banisters. This property will appeal to a broad range of potential buyers and features driveway parking, garage and private garden.
Enjoying the most wonderful elevated views over Albert Drive, to the front of the home is a large bay windowed lounge featuring fabulous fireplace and intricate cornicing and ceiling plasterwork throughout this room.
There is a large dining kitchen to the rear with a range of floor and wall mounted units and a very useful utility/laundry room across the hallway. The principal bedroom is situated to the front of the apartment, again with those views over the Drive and plenty of storage. This level is completed with a large 4 piece bathroom white suite with separate bath and shower.
A fixed stair leads to a second floor landing area where two further double bedrooms are found. A dressing area and an ensuite WC compliments the second bedroom. There is also generous storage throughout eaves space on this level.
Several period features are still intact notably moulded woodwork, ceiling plasterwork, deep skirting boards and elaborate stained glass. The specification includes gas central heating. Externally, the property has off street driveway via twin gate piers leading to a private garage (The property has a partially shared driveway). A private rear garden is conveniently situated next to the garage and is designed for low maintenance.
Pollokshields has evolved over the last 150 years as one of the best suburbs in the city of Glasgow. Its development was promoted by the original landowners, the Maxwells of Nether Pollok. Albert Drive is found in the heart of the Pollokshields conservation area, close to amenities on Nithsdale Road/Kildrostan Street where coffee houses, restaurants and boutiques trade well. Maxwell Park and Pollok Country Park are both within one mile of the property likewise Dumbreck or Maxwell Park train stations. Shields Road underground station is less than two miles away and the nearby M77 connects the Southside of Glasgow to Scotland's motorway network.
More Details
Situation: Private Garden
Council Tax Band: G
Tenure: Freehold
Your home may be repossessed if you do not keep up repayments on your mortgage. There may be a fee for mortgage advice. The actual amount you pay will depend upon your circumstances.
Similar Properties
Looking To Sell Or Let?
Rettie is one of the most trusted and well-respected names in property. Our unrivalled market knowledge helps people from around the world buy, sell, let and develop property in Scotland and the North East of England - from city apartments and rural cottages to large townhouses and prime country homes, farms and estates. We deal with some of the most prestigious properties on the market, but provide the same exceptional standards of service and value for money to all our clients.
