Flat 0/2, 1 Festival Court, Prince's Quay, Glasgow, G51 1BD
Property Description
*fixed Below Home Report*
Enjoying a great position in this attractive modern development by Cala, this ground floor, 2 bedroom flat offers open plan living within a modern development close to amenities perfectly located in Finnieston providing easy access to City Centre, West End or South Side.
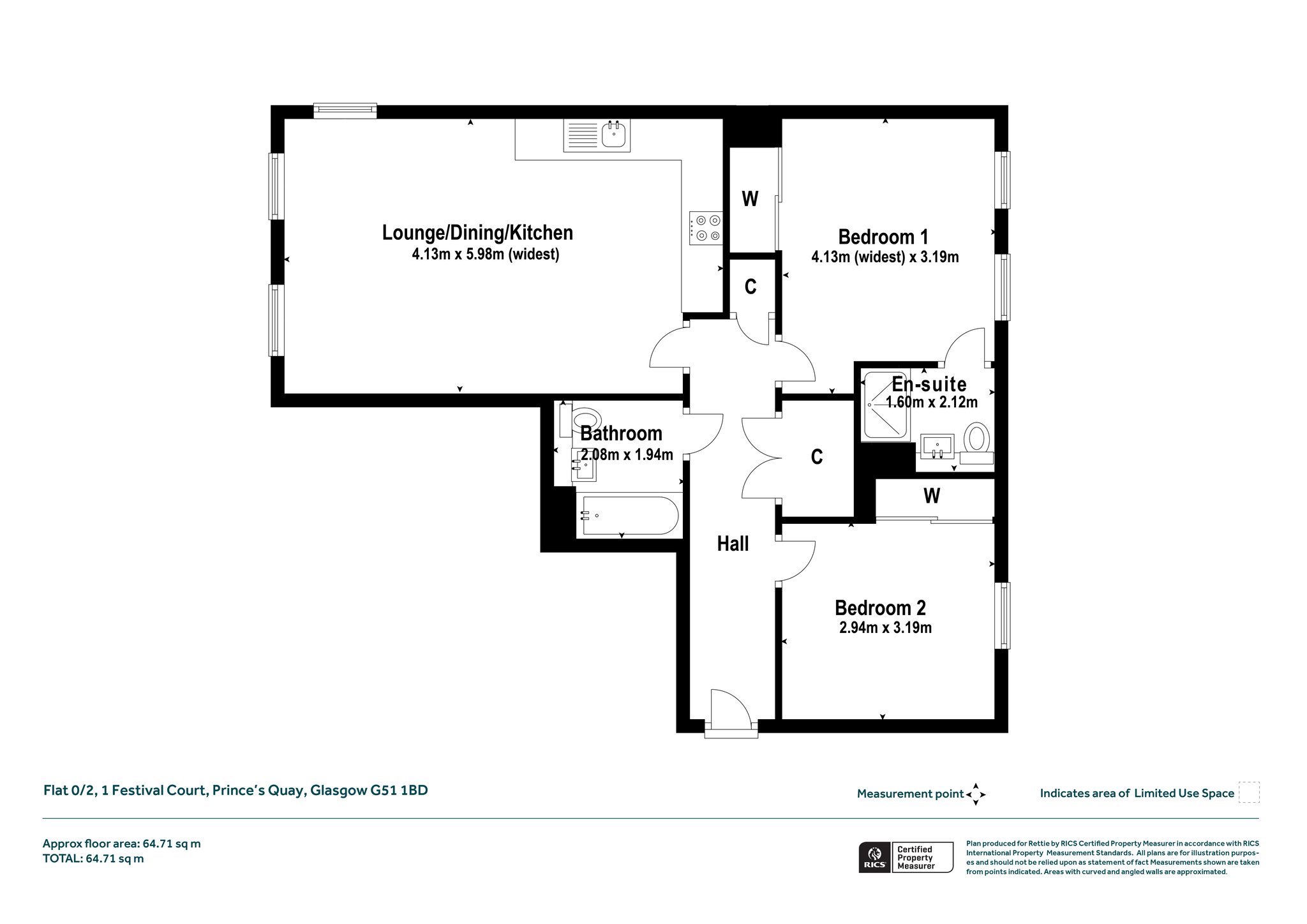
The property is in immaculate order and extends to; L-shaped entrance hallway with storage, impressive lounge open to kitchen and full length windows. The kitchen is fully fitted with upgraded inbuilt appliances. There are two well proportioned double bedrooms, both offering inbuilt wardrobes, and the main bedroom has access to a well appointed en-suite shower room. To complete the accommodation, the main bathroom has white sanitaryware, contemporary tiling and shower over bath.
Specification includes; secure entry system into communal hallway with lift access to all levels, a system of gas central heating, double glazing, private allocated parking space and beautiful communal garden grounds maintained by the factor.
The Princes Quay development is positioned on the South side of the river Clyde close to the “Squinty Bridge”, the Finnieston Crane, the SSE Hydro and the Armadillo. The property is within walking distance of nearby Finnieston where thriving coffee houses, bars, restaurants and independent shops can be found. The Village Gym and the Nuffield Gym are both nearby providing swimming pools and restaurants whilst Festival Park and Kelvingrove Park are within one mile of the front door. The local Exhibition Centre train station and Cessnock Underground are nearby and the South West cycle route.
More Details
Situation: Contact branch
Council Tax Band: E
Tenure: Freehold
Your home may be repossessed if you do not keep up repayments on your mortgage. There may be a fee for mortgage advice. The actual amount you pay will depend upon your circumstances.
Similar Properties
Looking To Sell Or Let?
Rettie is one of the most trusted and well-respected names in property. Our unrivalled market knowledge helps people from around the world buy, sell, let and develop property in Scotland and the North East of England - from city apartments and rural cottages to large townhouses and prime country homes, farms and estates. We deal with some of the most prestigious properties on the market, but provide the same exceptional standards of service and value for money to all our clients.
