Property Description
Set on the top floor of a traditional sandstone tenement overlooking Queens Park, this bright and generously proportioned one-bedroom flat offers an excellent opportunity to acquire a stylish home in one of Glasgow’s most sought-after Southside locations.
With a spacious internal layout, attractive period features, and a private balcony, the property offers a well-balanced and characterful home in a prime Southside setting.
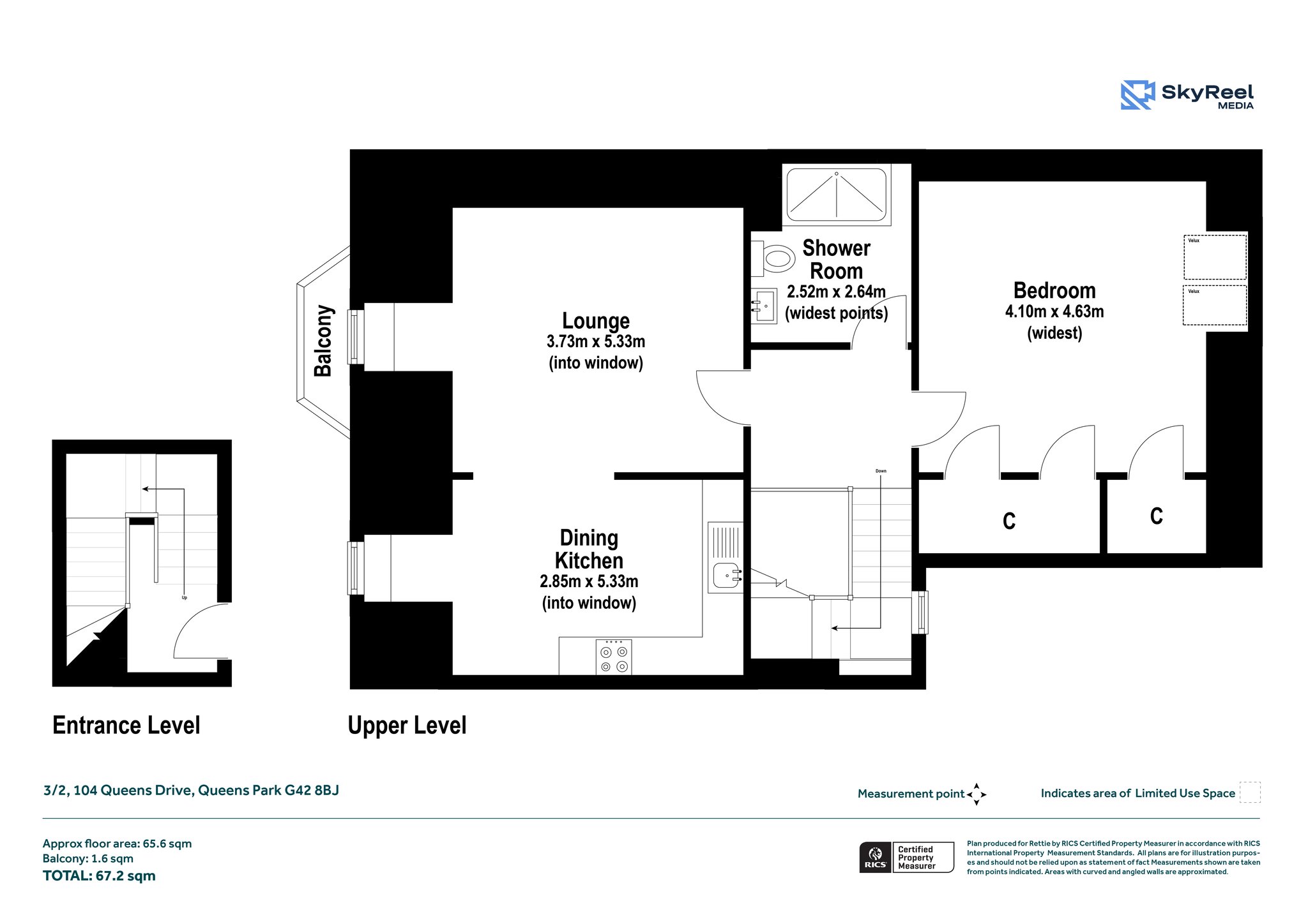
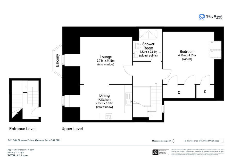
A welcoming entrance hallway leads to an impressive lounge, a superbly sized room with large windows that draw in natural light and offer open views toward the park. Directly adjacent is the spacious dining kitchen, providing ample room for cooking, dining, and entertaining, along with generous worktop and storage space. From the lounge, a private balcony, creating an ideal spot to enjoy the park outlook.
The accommodation includes a substantial double bedroom, enhanced by excellent floor space and built-in wardrobes. The shower room is fitted with a modern suite, offering a bright and practical space.
Further benefits include gas central heating, single glazing, and secure door entry.
Located directly opposite Queens Park, the property is ideally placed for access to a wide range of cafés, restaurants, bars, and independent shops in both Shawlands and Strathbungo. Excellent public transport links are available via nearby Crosshill and Queens Park train stations, along with regular bus services along Victoria Road and Pollokshaws Road.
More Details
Situation: BalconyCommunal Garden
Council Tax Band: D
Tenure: Freehold
Your home may be repossessed if you do not keep up repayments on your mortgage. There may be a fee for mortgage advice. The actual amount you pay will depend upon your circumstances.
Similar Properties
Looking To Sell Or Let?
Rettie is one of the most trusted and well-respected names in property. Our unrivalled market knowledge helps people from around the world buy, sell, let and develop property in Scotland and the North East of England - from city apartments and rural cottages to large townhouses and prime country homes, farms and estates. We deal with some of the most prestigious properties on the market, but provide the same exceptional standards of service and value for money to all our clients.
