Property Description
A beautiful two bedroomed, ground floor flat situated in this quiet, yet convenient pocket of Mount Florida.
This delightful flat offers generous, ground floor accommodation that is in pristine condition; a must for viewing in order to be appreciated.
This blonde sandstone tenement building is accessed via secure door entry system into a well-kept communal close.
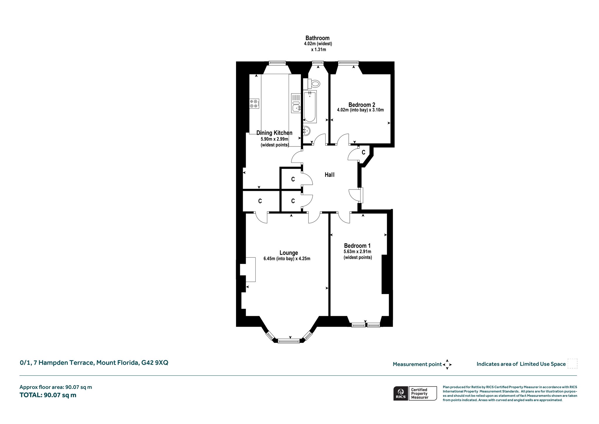
The accommodation of the flat itself comprises welcoming reception hallway with two large cupboards off, stunning bay windowed lounge with intricate cornice detailing, feature fireplace and spectacular view, gorgeous dining sized kitchen with a range of integrated appliances, base and wall mounted units and dining recess. There is a spacious bedroom one to the front of the flat with intricate cornice detailing and fabulous open aspect, second double sized bedroom to the rear of the flat that can be utilised very flexibly and a neutral bathroom with white three piece suite, vanity unit, heated towel rail and electric shower.
The property also benefits from double glazing, gas central heating, high quality floor coverings and a modern, neutral decor throughout. Externally there are communal front and rear gardens.
Hampden Terrace is situated in Mount Florida which has an impressive number of local amenities and transport links. These include independent shops, art studio and popular restaurants and eateries including the likes of Cafe Salmagundi, Bucks Bar and Hooked. As well as frequent bus and rail services, Mount Florida is extremely well placed for commuting access to the M77 and M8.
The beautiful Queens Park is nearby, which hosts a number of community events throughout the year and has a tennis club, glasshouses and extensive views across the city and beyond.
More Details
Situation: Communal Garden
Council Tax Band: C
Tenure: Freehold
Your home may be repossessed if you do not keep up repayments on your mortgage. There may be a fee for mortgage advice. The actual amount you pay will depend upon your circumstances.
Similar Properties
Looking To Sell Or Let?
Rettie is one of the most trusted and well-respected names in property. Our unrivalled market knowledge helps people from around the world buy, sell, let and develop property in Scotland and the North East of England - from city apartments and rural cottages to large townhouses and prime country homes, farms and estates. We deal with some of the most prestigious properties on the market, but provide the same exceptional standards of service and value for money to all our clients.
