35 Overdale Street, Glasgow, Glasgow City, G42 9PZ

Glasgow, Glasgow City, G42 9PZ
Under Offer
Pin View on map

Offers Over £220,000

House

Ground Floor Apartment

Bed

1 Bedroom

Bathroom

1 Bathroom

Reception

2 Reception Rooms

Tree

Communal Garden

Telephone

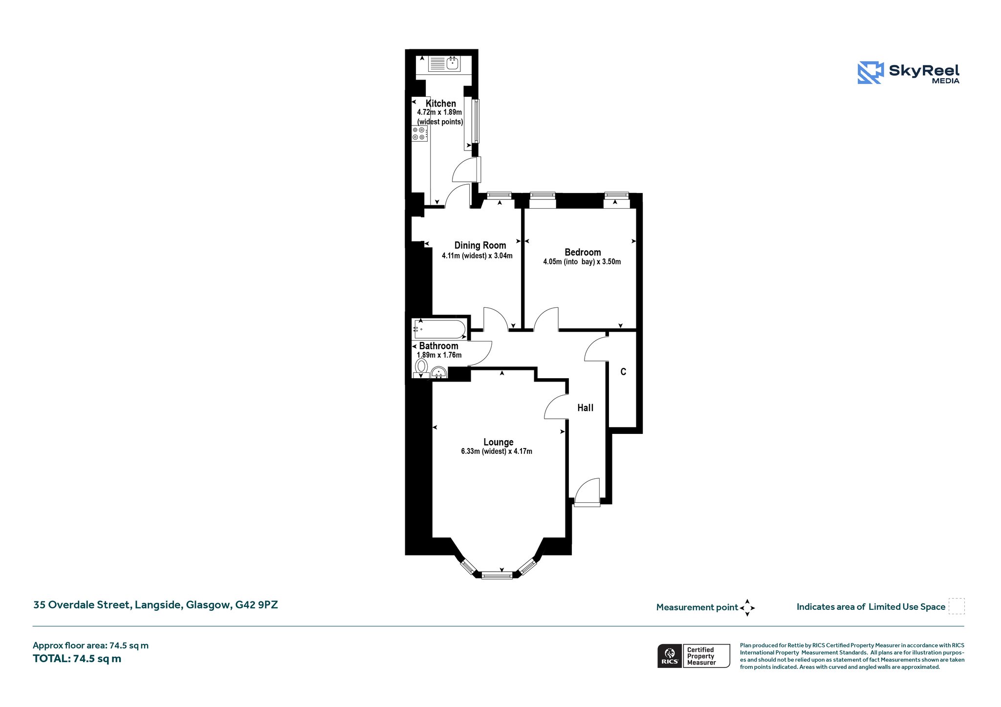
Property Description

A delightful lower conversion with direct access out to rear garden space.

Enjoying a range of period features and spacious accommodation this ground floor conversion is a must for viewing in order to be appreciated.

This converted blonde sandstone townhouse is accessed via communal storm doors into a communal hallway.

The accommodation of the property itself comprises welcoming reception hallway with large cupboard off, stunning bay windowed lounge with intricate cornice detailing, dining room that could be utilised very flexibly, galley style kitchen with a range of base and wall mounted units, tiled splashback and access out to the rear garden, double sized bedroom and tiled bathroom with white three piece suite and over bath shower.

The property also benefits from double glazing, gas central heating, high quality floor coverings and a modern, neutral decor throughout. Externally there is the aforementioned communal rear garden with separate patio and lawn.

Langside is an immensely popular area in the Southside of Glasgow with a range of nearby transport links, amenities and schooling, with Battlefield Primary School at the end of the street. Shawlands and Strathbungo are both within walking distance and the area offers a wide selection of local shops, salubrious bars, restaurants and cafes.

More Details

Situation: Communal Garden
Council Tax Band: C
Tenure: Freehold

Contact Us

Alice Beedham

Alice Beedham

Sales Negotiator
Claire Black CIOBS

Claire Black CIOBS

Mortgage & Protection Advisor
Mortgage Calculator
Monthly payments
Please set an interest rate.

Your home may be repossessed if you do not keep up repayments on your mortgage. There may be a fee for mortgage advice. The actual amount you pay will depend upon your circumstances.

Tax Calculator
LBTT calculator for properties purchased in Scotland. Stamp Duty calculator for properties purchased in England.
Land & buildings transaction tax (LBTT)
= £0
New build house with stone and timber cladding

Looking To Sell Or Let?

Rettie is one of the most trusted and well-respected names in property. Our unrivalled market knowledge helps people from around the world buy, sell, let and develop property in Scotland and the North East of England - from city apartments and rural cottages to large townhouses and prime country homes, farms and estates. We deal with some of the most prestigious properties on the market, but provide the same exceptional standards of service and value for money to all our clients.