2/1, 22 Leven Street, Pollokshields, Glasgow, G41 2JE
Property Description
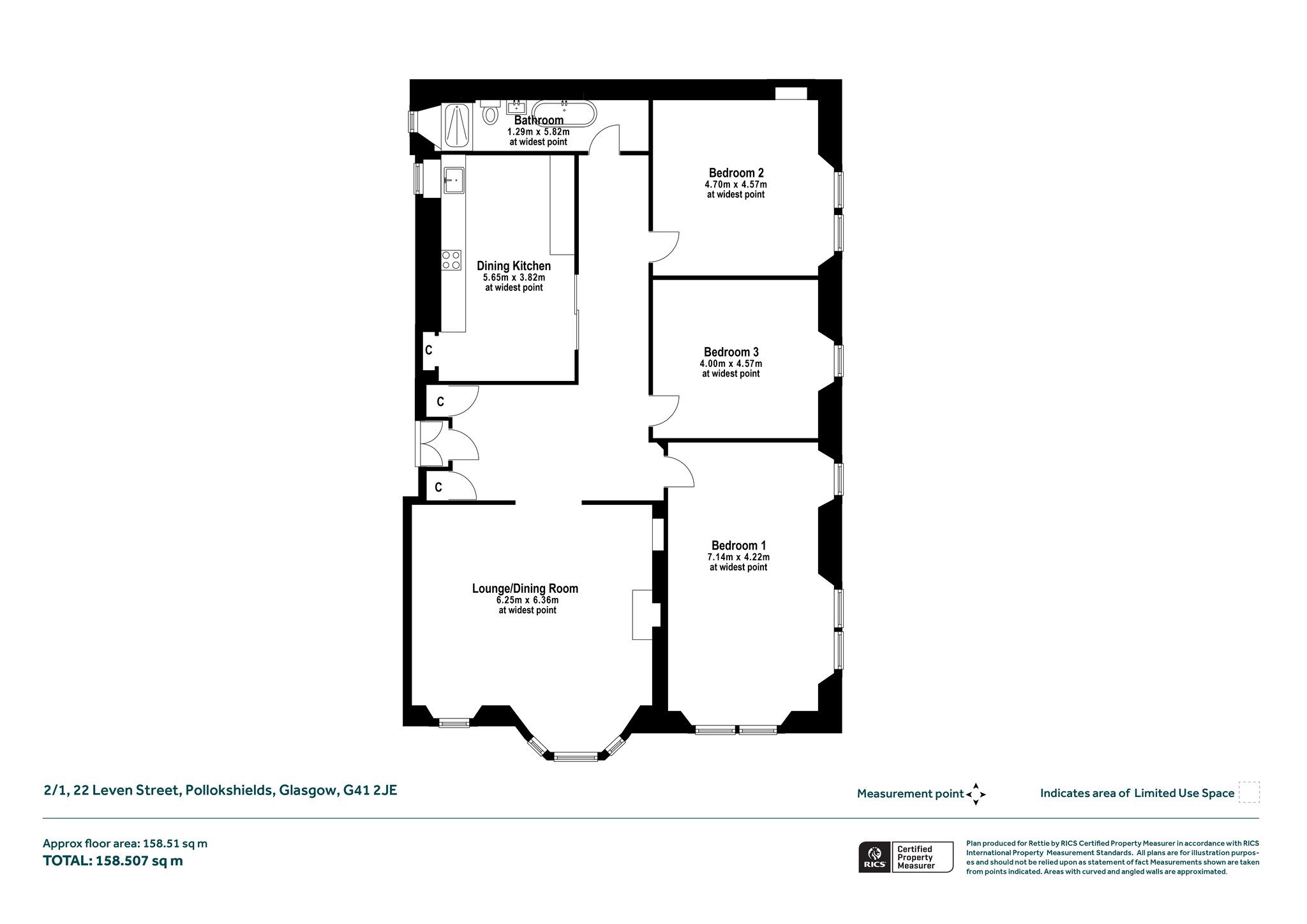
An exceptional and unique larger style, three bedroomed corner flat situated in this incredibly popular pocket of Pollokshields.
Having undergone extensive refurbishment under the current owners, this incredible corner flat is a must for viewing in order to be appreciated. This south-facing blonde sandstone tenement building is accessed via secure door entry system into a well-kept communal close and stairwell, where the flat is positioned on the second (top) floor.
The accommodation of the flat itself comprises grand L-shaped reception hallway with herringbone flooring, sizeable lounge/dining room with herringbone flooring, intricate cornice detailing and feature fireplace, gorgeous dining sized kitchen with a range of integrated appliances, base and wall mounted units, tiled splashback and ample space for dining table and chairs. There are three double sized bedrooms with an expansive bedroom one with fabulous dual aspect, cornicing and herringbone flooring, two more double sized bedrooms, both of which can be utilised very flexibly and a stunning tiled bathroom with white two piece suite, standalone bath and separate walk-in shower with glass screen.
The property also benefits from sash and casement double glazing gas central heating, high quality floor coverings and a modern, contemporary decor throughout. Externally there is a communal rear garden.
Pollokshields is one of the most popular areas anywhere in the West of Scotland. The combination of amenities and transport links are second to none. There is a particularly impressive range of restaurants, bars and cafes in Pollokshields itself as well as nearby Strathbungo and Shawlands all within walking distance. The position of the property is also extremely convenient for easy access to Glasgow City Centre by any number of methods including by bike, car, train, bus or subway.
More Details
Situation: Communal Garden
Council Tax Band: D
Tenure: Freehold
Your home may be repossessed if you do not keep up repayments on your mortgage. There may be a fee for mortgage advice. The actual amount you pay will depend upon your circumstances.
Similar Properties
Looking To Sell Or Let?
Rettie is one of the most trusted and well-respected names in property. Our unrivalled market knowledge helps people from around the world buy, sell, let and develop property in Scotland and the North East of England - from city apartments and rural cottages to large townhouses and prime country homes, farms and estates. We deal with some of the most prestigious properties on the market, but provide the same exceptional standards of service and value for money to all our clients.
