0/1, 102 Kenmure Street, Pollokshields, Glasgow, G41 2NS
Property Description
An impressive three bedroomed, ground floor flat situated in this convenient pocket of East Pollokshields.
This blonde sandstone tenement building is accessed via secure door entry system into a well-kept communal close and stairwell.
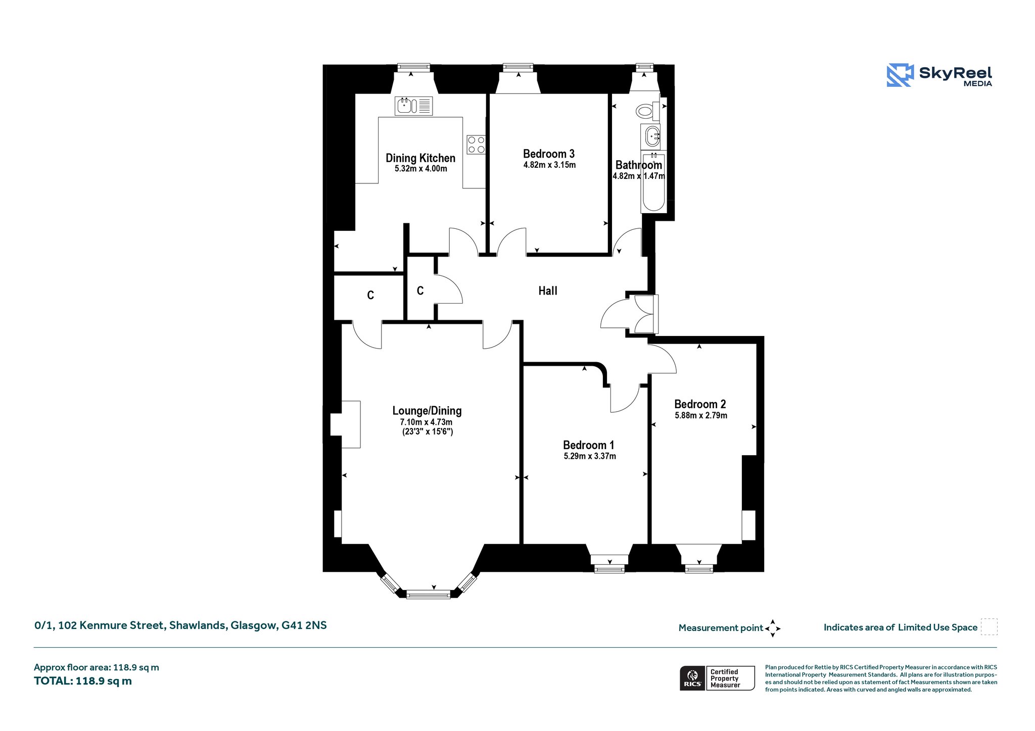
The accommodation of the flat itself comprises welcoming reception hallway with large cupboard off, spacious bay windowed lounge with cornice detailing, refurbished floorboards and feature fireplace, delightful dining sized kitchen with a range of base and wall mounted units and tiled splashback, three double sized bedrooms, all of which can be utilised very flexibly and a tiled bathroom with white three piece suite and over bath electric shower.
The property also benefits from double glazing, gas central heating, a range of period features and attractive, modern decor throughout. Externally there is a communal rear garden and private front garden.
Pollokshields is one of the most popular areas anywhere in the West of Scotland. The combination of amenities and transport links are second to none. There is a particularly impressive range of restaurants, bars and cafes in Pollokshields itself as well as nearby Strathbungo and Shawlands all within walking distance. The position of the property is also extremely convenient for easy access to Glasgow City Centre by any number of methods including by bike, car, train, bus or subway.
More Details
Situation: Communal GardenPrivate Garden
Council Tax Band: D
Tenure: Freehold
Your home may be repossessed if you do not keep up repayments on your mortgage. There may be a fee for mortgage advice. The actual amount you pay will depend upon your circumstances.
Similar Properties
Looking To Sell Or Let?
Rettie is one of the most trusted and well-respected names in property. Our unrivalled market knowledge helps people from around the world buy, sell, let and develop property in Scotland and the North East of England - from city apartments and rural cottages to large townhouses and prime country homes, farms and estates. We deal with some of the most prestigious properties on the market, but provide the same exceptional standards of service and value for money to all our clients.
