60 Raeswood Crescent, Crookston, Glasgow City, G53 7HE
Property Description
A stunning detached home forming part of this popular modern development.
Offering generous family accommodation over two levels, this stunning home is a must for viewing in order to be appreciated.
The house is approached via pathway flanked by front, landscaped garden.
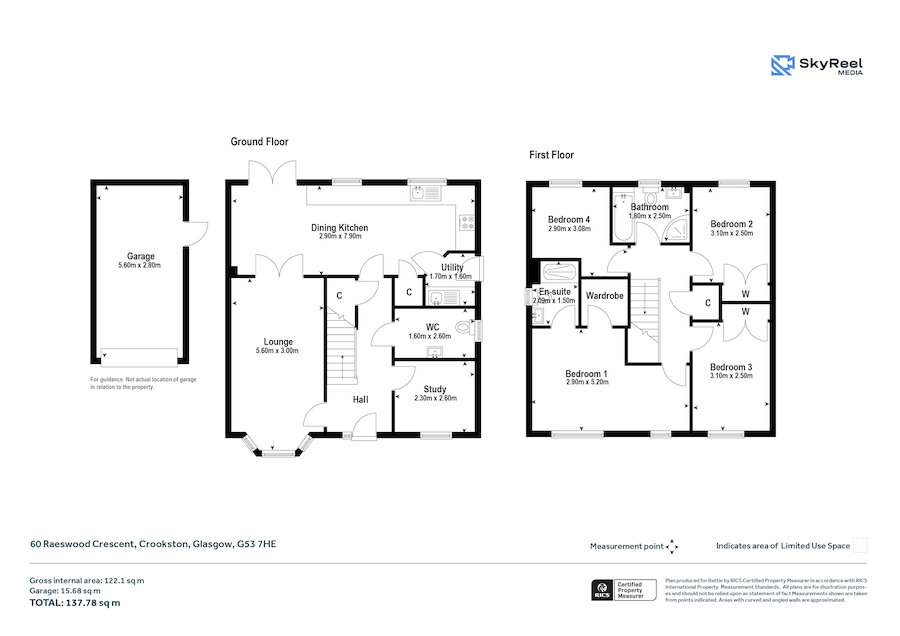
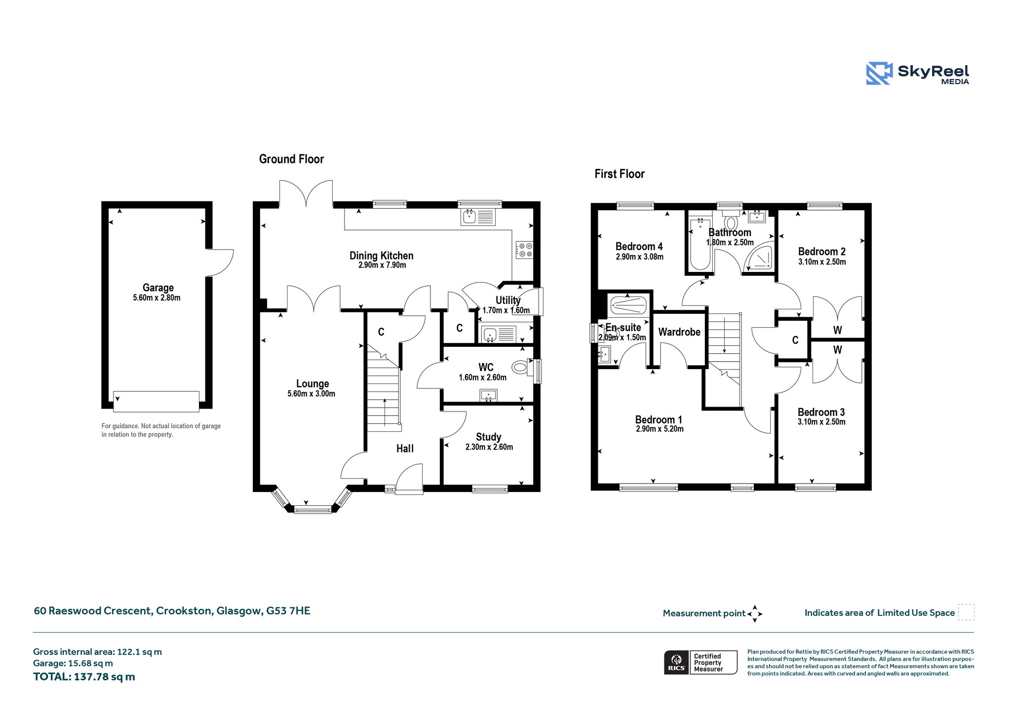
The accommodation of the house itself comprises welcoming reception hallway with understairs cupboard off, bay windowed lounge with double door access through to the dining sized kitchen with a range of integrated appliances, base and wall mounted units, ample space for dining table and chairs and double door access out to the rear garden, useful utility room off, W.C. and excellent study.
Upstairs there is bedroom one with walk-in wardrobe and tiled en-suite shower room off, bedroom two & three, both with integrated wardrobes, fourth bedroom that could be used flexibly and a tiled family bathroom with three piece suite and separate walk-in shower.
The property also benefits from double glazing, gas central heating, high quality floor coverings and a modern, contemporary decor throughout.
Externally there is fabulous rear garden with separate patio and lawn. There is also the aforementioned front garden, along with driveway and garage.
Crookston has a variety of facilities and amenities within walking distance on Paisley Road West, Cardonald. The property is conveniently located for two major shopping centres - Braehead and Silverburn. The commuter has convenient transport links to the M8, M77 and Clyde Tunnel; Crookston Train Station and bus services. The property is ideally located for the new Queen Elizabeth University Hospital which can be accessed by car, public transport or by walking.
More Details
Situation: Private Garden
Council Tax Band: F
Tenure: Freehold
Your home may be repossessed if you do not keep up repayments on your mortgage.
There may be a fee for mortgage advice. The actual amount you pay will depend upon your circumstances. The fee is up to 1% but a typical fee is 0.3% of the amount borrowed.
Similar Properties
Looking To Sell Or Let?
Rettie is one of the most trusted and well-respected names in property. Our unrivalled market knowledge helps people from around the world buy, sell, let and develop property in Scotland and the North East of England - from city apartments and rural cottages to large townhouses and prime country homes, farms and estates. We deal with some of the most prestigious properties on the market, but provide the same exceptional standards of service and value for money to all our clients.
