3/1, 13 Barrland Street, Pollokshields, Glasgow, G41 1QH
Property Description
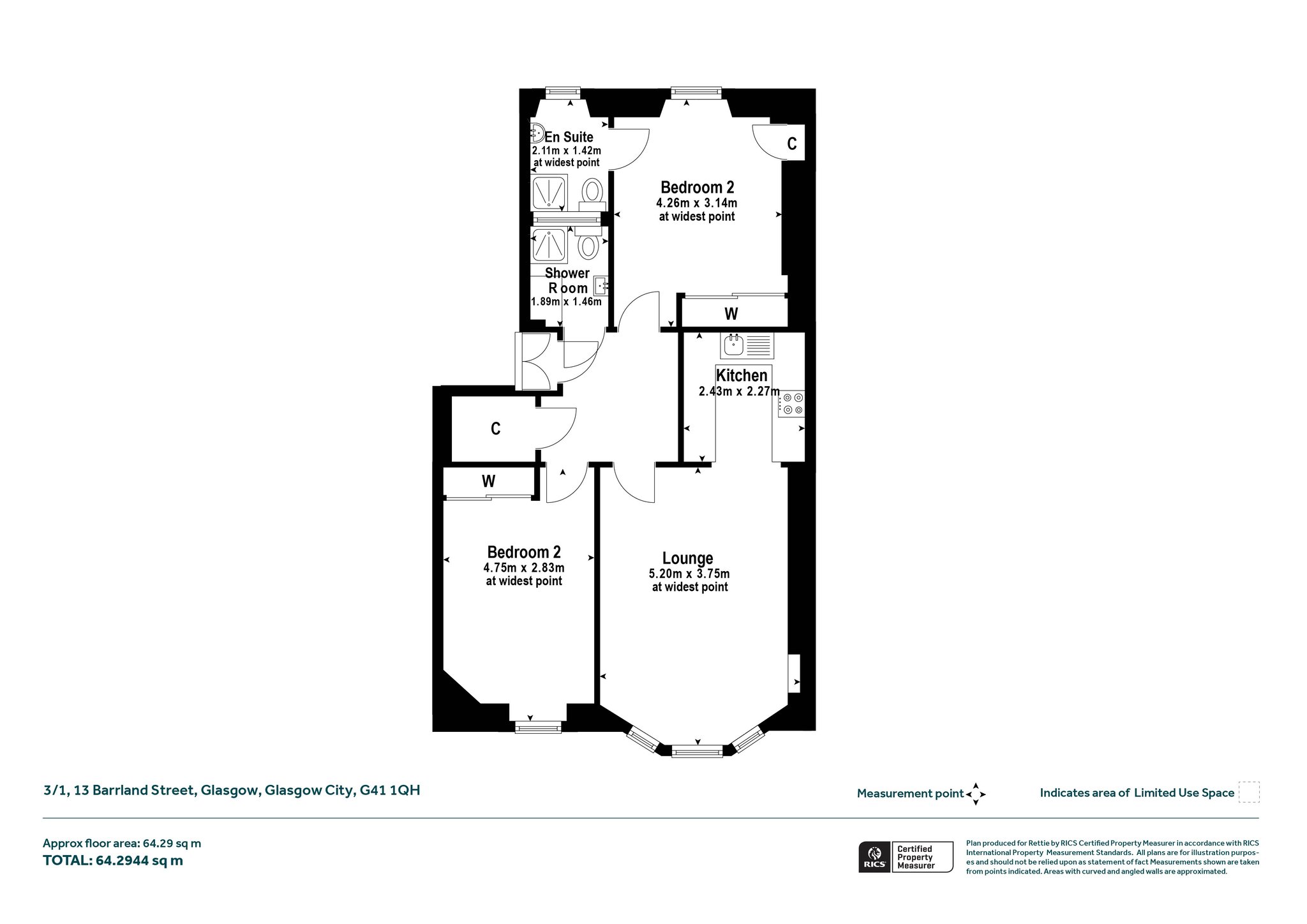
An impressive two bedroom, third floor flat situated in this convenient pocket of Glasgow's Southside.
This red sandstone tenement building is accessed via secure door entry system into a well-kept communal close and stairwell.
The accommodation of the flat itself comprises welcoming reception hallway with cupboard off, delightful bay windowed lounge with cornicing, semi open plan onto a modern kitchen with a range of integrated appliances, base and wall mounted units and splashback, double sized bedroom one with integrated wardrobes with sliding door access and tiled en-suite shower room off with white two piece suite and separate walk-in shower, second double sized bedroom also with integrated wardrobes and tiled shower room with white two piece suite, separate walk-in shower, heated towel rail and utility area.
The property also benefits from double glazing, gas central heating, high quality floor coverings and a modern, neutral decor throughout.
Barrland Street is situated a short distance from the hugely popular Strathbungo area where there is a range of salubrious eateries, cafes, bars and restaurants as well as a strong community culture and range of community events. Nearby transport links are also numerous with excellent rail, road and bus links into Glasgow City Centre and beyond.
More Details
Situation: Communal Garden
Council Tax Band: C
Tenure: Freehold
Your home may be repossessed if you do not keep up repayments on your mortgage. There may be a fee for mortgage advice. The actual amount you pay will depend upon your circumstances.
Similar Properties
Looking To Sell Or Let?
Rettie is one of the most trusted and well-respected names in property. Our unrivalled market knowledge helps people from around the world buy, sell, let and develop property in Scotland and the North East of England - from city apartments and rural cottages to large townhouses and prime country homes, farms and estates. We deal with some of the most prestigious properties on the market, but provide the same exceptional standards of service and value for money to all our clients.
