Property Description
A handsome semi-detached blonde sandstone villa requiring upgrading, situated in this quiet pocket of Dumbreck.
Offering a range of period of features and generous family accommodation over two levels, this impressive villa offers a fantastic opportunity for any prospective buyers.
The house is approached via driveway and path leading to the front double storm doors and entrance vestibule, flanked by front garden.
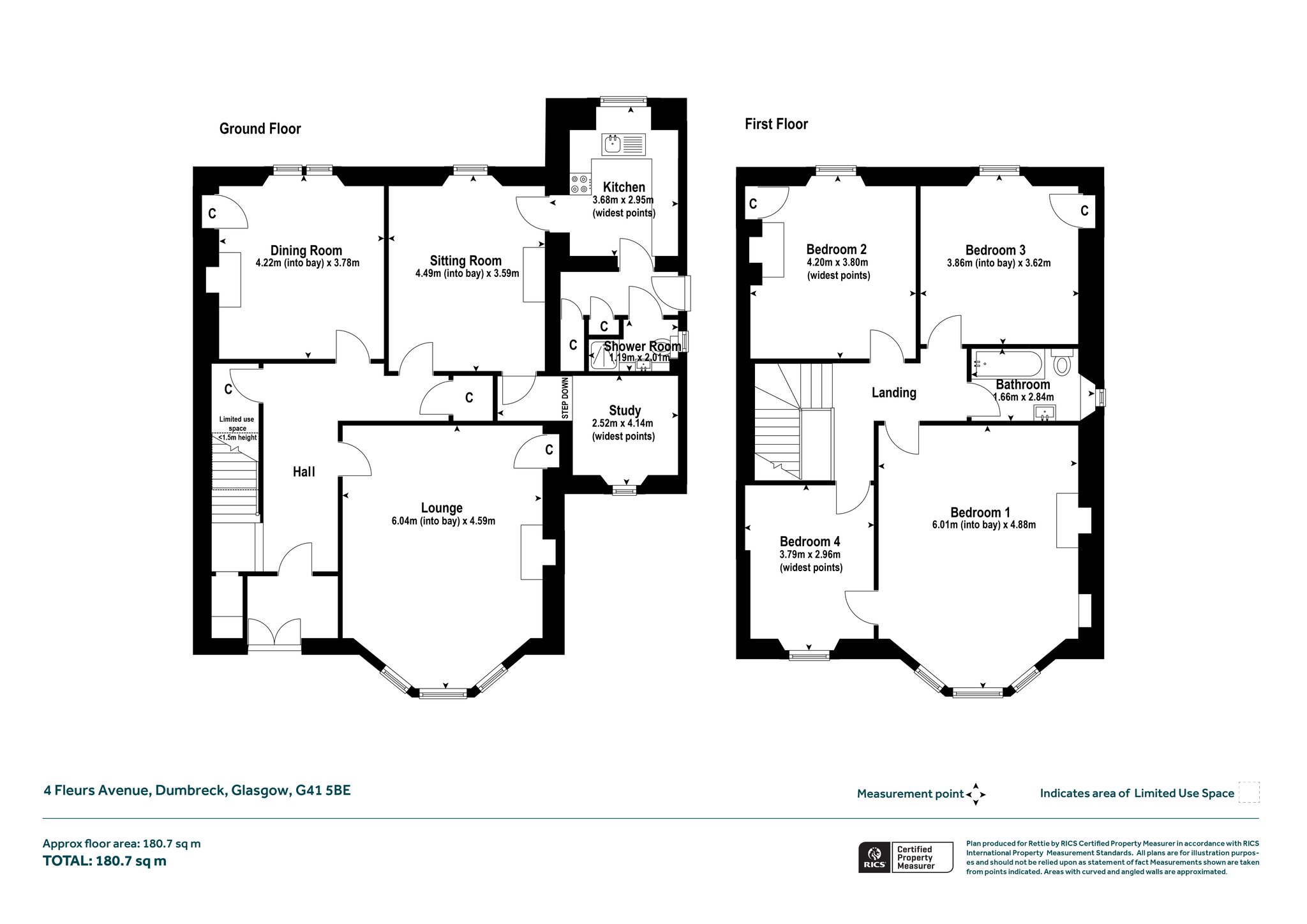
The accommodation of the house itself comprises grand reception hallway with two cupboards off, impressive bay windowed lounge with cornicing and feature fireplace, dining room with feature fireplace, sitting room with feature fireplace, kitchen with a range of base and wall mounted units, shower room with two piece suite and shower enclosure and separate study.
Upstairs the accommodation comprises bay windowed bedroom one with cornicing and feature fireplace, second and third bedrooms which are both double in size with bedroom two enjoying a fireplace, fourth bedroom and tiled bathroom with three piece suite.
The property also benefits from single glazing, a gas central heating system that is not currently operational and a range of period features including original parquet flooring, original floorboards, feature fireplaces, cornicing and stained glass. Externally there is the aforementioned front garden and driveway, along with a mature rear garden with separate lawn and patio, as well as a detached garage.
Dumbreck is an incredibly affluent and popular suburb in Glasgow's southside with a number of amenities and transport links nearby. There are a number of parks and recreational facilities in close proximity including Bellahouston Park, Pollok Park, Titwood Tennis & Bowling Club, Clydesdale Cricket Club, Bellahouston Ski Centre, Cartha Rugby Club and Haggs Castle Golf Club. The closest independent schooling at both primary and secondary level comes in the form of the prestigious Hutchesons’ Grammar School which is within walking distance. The cafes, restaurants and boutique stores of Nithsdale Road in Pollokshields are within walking distance, as well as Shawlands and Strathbungo that both offer a wide array of their own cafes, bars and restaurants. Dumbreck train station is a short walk away. Dumbreck is also close to junction 1 of the M77, offering motorway connections across central Scotland, along with the Queen Elizabeth University Hospital being within comfortable commuting distance.
More Details
Situation: Private Garden
Council Tax Band: G
Tenure: Freehold
Your home may be repossessed if you do not keep up repayments on your mortgage. There may be a fee for mortgage advice. The actual amount you pay will depend upon your circumstances.
Similar Properties
Looking To Sell Or Let?
Rettie is one of the most trusted and well-respected names in property. Our unrivalled market knowledge helps people from around the world buy, sell, let and develop property in Scotland and the North East of England - from city apartments and rural cottages to large townhouses and prime country homes, farms and estates. We deal with some of the most prestigious properties on the market, but provide the same exceptional standards of service and value for money to all our clients.
