Property Description
An impressive top (second) floor flat situated in this convenient pocket of Newlands.
The building is accessed via secure door entry system into a well-kept communal stairwell.
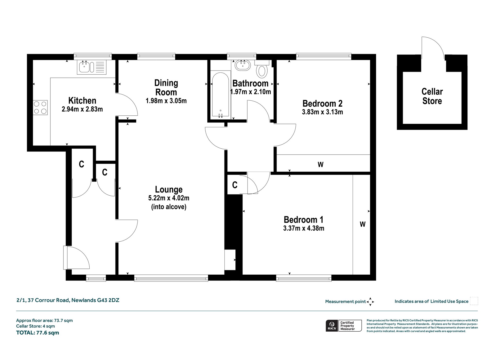
The accommodation of the flat itself comprises spacious entrances vestibule with two cupboards off, generous lounge, open plan onto the dining room which enjoys a fantastic open aspect to the rear, kitchen with a range of base and wall mounted units, tiled splashback and open aspect, two double sized bedrooms, both of which could be utilised very flexibly and a tiled bathroom with three piece suite and over bath shower.
The property also benefits from double glazing, gas central heating, a useful cellar, high quality floor coverings and a modern, contemporary decor throughout. Externally there is an impressive communal rear garden.
Newlands is a beautiful suburb situated in the south of Glasgow. It is one of the most popular suburban areas to be found anywhere in Scotland. This is down to its quiet ambience, popular park, and range of nearby amenities in Shawlands, Giffnock and Pollokshields. There are also excellent transport links nearby via bus road and rail to the centre of Glasgow and elsewhere. Langside and Pollokshaws East Train Stations which provide regular services to and from Glasgow Central are a short walk away.
More Details
Situation: Communal Garden
Council Tax Band: D
Tenure: Freehold
Your home may be repossessed if you do not keep up repayments on your mortgage. There may be a fee for mortgage advice. The actual amount you pay will depend upon your circumstances.
Similar Properties
Looking To Sell Or Let?
Rettie is one of the most trusted and well-respected names in property. Our unrivalled market knowledge helps people from around the world buy, sell, let and develop property in Scotland and the North East of England - from city apartments and rural cottages to large townhouses and prime country homes, farms and estates. We deal with some of the most prestigious properties on the market, but provide the same exceptional standards of service and value for money to all our clients.
