Property Description
A delightful main door upper flat with private garden situated in this quiet yet convenient pocket of Pollokshaws.
Entered via your own private main door entrance into the internal staircase.
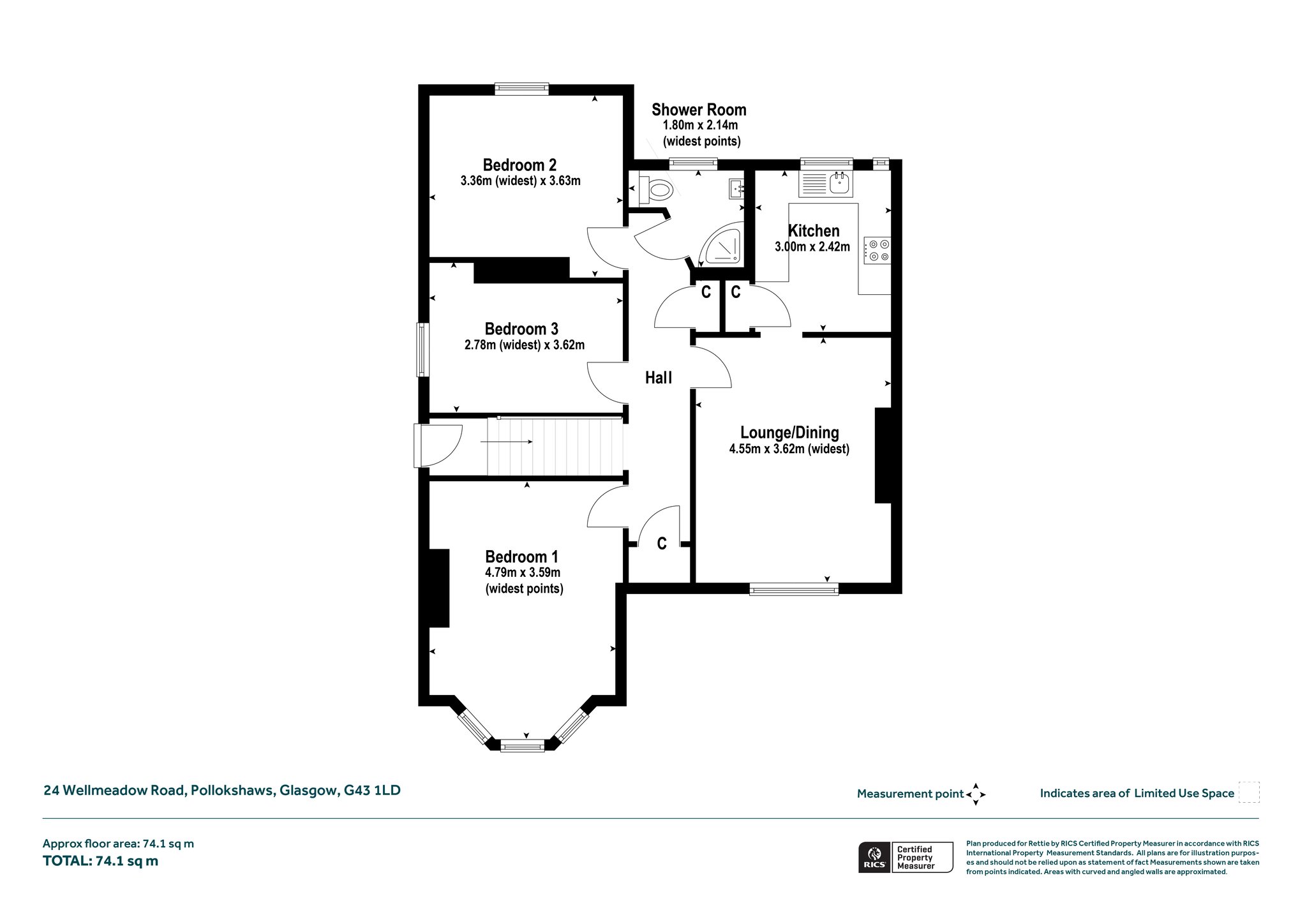
The accommodation of the flat comprises reception hallway, spacious lounge with delightful open aspect, kitchen with a range of base and wall mounted units and tiled splashback, bay windowed bedroom one also enjoying the open aspect, two more double sized bedrooms, both of which can be utilised flexibly as home office or study space and a tiled shower room with white two piece suite, vanity unit and separate walk-in shower.
The property also benefits from double glazing, gas central heating, high quality floor coverings and a modern, contemporary decor throughout. Externally you have your own private rear garden and ample on street parking.
Wellmeadow Road is nearby Newlands Park and Pollok Park where the Burrell Collection is found alongside Pollok House and various nature walks/playparks. Amenities are available at the Morrisons store bordering Shawlands, the Sainsbury's store in Muirend or at the Silverburn shopping centre in Pollok and stations are at Pollokshaws West or Pollokshaws East.
More Details
Situation: Private Garden
Council Tax Band: C
Tenure: Freehold
Your home may be repossessed if you do not keep up repayments on your mortgage. There may be a fee for mortgage advice. The actual amount you pay will depend upon your circumstances.
Similar Properties
Looking To Sell Or Let?
Rettie is one of the most trusted and well-respected names in property. Our unrivalled market knowledge helps people from around the world buy, sell, let and develop property in Scotland and the North East of England - from city apartments and rural cottages to large townhouses and prime country homes, farms and estates. We deal with some of the most prestigious properties on the market, but provide the same exceptional standards of service and value for money to all our clients.
