Property Description
Nether Auldhouse Road is an extended, 3 bedroom, red sandstone end-terraced home situated in the heart of Newlands on Glasgow’s Southside. The property enjoys an excellent position close to local Parks and amenities. The home does require a degree of modernisation, offering a fantastic opportunity for development.
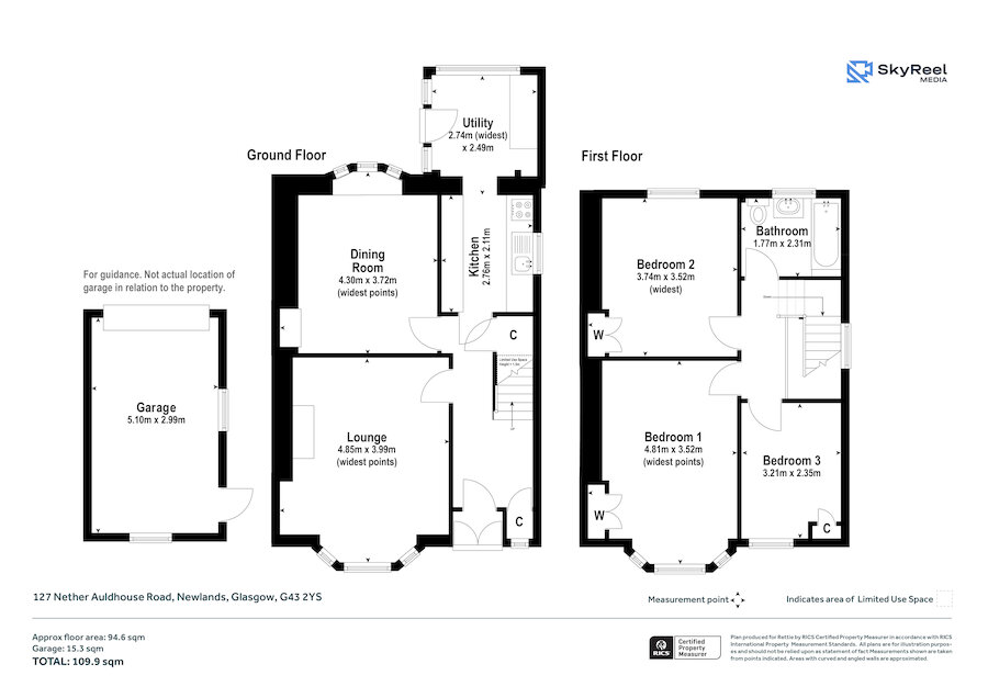
The accommodation extends to welcoming hallway. To the front, a generous bay windowed sitting room, with second lounge/dining room to the rear of home with views over garden. The kitchen is fitted with floor and wall mounted units and flows directly on to small extension/utility area which, in turn, gives direct access on to level garden.
On the upper level, there are three bedrooms; bay-windowed principal bedroom looking on to Nether Auldhouse Road, two further bedrooms and a family bathroom complete the overall accommodation.
The outside space has generous, level with the front garden, rear garden designed for ease of maintenance. The garden also provides direct access to a garage at the far end, giving useful storage and off-street convenience.
The property enjoys an enviable location in Newlands, one of the most desirable neighbourhoods in Glasgow’s Southside, well regarded for its leafy surroundings, community feel and access to excellent amenities.
Newlands Park is just a short walk away, offering wide open green space, tennis courts, a café and a children’s play area, while nearby Auldhouse Park provides further outdoor options.
Shawlands is also close at hand with its lively mix of shops, cafés, bars and restaurants, alongside supermarkets for everyday shopping.
Pollokshaws East train station offering fast and direct links into Glasgow Central Station, making commuting into the city both simple and reliable. Regular bus services also run along nearby routes, while the M77 and wider motorway network are easily accessible for travel across the central belt. Together, these features make Newlands not only a convenient and well-connected place to live, but also one of the most appealing residential areas in the Southside.
More Details
Situation: Private Garden
Council Tax Band: E
Tenure: Freehold
Your home may be repossessed if you do not keep up repayments on your mortgage. There may be a fee for mortgage advice. The actual amount you pay will depend upon your circumstances.
Similar Properties
Looking To Sell Or Let?
Rettie is one of the most trusted and well-respected names in property. Our unrivalled market knowledge helps people from around the world buy, sell, let and develop property in Scotland and the North East of England - from city apartments and rural cottages to large townhouses and prime country homes, farms and estates. We deal with some of the most prestigious properties on the market, but provide the same exceptional standards of service and value for money to all our clients.
