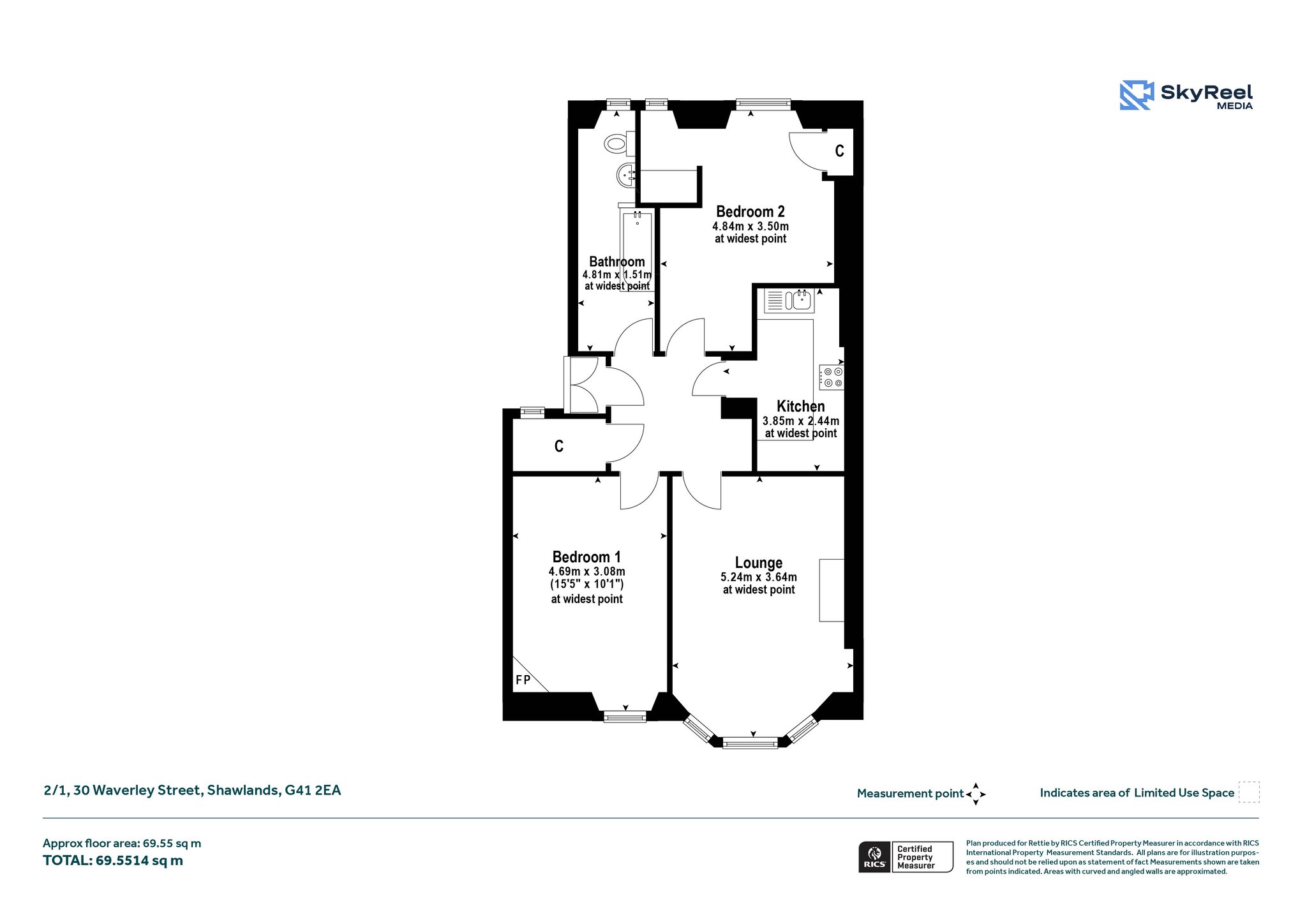
2/1, 30 Waverley Street, Shawlands, Glasgow, G41 2EA
Property Description
A second floor two bedroomed flat situated in this incredibly popular pocket of Shawlands.
This red sandstone tenement building is accessed via secure door entry system into a well-kept communal close and stairwell.
The accommodation of the flat itself comprises welcoming reception hallway with large hardwood flooring and cupboard off, beautiful bay windowed lounge with hardwood flooring, cornicing and feature fireplace, kitchen with a range of base and wall mounted units and tiled splashback, two double sized bedrooms, both of which could be utilised very flexibly and a tiled bathroom with white three piece suite, electric shower and panelling.
The property also benefits from double glazing, gas central heating, high quality floor coverings and a neutral decor throughout. Externally there is a communal rear garden.
Shawlands is considered by many to be the "brunch capital" of Glasgow. While the brunch spots are excellent and numerous, there are also a wide range of other amenities including restaurants, bars, parks and much more. This flat is perfectly situated to enjoy everything that Shawlands has to offer, including Queens Park at the end of the street as well as excellent transport links with Crossmyloof station across the street.
More Details
Situation: Contact branch
Council Tax Band: C
Tenure: Freehold
Your home may be repossessed if you do not keep up repayments on your mortgage. There may be a fee for mortgage advice. The actual amount you pay will depend upon your circumstances.
Similar Properties
Looking To Sell Or Let?
Rettie is one of the most trusted and well-respected names in property. Our unrivalled market knowledge helps people from around the world buy, sell, let and develop property in Scotland and the North East of England - from city apartments and rural cottages to large townhouses and prime country homes, farms and estates. We deal with some of the most prestigious properties on the market, but provide the same exceptional standards of service and value for money to all our clients.
