Property Description
A delightful second floor, two bedroomed flat with some of the finest views to be found in Glasgow's Southside.
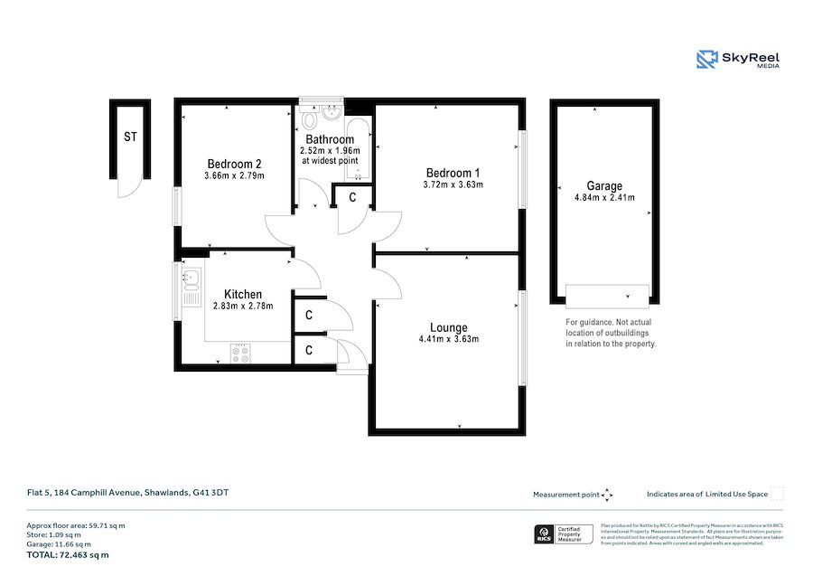
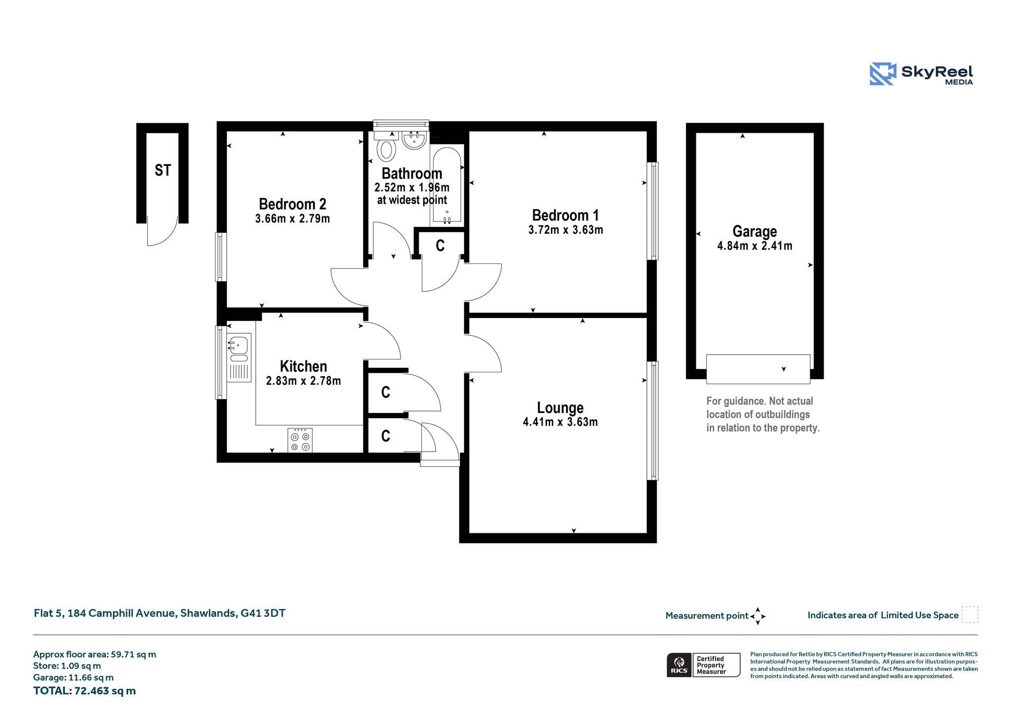
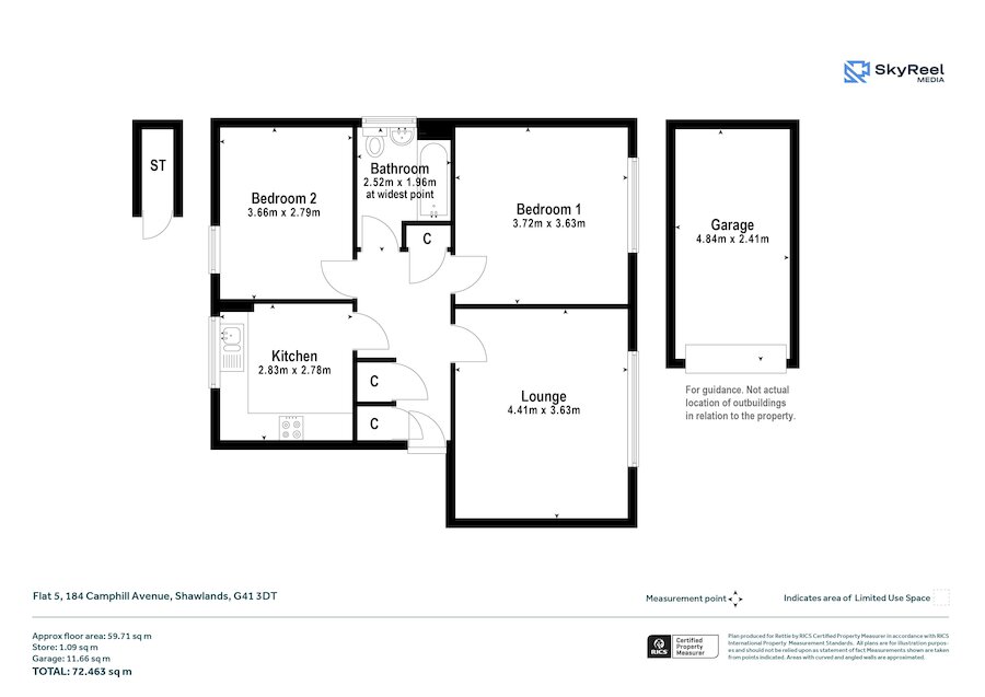
The building is accessed via a secure door entry system, into a well-kept communal close and stairwell. Internally, the property comprises a welcoming reception hallway with three large storage cupboards, and bright lounge with full height windows offering spectacular views. The beautiful kitchen was fully renovated last year, including a range of Magnet soft-close, full-length units, complemented by a Porcelanosa tiled splashback.
Accommodation includes a double sized bedroom which also enjoys spectacular views, a generously sized second bedroom that is currently being utilised as a home office/study, and a newly tiled bathroom fitted with a contemporary three piece suite.
Further benefits include a full electrical rewire completed in late 2023, double glazing, a wet electric heating system controlled by a Wi-Fi connected Nest thermostat, high quality floor coverings and modern, contemporary decor throughout.
Externally, the property includes a private garage and cellar, both incredibly useful for storage, along with extensive communal gardens. Langside is an enormously convenient pocket in Glasgow’s Southside - quiet and tranquil, but incredibly convenient for quick access to the busier hotspots of nearby Shawlands, Strathbungo and Battlefield which feature a wide range of amenities including restaurants, bars, cafes and much more. The area is perfectly situated to enjoy everything that Shawlands and Strathbungo have to offer, including excellent transport links and parks with Pollokshaws East, Langside and Crossmyloof close by, not to mention Queen's Park just around the corner.
More Details
Situation: Communal Garden
Council Tax Band: D
Tenure: Contact Branch
Your home may be repossessed if you do not keep up repayments on your mortgage. There may be a fee for mortgage advice. The actual amount you pay will depend upon your circumstances.
Similar Properties
Looking To Sell Or Let?
Rettie is one of the most trusted and well-respected names in property. Our unrivalled market knowledge helps people from around the world buy, sell, let and develop property in Scotland and the North East of England - from city apartments and rural cottages to large townhouses and prime country homes, farms and estates. We deal with some of the most prestigious properties on the market, but provide the same exceptional standards of service and value for money to all our clients.












































