Property Description
A fabulous and quite unique main door upper conversion with private garden space to the front and rear, situated in this quiet yet convenient pocket of Mount Florida.
The property is approached via pathway leading to your own main door entrance, with internal staircase leading to the main body of the property.
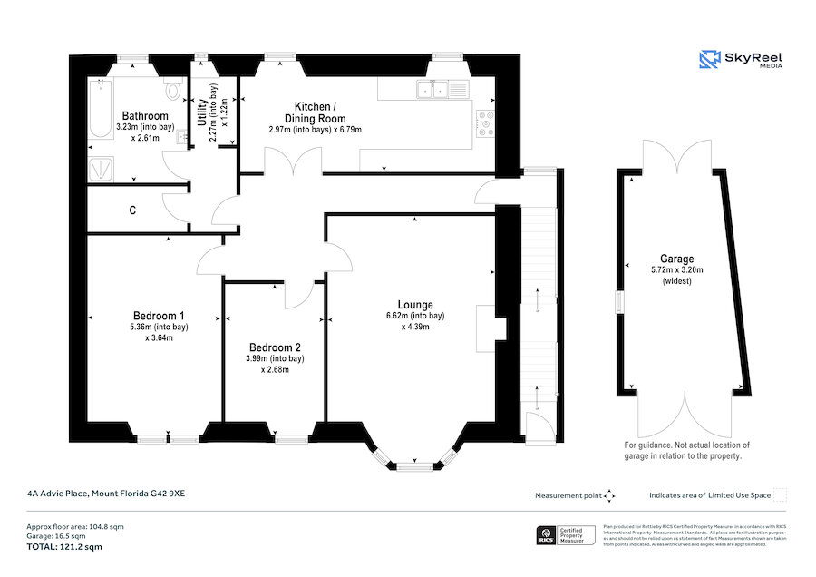
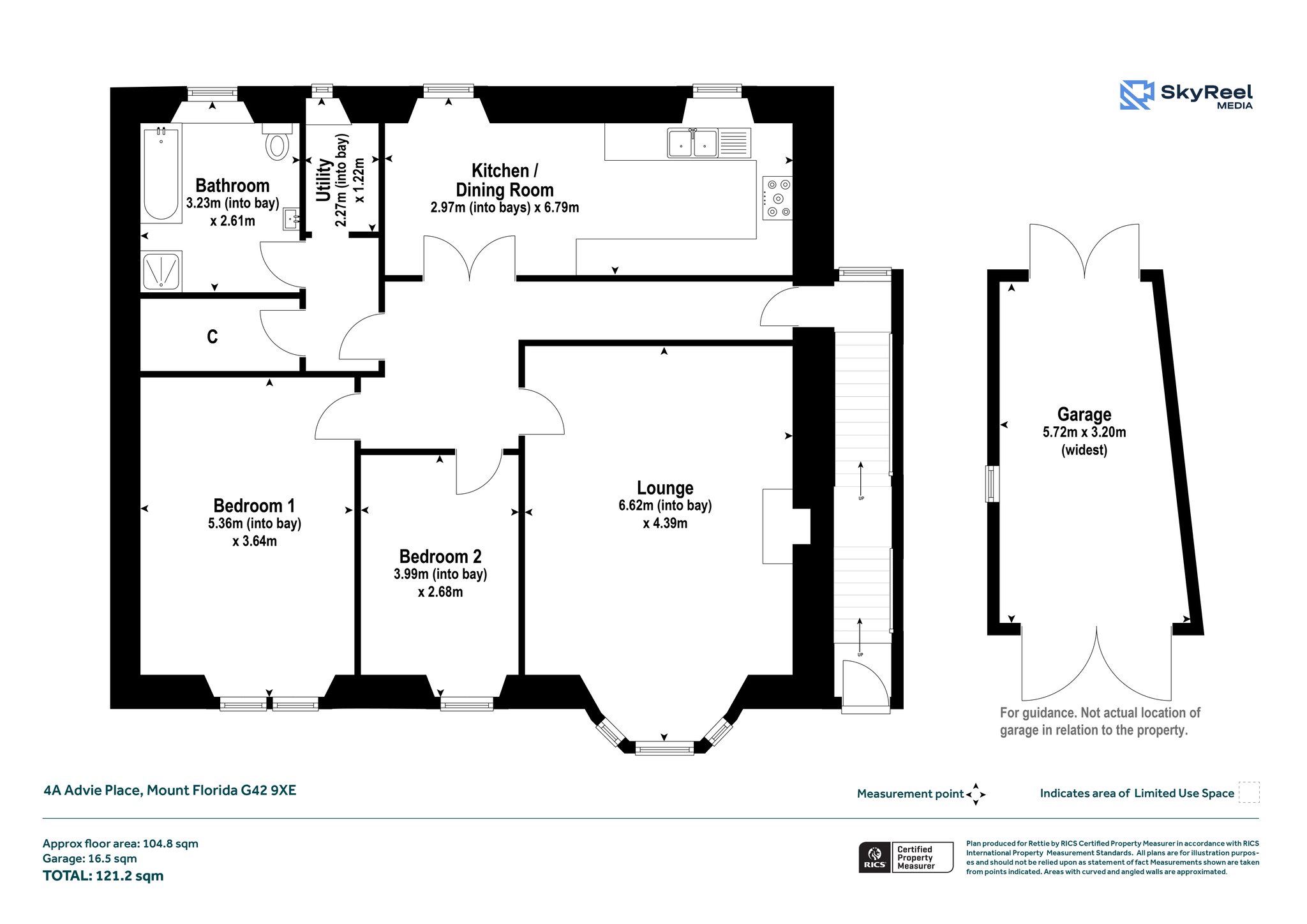
The accommodation comprises reception hallway, stunning bay windowed lounge with intricate cornicing and feature fireplace, impressive dining sized kitchen with a range of base mounted units, shelving, tiled splashback and ample space for dining table with aspect out to the rear garden, double sized bedroom one with cornicing, second double sized bedroom that could easily be utilised as a home office or study, impressive tiled bathroom with white three piece suite and separate walk-in shower, large cupboard off the internal hallway and useful utility room.
The property also benefits from double glazing, gas central heating, high quality floor coverings and a modern, contemporary decor throughout. Externally there is a private rear garden space with separate patio and lawn, along with impressive front garden. There is also a garage that is currently set up as a home gym.
Advie Place is situated in Mount Florida which has an impressive number of local amenities and transport links. These include independent shops, art studio and popular restaurants and eateries including the likes of Cafe Salmagundi, Bucks Bar and Hooked. As well as frequent bus and rail services, Mount Florida is extremely well placed for commuting access to the M77 and M8.
The beautiful Queens Park is nearby, which hosts a number of community events throughout the year and has a tennis club, glasshouses and extensive views across the city and beyond.
More Details
Situation: Private Garden
Council Tax Band: D
Tenure: Contact Branch
Your home may be repossessed if you do not keep up repayments on your mortgage. There may be a fee for mortgage advice. The actual amount you pay will depend upon your circumstances.
Similar Properties
Looking To Sell Or Let?
Rettie is one of the most trusted and well-respected names in property. Our unrivalled market knowledge helps people from around the world buy, sell, let and develop property in Scotland and the North East of England - from city apartments and rural cottages to large townhouses and prime country homes, farms and estates. We deal with some of the most prestigious properties on the market, but provide the same exceptional standards of service and value for money to all our clients.
