1/3, 53 Clifford Street, Glasgow, Glasgow City, G51 1QB
Property Description
An impressive two bedroomed, first floor flat situated in this convenient pocket of Cessnock.
This blonde sandstone tenement building is accessed via secure door entry system into a communal close and stairwell, where the flat is accessed on the first floor.
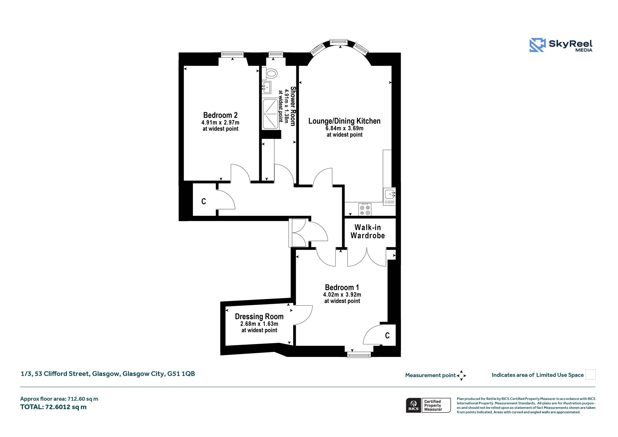
The accommodation of the flat itself comprises welcoming reception hallway with cupboard off, delightful bay windowed lounge with cornice plaster, open plan onto the modern kitchen with a range of base and wall mounted units, tiled splashback, double sized bedroom one with walk-in wardrobe and separate dressing room off, second double sized bedroom and stunning tiled shower room with white two piece suite, vanity unit and utility area.
The property also benefits from a combination of UPVC double glazing, single and secondary glazing, gas central heating and a modern, neutral decor throughout. Externally there is a communal rear garden.
The property is very well placed for local amenities, such as the QEU hospital as well as public transport. Also close by is access to the motorway network ensuring swift commuting on the M8, M77 and M74 motorways. Govan Subway Station is also a short distance away giving access to Glasgow's West End & City Centre. The local area is undergoing significant development and work is due to begin on the Govan to Partick footbridge.
More Details
Situation: Communal Garden
Council Tax Band: B
Tenure: Freehold
Your home may be repossessed if you do not keep up repayments on your mortgage. There may be a fee for mortgage advice. The actual amount you pay will depend upon your circumstances.
Similar Properties
Looking To Sell Or Let?
Rettie is one of the most trusted and well-respected names in property. Our unrivalled market knowledge helps people from around the world buy, sell, let and develop property in Scotland and the North East of England - from city apartments and rural cottages to large townhouses and prime country homes, farms and estates. We deal with some of the most prestigious properties on the market, but provide the same exceptional standards of service and value for money to all our clients.
