Flat 0/2, 124 Festival Court, Festival Park, Glasgow, G51 1BT
Property Description
A stunning two bedroomed ground floor flat with private terrace.
The building is accessed via secure door entry system into a well-kept communal close.
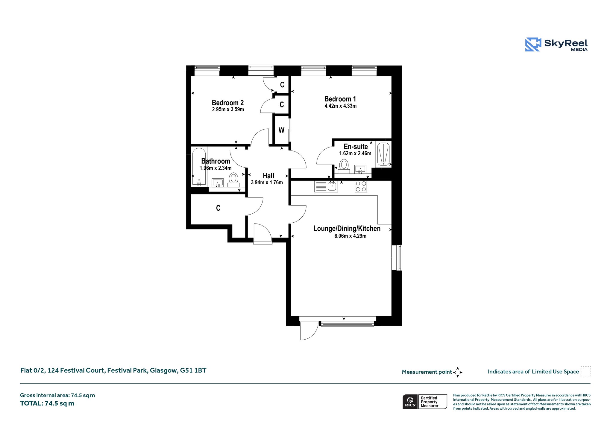
The accommodation of the flat itself comprises welcoming reception hallway with large cupboard off, fabulous lounge/dining/kitchen with double door access out to the private terrace and kitchen with a range of integrated appliances, base and wall mounted units, double sized bedroom one with stunning tiled en-suite shower room off with white two piece suite and separate walk-in shower, second double sized bedroom with two cupboards off and tiled bathroom with three piece suite.
The property also benefits from double glazing, gas central heating, high quality floor coverings and a modern, contemporary decor throughout.
Externally there is the aforementioned terrace and allocated parking space.
Festival Court is ideally located within Pacific Quay, close to the BBC Scotland headquarters and a wide range of amenities. The city centre is easily accessible, while Finnieston, the West End and the Clyde waterfront are all within easy reach. Excellent road links, public transport connections and nearby green spaces further enhance the appeal of this desirable location.
More Details
Situation: Contact branch
Council Tax Band: E
Tenure: Freehold
Your home may be repossessed if you do not keep up repayments on your mortgage. There may be a fee for mortgage advice. The actual amount you pay will depend upon your circumstances.
Similar Properties
Looking To Sell Or Let?
Rettie is one of the most trusted and well-respected names in property. Our unrivalled market knowledge helps people from around the world buy, sell, let and develop property in Scotland and the North East of England - from city apartments and rural cottages to large townhouses and prime country homes, farms and estates. We deal with some of the most prestigious properties on the market, but provide the same exceptional standards of service and value for money to all our clients.
