The Old Schoolhouse, 1 The Square, Kingsbarns, St. Andrews, Fife, KY16 8SS
Property Description
Beautifully presented four-bedroom former schoolmaster’s house in Kingsbarns
Beautifully presented 18th century former schoolmaster’s house
Elegant and light-filled interiors
Original features and stylish contemporary finishes
Enclosed walled garden overlooking Kingsbarns Parish Church
Conservation village setting less than seven miles from St Andrews
Minutes from Kingsbarns Golf Links and Beach
EPC Rating - E 
Council Band - E
Tenure - Freehold
Property Details & Description
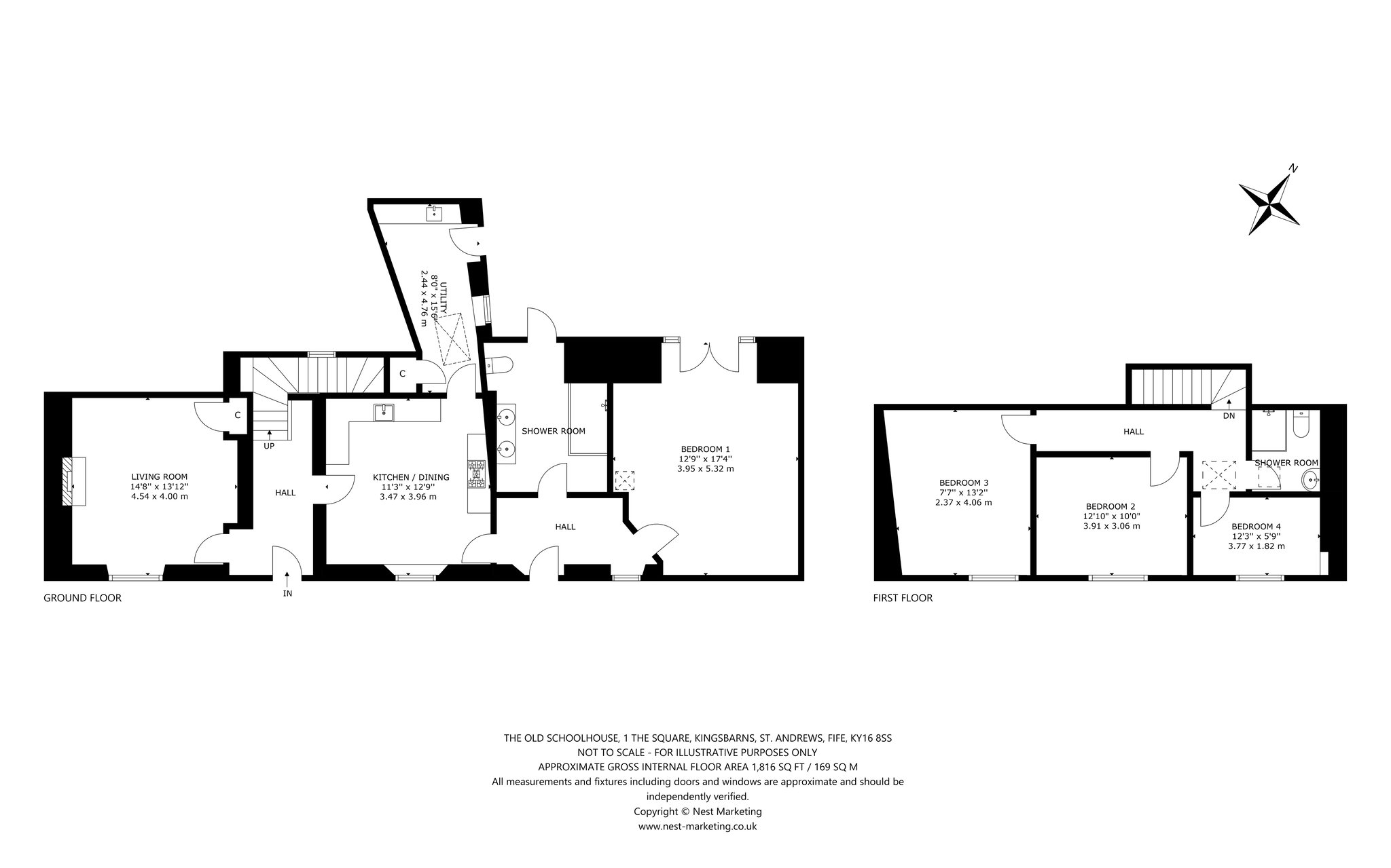
Accommodation
GROUND FLOOR
Entrance hallway, inner hallway, living room, kitchen, laundry, bedroom, shower room
FIRST FLOOR
Three bedrooms, shower room
EXTERIOR
Enclosed walled garden
On-street parking
Situation
Lying in the heart of Kingsbarns with views of the 17th century parish church and its octagonal slated spire, the Old Schoolhouse enjoys a superb position. A stroll away lies the local primary school, and post office, along with a family-run hotel and pub set within an 18th century coaching inn. The beautiful Cambo Estate with its Victorian walled garden is within easy reach as is Kingsbarns Beach and the world-famous Kingsbarns Golf Links, ranked in the top 100 courses worldwide, and co-host of the annual European Tour Alfred Dunhill Links Championship. For a greater array of leisure, retail, and dining, St Andrews home to the Old Course and Scotland’s oldest university is a short drive. There you will find bustling bars and restaurants, along with artisan retailers and popular high-street stores. Situated on the picturesque east coast of Fife, Kingsbarns is the ideal base from which to explore the characterful fishing villages that make up this scenic part of Scotland including Anstruther, St Monans, Crail, Elie, and Pittenweem. Dundee to the north is a forty-minute drive and Edinburgh to the south is approx. 90 minutes by car or just over an hour by train from Leuchars. 
Surrounded by scenic countryside and beautiful coastline, Kingsbarns offers much for the outdoor enthusiast with pleasant walk and cycle routes as well as opportunities for leisurely days spent on the beach. There are world-renowned golf courses to enjoy including those at Kingsbarns Golf Links and The Old Course at St Andrews. Kingsbarns Beach boasts two miles of golden sands and there are several more to explore nearby such as those at St Andrews, Elie, and Tentsmuir. Kingsbarns Distillery, Visitor Centre, and Café; Crail Harbour; St Andrews Botanic Gardens, and Cathedral are just a few of the nearby tourist and cultural attractions to explore and there are several National Trust properties within reach including Kellie Castle and Hill of Tarvit. Primary schooling is available locally with high school provision at Madras College in St Andrews. Private options include those at St Leonards in St Andrews and The High School of Dundee. An efficient bus service connects Kingsbarns to towns throughout Fife, and there are railway stations at Leuchars, Cupar, and Dundee. Edinburgh International Airport is easily accessible.
General Description
A highly successful four-bedroom holiday let and once home to the village schoolmaster, the Old Schoolhouse is a beautifully presented 18th century listed building, nestled in the heart of Kingsbarns. The front door, framed by a whitewashed façade and featuring an original half-moon window, opens into an elegantly decorated hallway with rich mahogany flooring and soft neutral wall finishes. To the left, the south-east-facing living room exudes comfort and relaxed sophistication. With a spacious layout and continuity of the hallway’s flooring and décor, the room feels light and airy. A wood-burning stove set within an original marble mantelpiece adds a cosy touch, while a built-in press is accessed through a six-panel door. Opposite, the bright and spacious dining kitchen is perfect for everyday living and entertaining. Thoughtfully designed to complement the home’s timeless elegance, it features shaker-style solid timber cabinetry by Neptune with Caesar stone worktops. Integrated appliances including a range cooker and Villeroy & Boch Belfast sink add a charming finishing touch. A generously sized, well-appointed laundry room, leading to the garden, offers additional storage space. Completing the ground floor layout, and accessed via a second hallway, is a stunning double bedroom with French doors that open to the enclosed walled garden, as well as a luxurious shower room with Jack and Jill washbasins also by Neptune set into a marble vanity and a WC. The double size shower has solid marble titles. Ascending the staircase to the carpeted hallway, the first floor comprises three light-filled, south-east-facing bedrooms—two doubles and a single. Each is tastefully decorated and shares access to a well-appointed shower room, again with solid marble titles and Neptune base unit.
Exterior
Lying to the rear overlooking Kingsbarns Parish Church, the enclosed walled garden with its charming courtyard is a wonderfully tranquil suntrap in which to entertain or simply unwind.
On-street parking is available to the front of the property.
General Remarks & Information
Satellite Navigation
For the benefit of those with satellite navigation the property’s postcode is KY16 8SS
Fixtures & Fittings
Only items specifically mentioned in the particulars of sale are included in the sale price. 
Entry & Possession
Entry and vacant possession will be by mutual agreement and arrangement.
Services
Mains water, drainage and electric. Oil central heating. 
Local Authority
Fife Council
EPC Rating
E
Council Tax
E
Home Report
A Home Report incorporating a Single Survey, Energy Performance Certificate and Property Questionnaire is available for parties genuinely interested in this property. Please contact us, either by telephone or via the website entry for this property, to request a copy. No charge is made for electronic copies; a paper copy can also be made available from our offices or by post, at a charge of £20 to cover reproduction and administrative costs.
Offers
Offers should be submitted in Scottish Legal Form to the selling agents Rettie & Co at 28 Bell Street, St Andrews KY16 9UX.
Servitude Rights, Burdens & Wayleaves
The property is sold subject to and with the benefit of all servitude rights, burdens, reservations and wayleaves including rights of access and rights of way, whether public or private, light, support, drainage, water and wayleaves for masts, pylons, stays, cable, drains and water, gas and other pipes whether contained in the title deeds or informally constituted and whether or not referred to above. 
Particulars and Plans
These particulars and plan are believed to be correct, but they are in no way guaranteed. Any error, omission or misstatement shall not annul the sale or entitle any party to compensation nor in any circumstances give grounds for action at law. 
Websites and Social Media
This property and other properties offered by Rettie South LLP can be viewed on our website at www.rettie.co.uk as well as our affiliated websites at www.rightmove.co.uk zoopla.com, www.primelocation.com, www.s1homes.com and www.thelondonoffice.co.uk
Proof and Source of Funds/Anti Money Laundering
Under the HMRC Anti Money Laundering legislation all offers to purchase a property on a cash basis or subject to mortgage require evidence of source of funds. This may include evidence of bank statements/funding source, mortgage or confirmation from a solicitor the purchaser has the funds to conclude the transaction. All individuals involved in the transaction are required to produce proof of identity and proof of address. This is acceptable either as original or certified documents.
Misrepresentations
1. The property is sold with all faults and defects, whether of condition or otherwise and neither the seller nor Rettie & Co, the selling agent, are responsible for such faults and defects, nor for any statement contained in the particulars of the property prepared by the said agent.
2. The Purchaser(s) shall be deemed to acknowledge that he has not entered into contact in reliance on the said statements, that he has satisfied himself as to the content of each of the said statements by inspection or otherwise and that no warranty or representation has been made by the seller or the said agents in relation to or in connection with the property.
3. Any error, omission or misstatement in any of the said statements shall not entitle the purchaser(s) to rescind or to be discharged from this contract, nor entitle either party to compensation or damages nor in any circumstances to give either party any cause for action.
Important Notice
Rettie South Llp, Their Clients And Any Joint Agents Give Notice That
1. They are not authorised to make or give any representations or warranties in relation to the property either in writing or by word of mouth. Any information given is entirely without responsibility on the part of the agents or the sellers. These particulars do not form part of any offer or contract and must not be relied upon as statements or representations of fact.
2. Any areas, measurements or distances are approximate. The text, photographs and plans are for guidance only and are not necessarily comprehensive and it should not be assumed that the property remains as photographed. Any error, omission or mis-statement shall not annul the sale, or entitle any party to compensation or recourse to action at law. It should not be assumed that the property has all necessary planning, building regulation or other consents, including for its current use. Rettie South LLP have not tested any services, equipment or facilities. Purchasers must satisfy themselves by inspection or otherwise and ought to seek their own professional advice.
3. All descriptions or references to condition are given in good faith only. Whilst every endeavour is made to ensure accuracy, please check with us on any points of especial importance to you, especially if intending to travel some distance. No responsibility can be accepted for expenses incurred in inspecting properties which have been sold or withdrawn.
More Details
Situation: Private Garden
Council Tax Band: E
Tenure: Freehold
Your home may be repossessed if you do not keep up repayments on your mortgage. There may be a fee for mortgage advice. The actual amount you pay will depend upon your circumstances.
Similar Properties
Looking To Sell Or Let?
Rettie is one of the most trusted and well-respected names in property. Our unrivalled market knowledge helps people from around the world buy, sell, let and develop property in Scotland and the North East of England - from city apartments and rural cottages to large townhouses and prime country homes, farms and estates. We deal with some of the most prestigious properties on the market, but provide the same exceptional standards of service and value for money to all our clients.

