Property Description
13 ACRES. Wonderful six-bedroom lifestyle property boasting a stunning countryside setting close to St Andrews
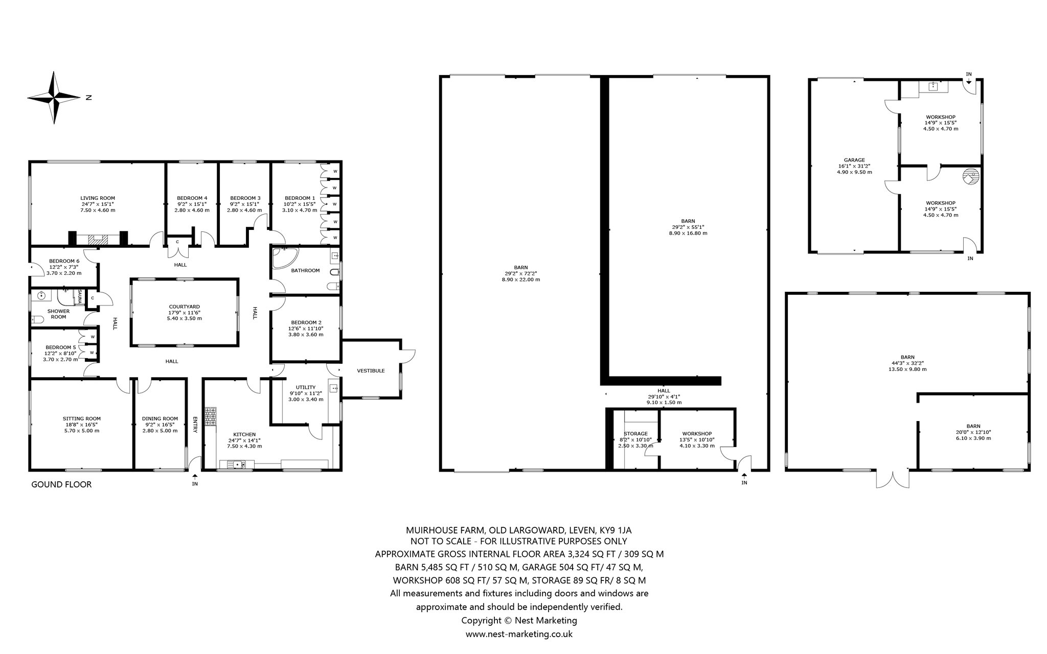
Detached six-bedroom property with central courtyard
Four spacious living and reception areas
High levels of privacy and seclusion
Unique opportunity
Extensive grounds with pond, polytunnel, and amenity woodlands
Detached garage, two large barns and workshops
About 13 acres in total
The property has the potential to be sold with a reduced acreage - For more details, please contact the selling agent
EPC D
Council Tax F
Tenure Freehold
Property Details & Description
Accommodation
GROUND FLOOR
Entrance hallway, vestibule, sitting room, dining room, living room, kitchen, utility, six bedrooms, shower room, bathroom
EXTERIOR
Extensive grounds with pond, and amenity woodlands
Internal enclosed courtyard
Extensive barns, workshops, polytunnel and a garage
Situation
Convenient for St Andrews and enjoying an unspoiled and scenic countryside setting close to the small village of Largoward, Muirhouse Farm is a ten-minute drive from Lower Largo, celebrated for its charming harbour and beach, and home to the renowned Crusoe Hotel. Further amenities are available in Lundin Links including a bakery, butcher, and general store, with a variety of shopping options available in Leven. The famous 18-hole Lundin Links Course used as a qualifying course during the Open Championship at St Andrews and the Ladies 9-hole Course, the oldest in the world present excellent recreational opportunities. Other activities can be found at Lundin Sports Club with its tennis and squash courts and at the sports centre in Levenmouth with its gym, sauna, and swimming pool.
Largoward is within easy reach of the 47acre Craigtoun Country Park along with the idyllic Fife Coastal Path showcasing picturesque former fishing villages, some of the most beautiful in Scotland along with tranquil beaches, historic harbours, and dramatic ruined castles. Charming villages such as Anstruther, Crail, Elie, and Pittenweem boast an array of restaurants, bars, watersports, and cultural attractions including the renowned Pittenweem Arts Festival. Globally renowned for its golf courses, the region boasts over 44, with championship courses at St Andrews and Kingsbarns. Primary schooling is available in Largoward with the high school in Leven. Private options include those at St Leonards in St Andrews and at The High School of Dundee. There are railway stations at Leuchars, Cupar, Ladybank, and Dundee with the new station at Leven set to open in 2024. Edinburgh is approximately 80 minutes’ drive and the larger Fife towns of St Andrews, Glenrothes, Dundee, and Kirkcaldy are all within easy reach. Edinburgh International Airport is just over an hour away by car.
General Description
Occupying an enviable East Fife countryside position Muirhouse Farm boasts captivating views and is an impressive six-bedroom residence characterized by generous proportions, well-presented interiors, an abundance of natural light, and a flexible layout The front door opens into a light and airy hallway showcasing original wooden flooring and soft grey wall finishes, from here the accommodation is centred around an inner hallway overlooking an external decked courtyard. To your right, the generously proportioned and bright dining kitchen is adorned with handsome wooden flooring and a striking accent wall of gloss white metro tiles. Rustic wooden cabinetry is complemented by quartz-effect worktops and high-quality freestanding appliances including a SMEG range cooker and extractor hood. It benefits from a sizeable adjacent utility that offers additional storage space and leads to an entrance vestibule, which is the perfect place after a day spent exploring outdoors for storing walking boots, umbrellas, etc. Across the hallway the dual-aspect sitting room with wooden flooring, a tasteful colour palette, breathtaking garden views through sliding patio doors, and a south and west-facing orientation exudes a cosy and welcoming ambience. Lying adjacent is a versatile carpeted dining room that is perfect for entertaining or formal family gatherings. Towards the opposite end of the residence, a further dual-aspect living room boasting a log-burning stove nestled in a brick chimney breast, wooden flooring, and lofty wood-panelled ceilings creates an inviting ambience for entertaining and family life. The property benefits from six appealing bedrooms. A light-filled principal double bedroom enjoys wall-to-wall built-in wardrobes, wooden flooring, and a statement accent wall, whilst each of the remaining, is well-presented, bright, and spacious. They benefit from a good-sized modern family bathroom complete with a corner bath, bidet, countertop washbasin and WC. In addition, there is a well-appointed shower room with a corner body jet shower enclosure situated next to an indulgent sauna.
EXTERIOR
Extending to circa 13 acres in total, the generous gardens and grounds are both spectacular and delightful. Accessed via a private driveway there are extensive areas of amenity woodland along with meadows grassland and a pond. The unique mix is home to a range of birds and wildlife and also offers high levels of privacy.
The property’s appeal is further enhanced by two sizeable barns, workshops, polytunnel, and a detached garage.
General Remarks & Information
Viewing
Viewing is strictly by appointment with the selling agents Rettie & Co, 28 Bell Street, St Andrews KY16 9UX. Tel: 01334 237700.
Satellite Navigation
The property’s postcode is KY9 1JA.
Fixtures and Fittings
Only items specifically mentioned in the particulars of sale are included in the sale price. Additional items of furniture may be available by separate negotiation.
Entry & Possession
Entry and vacant possession will be by mutual agreement and arrangement.
Services
Mains water and electricity, oil heating, private drainage, bottled gas for cooking.
Local Authority
Fife Council
EPC Rating
Band D
Council Tax
Band F
Home Report
A Home Report incorporating a Single Survey, Energy Performance Certificate and Property Questionnaire is available for parties genuinely interested in this property. Please contact us, either by telephone or via the website entry for this property, to request a copy. No charge is made for electronic copies; a paper copy can also be made available from our offices or by post, at a charge of £20 to cover reproduction and administrative costs.
Offers
Offers should be submitted in Scottish Legal Form to the selling agents Rettie & Co at 28 Bell Street, St Andrews KY16 9UX.
Servitude Rights, Burdens & Wayleaves
The property is sold subject to and with the benefit of all servitude rights, burdens, reservations and wayleaves including rights of access and rights of way, whether public or private, light, support, drainage, water and wayleaves for masts, pylons, stays, cable, drains and water, gas and other pipes whether contained in the title deeds or informally constituted and whether or not referred to above.
Particulars and Plans
These particulars and plan are believed to be correct, but they are in no way guaranteed. Any error, omission or misstatement shall not annul the sale or entitle any party to compensation nor in any circumstances give grounds for action at law.
Websites and Social Media
This property and other properties offered by Rettie & Co can be viewed on our website at www.rettie.co.uk as well as our affiliated websites at www.rightmove.co.uk, www.onthemarket.com and www.thelondonoffice.co.uk. In addition, our social media platforms are facebook.com, RettieTownandCountry, twitter.com, RettieandCo, Instagram and LinkedIn.
Proof and Source of Funds/Anti Money Laundering
Under the HMRC Anti Money Laundering legislation all offers to purchase a property on a cash basis or subject to mortgage require evidence of source of funds. This may include evidence of bank statements/funding source, mortgage or confirmation from a solicitor the purchaser has the funds to conclude the transaction. All individuals involved in the transaction are required to produce proof of identity and proof of address. This is acceptable either as original or certified documents.
Misrepresentations
1. The property is sold with all faults and defects, whether of condition or otherwise and neither the seller nor Rettie & Co, the selling agent, are responsible for such faults and defects, nor for any statement contained in the particulars of the property prepared by the said agent.
2. The Purchaser(s) shall be deemed to acknowledge that he has not entered into contact in reliance on the said statements, that he has satisfied himself as to the content of each of the said statements by inspection or otherwise and that no warranty or representation has been made by the seller or the said agents in relation to or in connection with the property.
3. Any error, omission or misstatement in any of the said statements shall not entitle the purchaser(s) to rescind or to be discharged from this contract, nor entitle either party to compensation or damages nor in any circumstances to give either party any cause for action.
Important Notice
Rettie & Co, Their Clients And Any Joint Agents Give Notice That
1. They are not authorised to make or give any representations or warranties in relation to the property either in writing or by word of mouth. Any information given is entirely without responsibility on the part of the agents or the sellers. These particulars do not form part of any offer or contract and must not be relied upon as statements or representations of fact.
2. Any areas, measurements or distances are approximate. The text, photographs and plans are for guidance only and are not necessarily comprehensive and it should not be assumed that the property remains as photographed. Any error, omission or misstatement shall not annul the sale, or entitle any party to compensation or recourse to action at law. It should not be assumed that the property has all necessary planning, building regulation or other consents, including for its current use. Rettie & Co. have not tested any services, equipment or facilities. Purchasers must satisfy themselves by inspection or otherwise and ought to seek their own professional advice.
3. All descriptions or references to condition are given in good faith only. Whilst every endeavour is made to ensure accuracy, please check with us on any points of especial importance to you, especially if intending to travel some distance. No responsibility can be accepted for expenses incurred in inspecting properties which have been sold or withdrawn.
More Details
Situation: Contact branch
Council Tax Band: F
Tenure: Freehold
Your home may be repossessed if you do not keep up repayments on your mortgage. There may be a fee for mortgage advice. The actual amount you pay will depend upon your circumstances.
Similar Properties
Looking To Sell Or Let?
Rettie is one of the most trusted and well-respected names in property. Our unrivalled market knowledge helps people from around the world buy, sell, let and develop property in Scotland and the North East of England - from city apartments and rural cottages to large townhouses and prime country homes, farms and estates. We deal with some of the most prestigious properties on the market, but provide the same exceptional standards of service and value for money to all our clients.
