3 Spottiswoode Gardens, St. Andrews, Fife, KY16 8SA

St. Andrews, Fife, KY16 8SA
Sold
Pin View on map

Offers Over £475,000

House

Detached House

Bed

4 Bedrooms

Bathroom

2 Bathrooms

Reception

3 Reception Rooms

Tree

Private Garden

Telephone

Property Description

3 Spottiswoode Gardens is a spacious and versatile four-bedroom detached home located within a peaceful residential area of St Andrews. The property offers flexible family living across two floors with well-proportioned reception space, generous bedroom accommodation, and the added benefit of a detached garage. This lovely home is set within mature gardens, on a substantial plot.

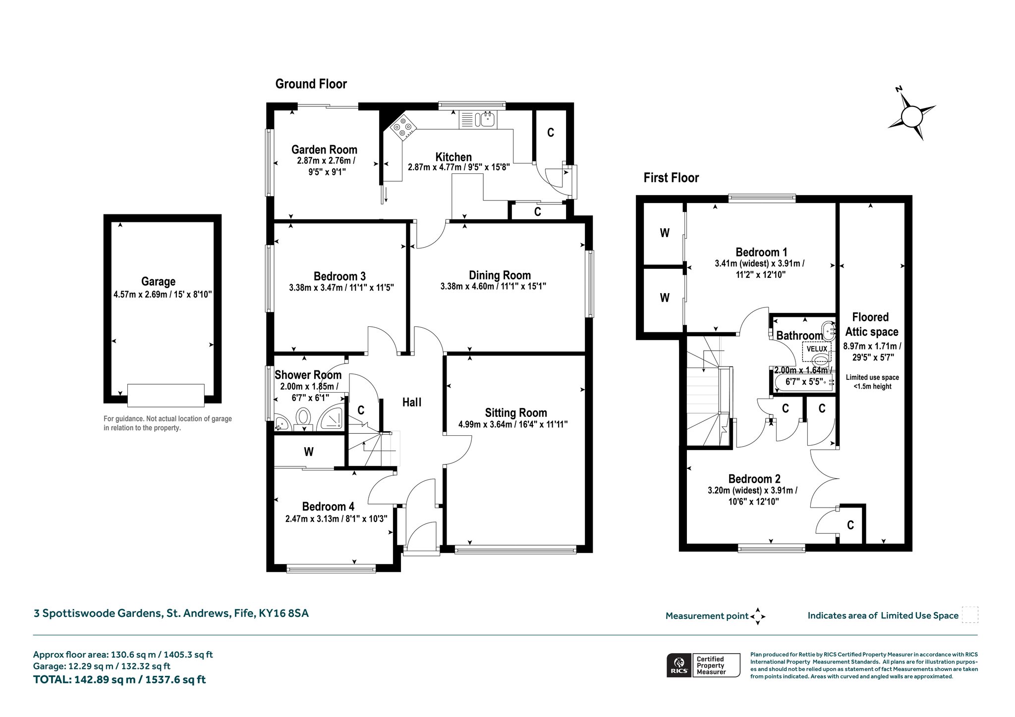
The ground floor features a bright sitting room and a spacious dining room. The fitted kitchen leads through to a charming garden room, and two double bedrooms alongside a modern shower room. Upstairs, there are two further bedrooms with ample storage, a contemporary family bathroom, and a useful floored attic space.

Externally, the house is complemented by generous private gardens to the front and rear with mature plants, fruit trees and a walled patio. The property also benefits from a detached single garage and driveway parking. Situated in an established neighbourhood, the property represents an excellent opportunity to acquire a family home within easy reach of the many amenities and attractions of St Andrews.

More Details

EPC Rating - D
Council Band - F
Tenure - Freehold

Summary of Accommodation

Ground Floor
• Entrance hall
• Sitting room
• Dining room
• Kitchen
• Garden room
• 2 Bedrooms
• Shower room

First Floor
• Bedroom 1 with fitted wardrobes
• Bedroom 2 with storage
• Family bathroom
• Floored attic space

Exterior
• Detached garage
• Driveway parking
• Private gardens to front and rear

Spottiswoode Gardens is a quiet residential area on the western edge of St Andrews, within easy reach of the town centre, beaches, and world-famous golf courses. St Andrews offers an excellent range of local amenities including independent shops, cafés, and restaurants as well as cultural and recreational facilities. The town is home to the University of St Andrews and a number of highly regarded primary and secondary schools.

The property is well placed for access to the surrounding countryside and coastline of North-East Fife, with a wealth of walking, cycling, and outdoor pursuits on the doorstep. Dundee, with its airport and rail links, is within commuting distance, while Edinburgh is accessible by road or rail for a wider selection of amenities and international connections.

General Remarks & Information

Fixtures and Fittings:
Only appliances specifically mentioned in the sales particulars are included in the sale price. In all other aspects the treatment of fixtures and fittings within the relevant Conveyancing Standard Clauses apply.

Services:
Gas heating with new boiler fitted in March 2025 complete with guarantees, mains water, electricity, broadband, telephone (subject to telephone providers’ regulations).

Viewing:
By appointment through St Andrews. 28 Bell Street, St Andrews, KY16 9UX. Email: standrews@rettie.co.uk Tel: 01334 237 700

Offers:
Offers should be submitted in Scottish Legal Form to the selling agents Rettie & Co. A closing date by which offers must be submitted may be fixed later. Please note that interested parties are advised to register their interest with the selling agents in order that they may be advised should a closing date be set. The seller reserves the right to accept any offer at any time.

Council Tax Band:
F

EPC Rating:
D

Postcode:
KY16 8SA

Tenure:
Freehold

Internet Website

This property and other properties offered by Rettie & Co. & Rettie LLP's. can be viewed on our website at www.rettie.co.uk as well as Rightmove, OnTheMarket and The London Office.

Servitude Rights, Burdens & Wayleaves

The property is sold subject to and with the benefit of all servitude rights, burdens, reservations and wayleaves including rights of access and rights of way, whether public or private, light, support, drainage, water and wayleaves for masts, pylons, stays, cable, drains and water, gas and other pipes whether contained in the title deeds or informally constituted and whether or not referred to above.

Important Notice

Rettie, Their Clients And Any Joint Agents Give Notice That

They are not authorised to make or give any representations or warranties in relation to the property either in writing or by word of mouth. Any information given is entirely without responsibility on the part of the agents or the sellers. These particulars do not form part of any offer or contract and must not be relied upon as statements or representations of fact.
All Rettie floorplans are drawn to RICS standard. The text, photographs and plans are for guidance only and are not necessarily comprehensive and it should not be assumed that the property remains as photographed. Any error, omission or mis-statement shall not annul the sale or entitle any party to compensation or recourse to action at law. It should not be assumed that the property has all necessary planning, building regulation or other consents, including for its current use. Rettie & Co. & Rettie LLP’s have not tested any services, equipment or facilities. Purchasers must satisfy themselves by inspection or otherwise and ought to seek their own professional advice.
All descriptions or references to condition are given in good faith only. Whilst every endeavour is made to ensure accuracy, please check with us on any points of especial importance to you, especially if intending to travel some distance. No responsibility can be accepted for expenses incurred in inspecting properties which have been sold or withdrawn.
Proof and source of Funds/Anti Money Laundering

Under the HMRC Anti Money Laundering legislation all offers to purchase a property on a cash basis or subject to mortgage require evidence of source of funds. This may include evidence of bank statements/funding source, mortgage or confirmation from a solicitor the purchaser has the funds to conclude the transaction.

All individuals involved in the transaction are required to produce proof of identity and proof of address. Rettie use electronic verification, if this is not possible original documents are acceptable.
Misrepresentations

The property is sold with all faults and defects, whether of condition or otherwise and neither the seller nor Rettie & Co. or Rettie LLP’s, the selling agent, are responsible for such faults and defects, nor for any statement contained in the particulars of the property prepared by the said agent.
The Purchaser(s) shall be deemed to acknowledge that they have not entered into contract in reliance on the said statements, that they are satisfied themselves as to the content of each of the said statements by inspection or otherwise and that no warranty or representation has been made by the seller or the said agents in relation to or in connection with the property.
Any error, omission or misstatement in any of the said statements shall not entitle the purchaser(s) to rescind or to be discharged from this contract, nor entitle either party to compensation or damages nor in any circumstances to give either party any cause for action.

Contact Us

Caitlin Wishart

Caitlin Wishart

Senior Sales Negotiator
Bob Duncan Cert CII (MP)

Bob Duncan Cert CII (MP)

Managing Director
Mortgage Calculator
Monthly payments
Please set an interest rate.

Your home may be repossessed if you do not keep up repayments on your mortgage.

There may be a fee for mortgage advice. The actual amount you pay will depend upon your circumstances. The fee is up to 1% but a typical fee is 0.3% of the amount borrowed.

Tax Calculator
LBTT calculator for properties purchased in Scotland. Stamp Duty calculator for properties purchased in England.
Land & buildings transaction tax (LBTT)
= £0
New build house with stone and timber cladding

Looking To Sell Or Let?

Rettie is one of the most trusted and well-respected names in property. Our unrivalled market knowledge helps people from around the world buy, sell, let and develop property in Scotland and the North East of England - from city apartments and rural cottages to large townhouses and prime country homes, farms and estates. We deal with some of the most prestigious properties on the market, but provide the same exceptional standards of service and value for money to all our clients.